

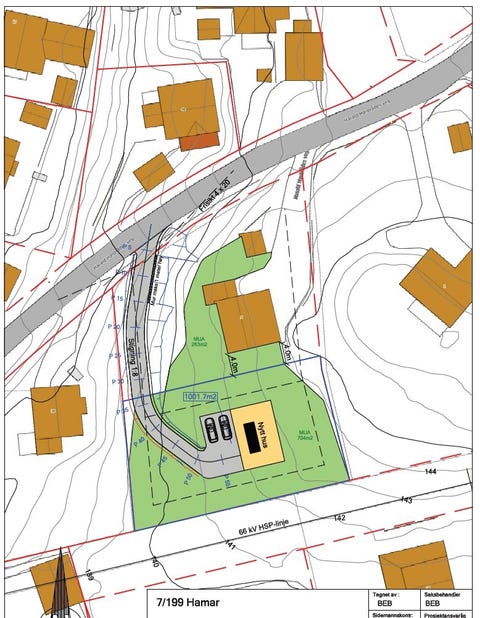
Hamar/Rollsløkka - sentral boligtomt med rolig og skjermet beliggenhet
Rollsløkkvegen 4, Hamar
452 m²2 500 000 kr
Totalpris: 2 563 850 kr
Visning etter avtale



















Du kan motta et varsel når det kommer nye tomter til salgs i søket med Tomter til salgs i Hamar.