
Bildegalleri

Romslig stue med peis. Leiligheten er vendt mot den rolige, enveiskjørte Trudvangveien
MAJORSTUEN - Klassisk stor 3-roms i 4 etasje - Sentralt - ledig omgående -
- Månedsleie
- 28 000 kr
Nøkkelinfo
- Boligtype
- Leilighet
- Soverom
- 2
- Etasje
- 4.
- Leieperiode
- 01.12.2025 - 30.11.2028
- Energimerking
- D
Fasiliteter
Beskrivelse
Innhold
Velkommen til Trudvangveien 5 C.
Klassisk entré med god plass til å henge fra, eventuelt sette fra seg sykkelen.
Romslig stue med stukkatur og rosetter. Klassisk stor stue med dobbeltdører inn til soverom.
Stort soverom vendt mot den rolige Trudvangveien.
Baderom med vegghengt WC, dusj m/ innfellbare glassdører og en vaskemaskin.
Separat kjøkken med medfølgende hvitevarer. Godt med skap og benkeplass. Lys og romslig kjøkken med klassisk utseende.
Soverom nummer to med direkte adkomst fra kjøkkenet, med plass til en dobbeltseng. Kan også brukes som kontor eller gjesterom.
Leiligheten disponerer en stor kjellerbod.
Leieboerforsikring – En enklere måte å leie bolig på!
Med Leieboerforsikring levert av If kan du flytte rett inn i ny bolig uten å tenke på hverken depositum eller innboforsikring.
Fordeler med Leieboerforsikring:
-Du slipper å innbetale depositum
-Innboforsikring som gjelder for alle som bor i boligen
-Unik uhellsdekning
-Månedlig betaling
Leieboerforsikring leveres av If Skadeforsikring. Ved mislighold av leiekontrakt vil leietaker holdes økonomisk ansvarlig av If for utleiers tap, på lik linje som ved en depositumskonto. Leieboerforsikring koster 2,6% (min. 300 kr, maks. 700 kr) av leieprisen, og legges til månedsleien.
Beliggenhet
Velkommen til Trudvangveien.
Svært ettertraktet og populær beliggenhet på Majorstuen med et fantastisk utgangspunkt for å kunne benytte seg av byens mangfoldige tilbud og fasiliteter. Umiddelbar nærhet til Majorstuen / Bogstadveien med en rekke forretninger og servicetilbud som dagligvarehandel, treningssentre, post, apotek, vinmonopol samt koselige fortauskaféer og restauranter. Kort vei til blant annet Colosseum Kino, Blindern Universitet og Bislett. Flotte tur og rekreasjonsmuligheter i nærliggende parker som Marienlystparken, Frognerparken og Stensparken.
Kun to minutter fra leiligheten finner du både søndagsåpen Joker og Bunnpris. Populære Pizza Pancetta og Villa Paradiso ligger kun få minutter fra leiligheten.
***********************************************
Er du interessert?
Send meg en melding/epost fra annonsen med kortfattet info om deg selv og de som skal bo i boligen. Ta med info som jobb, økonomi og kort informasjon om hvem dere er.
Are you interested?
Send me a message/email from the ad with brief info about yourself and those who will live in the apartment. Include information such as work, finances and brief information about who you are.
***********************************************
Adkomst
Offentlig kommunikasjon i umiddelbar nærhet med T-bane og trikk fra Majorstuen, samt buss 20, 25, 28 og Flybussekspressen stoppende i Kirkeveien, trikk i Ullevålsveien. Gangavstand til NRK, UiO (Blindern, Veterinærhøyskolen og Tannlegehøyskolen), Forskningsparken, og OUS (Ullevål Sykehus og Rikshospitalet).
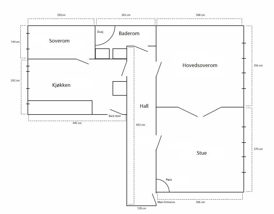
Eiendommens rom
Indre rom:
Leiligheten inneholder entré, stue, 2 soverom, baderom og separat kjøkken.
Ytre rom:
Leiligheten disponerer en kjellerbod.
Standard
Leiligheten er totalrenovert fra 2013 og pusset opp i 2016/17 og, ytrterligare nu høst 2025. Leiligheten holder en god standard.
Inventar
Boligen leies ut umøblert.
Følgende hvitevarer medfølger: kombiskap, komfyr, oppvaskmaskin, vaskemaskin.
Hvitevarer følger med så lenge de virker, reparasjon/bytte inngår ikke i leieavtalen.
Fasiliteter
Boligen har peis/ildsted, opplegg for kabel-tv, opplegg for internett.
Personlige abonnementer tegnes av leietaker og er ikke inkludert i husleien. Det tas forbehold om at lokale leverandører kan levere tjenesten.
Parkering
Parkering i gate etter gjeldende bestemmelser.
Eierforhold
Eierseksjon
Oppvarming
Boligen oppvarmes med elektrisitet.
Energimerking
Boligen har energikarakter D
Boligens energiattest, med oppvarmingskarakter, er tilgjengelig hos megler og utleveres ved forespørsel.
Egne abonnementer
Leietaker tegner eget abonnement for strøm.
Husleie
Kr. 28 000 pr. måned.
Utleiers krav til sikkerhet
Som sikkerhet i dette leieforholdet kan leietaker velge å kjøpe leieboerforsikring levert av IF eller opprette depositumskonto i SpareBank 1 SMN.
Sikkerhetsbeløpet for forsikring og depositum er fra 3 måneders husleie.
Velges leieboerforsikring fra IF er kostnaden 2,6% av løpende månedsleie, minimum kr 300,- og maksimalt beløp kr 700,- pr mnd. Forsikringspremien er en del av leien, og betales ved forfallstidspunktet for husleien. If vil kreve regress fra leietaker ved leietakers mislighold som medfører utbetaling fra forsikringen.
Ta kontakt med megler i Utleiemegleren for å finne ut om du tilfredsstiller vilkårene for å tegne leieboerforsikring levert av IF.
Leietiden og partenes oppsigelsesadgang
Overtakelse: 01.12.2025
Leietid: 01.12.2025 - 30.11.2028
Oppsigelsestiden i dette leieforholdet er 3 måneder for begge parter.
Leieforholdet har en bindingstid frem til 31.08.2026, og dette er første mulige tidspunkt en oppsigelse kan ha virkning fra. Sies leieforholdet opp innen denne dato vil leieforholdet ha en minste leietid frem til 30.11.2026.
Oppsigelser levert etter utløp av bindingstiden den 31.08.2026 vil ha virkning den første dag i den påfølgende måneden etter at oppsigelsen er mottatt.
Tidligste opphør av leiekontrakten ved oppsigelse forutsetter at leiekontrakten starter på det tidspunktet som er nevnt ovenfor.
Prospekt
Denne annonsen gir ikke komplett informasjon om boligen, og interessenter oppfordres til å lese prospektet.
Kontraktsinngåelse
Etter kontraktsinngåelse forfaller en måneds husleie til betaling.
Visning
Meld interesse via vårt digitale interessentskjema.
Kontaktperson
Armando Jimenez-Killingmo
Saksnummer
59733/0600-25
Matrikkelinformasjon
Visning
Utleiemegleren Grønland & Bjørvika
Nyttige lenker
Nærområdet
Annonsene kan være mangelfulle i forhold til lovpålagt opplysningsplikt. Før bindende avtale inngås oppfordres interessenter til å innhente komplett informasjon fra meglerforetaket, selger eller utleier.
Lignende annonser













