Bildegalleri

Velkommen til Prinsessealléen 15 D. En delikat 4-roms leilighet over to plan i attraktive Casinetto borettslag.
SKØYEN/CASINETTO
Delikat 4-roms over 2 plan m/rekkehusfølelse | Balkong til grøntareal | P-plass m/lader | Bilfritt til Skøyen skole
Prisantydning10 850 000 kr
Nøkkelinfo
- Boligtype
- Leilighet
- Eieform
- Andel
- Soverom
- 3
- Internt bruksareal
- 97 m² (BRA-i)
- Bruksareal
- 103 m²
- Eksternt bruksareal
- 6 m² (BRA-e)
- Balkong/Terrasse
- 4 m² (TBA)
- Etasje
- 1
- Byggeår
- 1982
- Energimerking
- F - Lysegrønn
- Rom
- 4
- Tomteareal
- 33 072 m² (eiet)
Fasiliteter
Barnevennlig
Balkong/Terrasse
Garasje/P-plass
Kabel-TV
Offentlig vann/kloakk
Parkett
Turterreng
Utsikt
Sentralt
Bredbåndstilknytning
Moderne
Rolig
Visning
torsdag, 05. mars
17:00 – 18:00
søndag, 08. mars
12:30 – 13:30
Velkommen til visning!
Alle våre visninger har påmelding. På denne måten sikrer vi at våre meglere har god tid og på best mulig måte kan møte alle interessentene. Det er enkelt å melde seg på og like enkelt å melde seg av.
Husk å les salgsoppgaven i forkant!
Kontakt oss gjerne i forkant av visning om du har noen spørsmål.
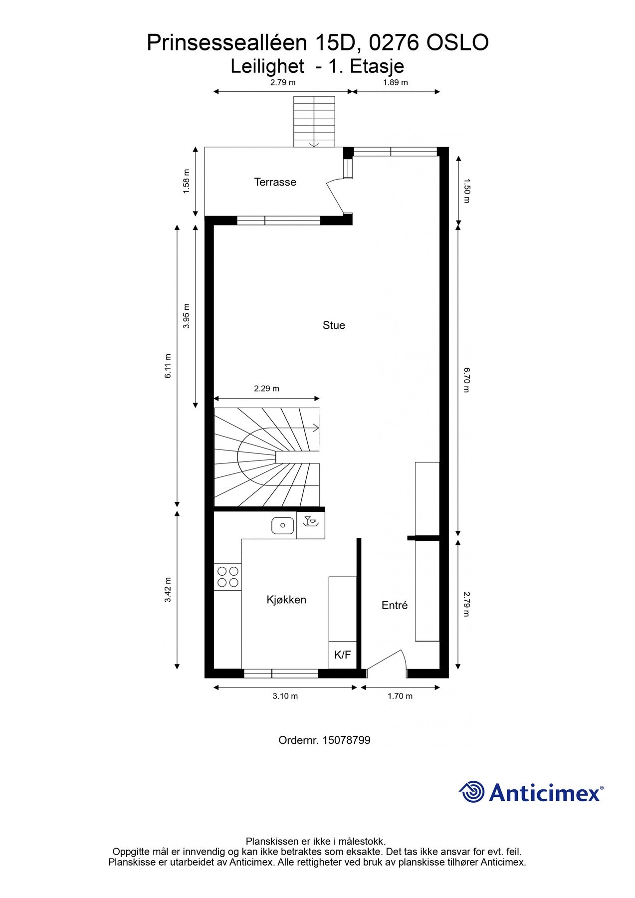
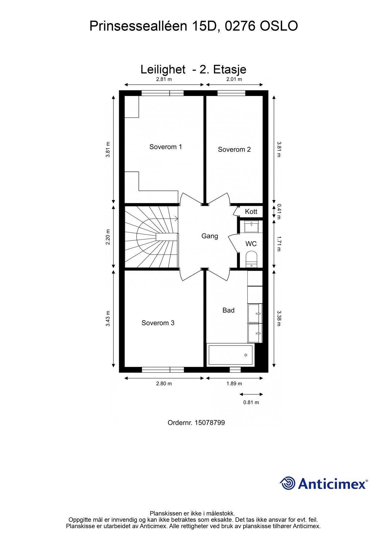
Om boligen
Lys og delikat 4-roms leilighet over to plan i attraktive Casinetto borettslag på Skøyen/Madserud. Leiligheten har svært god intern beliggenhet, egen inngang med trappefri adkomst og rekkehusfølelse i barnevennlige omgivelser.
Fra stuen er det utgang til balkong med nye terrassebord (2024) og direkte adkomst til stor gressplen, leketun og park, med fritt utsyn mot grøntområder. Fra kjøkkenet er det utsyn til lekeområdet. Planløsningen er familievennlig med romslig stue med karnapp i 1. etasje samt 3 soverom, pent bad og separat toalett i 2. etasje.
Leiligheten fremstår lys og innbydende og er oppgradert med ny enstavs eikeparkett, nye fliser i gang og nymalte overflater inkl. lister, karmer og tak (2024), samt ny benkeplate på kjøkken (2025).
Rolig og skjermet beliggenhet i en grønn oase, med bilfri vei til Skøyen skole. Kort gangavstand til kollektivtilbud, kaféer og butikker. Frognerparken og Bygdøy ligger i umiddelbar nærhet. Egen p-plass med lader og god bodplass medfølger.
Fra stuen er det utgang til balkong med nye terrassebord (2024) og direkte adkomst til stor gressplen, leketun og park, med fritt utsyn mot grøntområder. Fra kjøkkenet er det utsyn til lekeområdet. Planløsningen er familievennlig med romslig stue med karnapp i 1. etasje samt 3 soverom, pent bad og separat toalett i 2. etasje.
Leiligheten fremstår lys og innbydende og er oppgradert med ny enstavs eikeparkett, nye fliser i gang og nymalte overflater inkl. lister, karmer og tak (2024), samt ny benkeplate på kjøkken (2025).
Rolig og skjermet beliggenhet i en grønn oase, med bilfri vei til Skøyen skole. Kort gangavstand til kollektivtilbud, kaféer og butikker. Frognerparken og Bygdøy ligger i umiddelbar nærhet. Egen p-plass med lader og god bodplass medfølger.
NB: Knappen for å vise hele beskrivelsen har kun en visuell effekt.
NB: Knappen for å vise hele beskrivelsen har kun en visuell effekt.
Salgsoppgaven beskriver vesentlig og lovpålagt informasjon om eiendommen
Se komplett salgsoppgaveNyttige lenker
Nærområdet
ASK Oslo Vest
Velkommen hjem
Annonseinformasjon
| FINN-kode | 449519950 |
|---|---|
| Sist endret | 28. feb. 2026 08:10 |
| Referanse | 40-26-0006 |
Annonsene kan være mangelfulle i forhold til lovpålagt opplysningsplikt. Før bindende avtale inngås oppfordres interessenter til å innhente komplett informasjon fra meglerforetaket, selger eller utleier.




















































