Bildegalleri

Velkommen til Åsstubben 27! - Presentert av Malin Hveem v/ Nordvik avd. Frogner. (Foto: Arne Schram)
Ullernåsen
Lys 5-roms hjørneleilighet m/god intern beliggenhet. Stor, solrik terrasse m/flott utsyn. Peis. Garasjeplass. Sentralt!
Prisantydning9 750 000 kr
Nøkkelinfo
- Boligtype
- Leilighet
- Eieform
- Eier (Selveier)
- Soverom
- 3
- Internt bruksareal
- 142 m² (BRA-i)
- Bruksareal
- 147 m²
- Eksternt bruksareal
- 5 m² (BRA-e)
- Balkong/Terrasse
- 14 m² (TBA)
- Etasje
- -1
- Byggeår
- 1983
- Energimerking
- Rom
- 4
- Tomteareal
- 31 766 m² (eiet)
Fasiliteter
Balkong/Terrasse
Barnevennlig
Bredbåndstilknytning
Garasje/P-plass
Kjæledyr tillatt
Offentlig vann/kloakk
Parkett
Peis/Ildsted
Rolig
Sentralt
Utsikt
Vaktmester-/vektertjeneste
Turterreng
Om boligen
Velkommen til Åsstubben 27, presentert av Malin Hveem v/Nordvik Frogner.
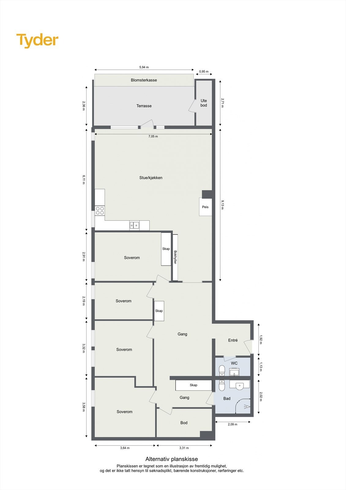
En romslig hjørneleilighet med vinduer på to sider med attraktiv og sentral beliggenhet på Ullern. Leiligheten ligger fint til i bygget og har en fin planløsning med store rom og godt naturlig lys. Boligen har et stort potensial, her kan du enkelt sette ditt eget preg da den har et godt utgangspunkt for moderne og praktiske løsninger. Fra stuen er det utgang til en romslig terrasse med flott utsyn og gode solforhold.
Kort fortalt:
- Hjørneleilighet m/store vindusflater & godt lys
- Terrasse på 14 kvm m/flott utsyn og gode solforhold m/adkomst fra stue
- God planløsning med et stort potensial
- Garasjeplass
- Peis
- Varmtvann ink.
- Gode lagringsmulighet
- Barnevennlig & attraktivt
- 2 min gange til T-bane
En romslig hjørneleilighet med vinduer på to sider med attraktiv og sentral beliggenhet på Ullern. Leiligheten ligger fint til i bygget og har en fin planløsning med store rom og godt naturlig lys. Boligen har et stort potensial, her kan du enkelt sette ditt eget preg da den har et godt utgangspunkt for moderne og praktiske løsninger. Fra stuen er det utgang til en romslig terrasse med flott utsyn og gode solforhold.
Kort fortalt:
- Hjørneleilighet m/store vindusflater & godt lys
- Terrasse på 14 kvm m/flott utsyn og gode solforhold m/adkomst fra stue
- God planløsning med et stort potensial
- Garasjeplass
- Peis
- Varmtvann ink.
- Gode lagringsmulighet
- Barnevennlig & attraktivt
- 2 min gange til T-bane
NB: Knappen for å vise hele beskrivelsen har kun en visuell effekt.
NB: Knappen for å vise hele beskrivelsen har kun en visuell effekt.
Salgsoppgaven beskriver vesentlig og lovpålagt informasjon om eiendommen
Se komplett salgsoppgaveNyttige lenker
Nærområdet
Nordvik Frogner
Annonseinformasjon
| FINN-kode | 454126098 |
|---|---|
| Sist endret | 12. mars 2026 12:36 |
| Referanse | 14-0579/25 |
Annonsene kan være mangelfulle i forhold til lovpålagt opplysningsplikt. Før bindende avtale inngås oppfordres interessenter til å innhente komplett informasjon fra meglerforetaket, selger eller utleier.


















































