Bildegalleri

Velkommen til Prinsessealléen 2, presentert av Tinholt Eiendomsmegling.
SKØYEN / MADSERUD
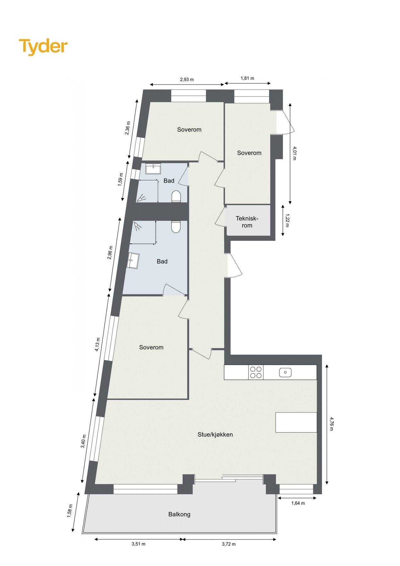
Ny, lys og delikat hjørneleilighet| Grønne omgivelser|Solrik balkong på 13 m²| Heis| *Garasjepl.| 3 sov| 2 bad| Takhage
Prisantydning12 900 000 kr
Nøkkelinfo
- Boligtype
- Leilighet
- Eieform
- Selveier
- Soverom
- 3
- Internt bruksareal
- 89 m² (BRA-i)
- Bruksareal
- 94 m²
- Eksternt bruksareal
- 5 m² (BRA-e)
- Balkong/Terrasse
- 13 m² (TBA)
- Etasje
- 3
- Byggeår
- 2025
- Energimerking
- Rom
- 4
- Tomteareal
- 3 267 m² (eiet)
Fasiliteter
Barnevennlig
Balkong/Terrasse
Garasje/P-plass
Kabel-TV
Heis
Offentlig vann/kloakk
Parkett
Turterreng
Vaktmester-/vektertjeneste
Sentralt
Bredbåndstilknytning
Moderne
Lademulighet
Balansert ventilasjon
Om boligen
Lekker, nyoppført endeleilighet i ettertraktede Prinsessealléen på Skøyen/Madserud. Boligen utstråler kvalitet i alle ledd, med nøye utvalgte materialer og en gjennomført planløsning som balanserer sosiale og private soner. Store vindusflater fra gulv til tak på tre sider gir en luftig og lys atmosfære, balkong på enden forlenger oppholdsrommet utendørs. Boligen gir et godt inntrykk, ekstra takhøyde, 3 soverom, 2 lekre bad og fantastiske oppholdssoner.
Heis opp til fantastisk felles takterrasse med sol fra morgen til kveld eller benytt den skjermede bakhagen m/frodige grøntområder. Urban plassering rett ved Skøyen & Karenslyst allé med alle servicetilbud.
KVALITETER:
Heis opp til fantastisk felles takterrasse med sol fra morgen til kveld eller benytt den skjermede bakhagen m/frodige grøntområder. Urban plassering rett ved Skøyen & Karenslyst allé med alle servicetilbud.
KVALITETER:
- Vannbåren gulvvarme
- 5 års ny-garanti
- *Mulighet for kjøp av garasjepl med el-lader, kr 1 000 000,-
- 300 m, fransk bakeri
- Nærhet: Frognerparken/Engelske park
- Restaurant Sabaki & Peloton vinbar, 200 m
- Energieffektiv, GRØNT boliglån
NB: Knappen for å vise hele beskrivelsen har kun en visuell effekt.
NB: Knappen for å vise hele beskrivelsen har kun en visuell effekt.
Salgsoppgaven beskriver vesentlig og lovpålagt informasjon om eiendommen
Se komplett salgsoppgaveNærområdet
TINHOLT Eiendomsmegling
Du vil kjenne forskjellen
Annonseinformasjon
| FINN-kode | 454633971 |
|---|---|
| Sist endret | 25. mars 2026 05:06 |
| Referanse | 201260095 |
Annonsene kan være mangelfulle i forhold til lovpålagt opplysningsplikt. Før bindende avtale inngås oppfordres interessenter til å innhente komplett informasjon fra meglerforetaket, selger eller utleier.





























