Bildegalleri

Velkommen til Fiskeholsvegen 34!
Stor familiebolig med romslig tomt og gode solforhold * Nytt tak og kjøkken * Bør oppleves
Nøkkelinfo
- Boligtype
- Enebolig
- Eieform
- Eier (Selveier)
- Soverom
- 4
- Internt bruksareal
- 253 m² (BRA-i)
- Bruksareal
- 253 m²
- Eksternt bruksareal
- 19 m² (BRA-e)
- Balkong/Terrasse
- 38 m² (TBA)
- Byggeår
- 1978
- Energimerking
- E - Gul
- Tomteareal
- 731 m² (eiet)
- Boligselgerforsikring
- Ja
Fasiliteter
Visning
Om boligen
Innholdsrik og romslig enebolig med gjennomtenkt planløsning over tre etasjer, stor tomt på 731 kvm og attraktiv beliggenhet nær sjø og flotte rekreasjonsområder. Boligen byr på flere oppholdsrom, god romfordeling og høy bokomfort, kombinert med betydelige oppgraderinger de senere årene.
Eiendommen har pent opparbeidet hage, solrik terrasse, romslig innkjørsel og carport, samt svært gode solforhold og flott beliggenhet i et veletablert og barnevennlig nabolag.
2. etasje: Loftsstue, hovedsoverom med eget bad, ytterligere to soverom, bad og gang
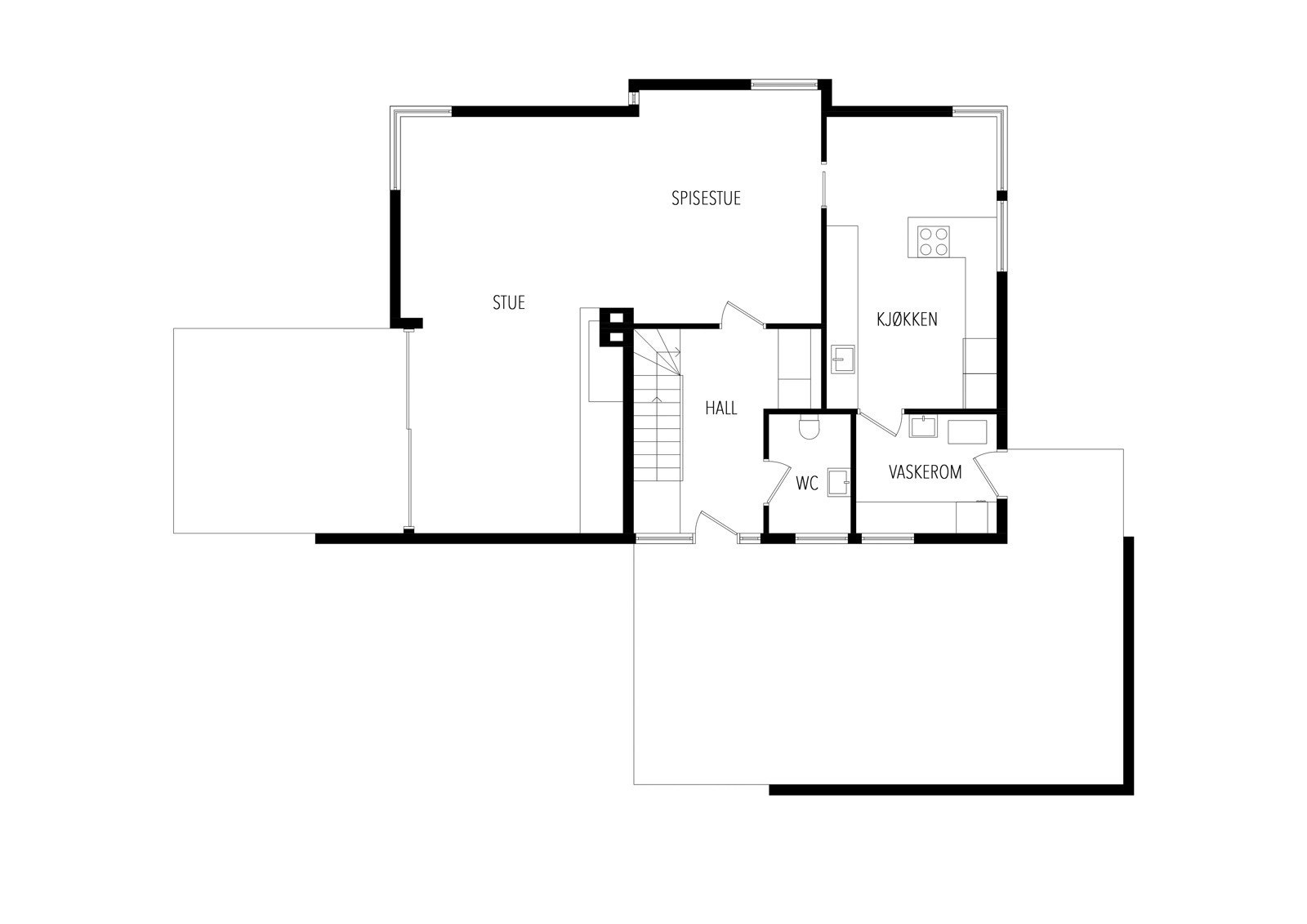
1. etasje: Entré/gang, toalettrom, vaskerom med biinngang, kjøkken, spisestue og stue
Underetasje: Kjellerstue, bad med badstue, kontor, treningsrom, flere boder og tekniske rom
Salgsoppgaven beskriver vesentlig og lovpålagt informasjon om eiendommen
Se komplett salgsoppgaveNyttige lenker
Nærområdet

PrivatMegleren Haferkamp & Partnere
Annonseinformasjon
| FINN-kode | 447646757 |
|---|---|
| Sist endret | 30. jan. 2026 03:17 |
| Referanse | 301250312 |
Annonsene kan være mangelfulle i forhold til lovpålagt opplysningsplikt. Før bindende avtale inngås oppfordres interessenter til å innhente komplett informasjon fra meglerforetaket, selger eller utleier.


























































