Bildegalleri

Foto: Trond Eirik Husvæg
Sørnes - Innholdsrik VD-bolig med dobbel garasje, pent uteområde og flott sjøutsikt
Prisantydning6 990 000 kr
Nøkkelinfo
- Boligtype
- Tomannsbolig
- Eieform
- Selveier
- Soverom
- 3
- Internt bruksareal
- 186 m² (BRA-i)
- Bruksareal
- 266 m²
- Eksternt bruksareal
- 80 m² (BRA-e)
- Balkong/Terrasse
- 174 m² (TBA)
- Byggeår
- 1978
- Energimerking
- Rom
- 4
- Tomteareal
- 552 m² (eiet)
Fasiliteter
Barnevennlig
Balkong/Terrasse
Garasje/P-plass
Offentlig vann/kloakk
Parkett
Peis/Ildsted
Turterreng
Utsikt
Sentralt
Rolig
Om boligen
Vi i EIE eiendomsmegling har gleden av å presentere Hellevegen 28B for salg.
Innholdsrik del av vertikaldelt tomannsbolig. Boligen kan skilte med dobbel garasje, stort uteområde i form av heller og platting og flott utsikt mot sjøen og båthavna.
Boligen ligger i et rolig og veletablert villaområde på Sørnes med kort gangvei til flotte turområder, båthavn og sjø, samt et stort og flott idrettsanlegg. På sommeren kan du ta deg ned til Ormenlange som er en nydelig badeplass med grillområde, tursti, volleyballbane og lekeplass.
Innhold:
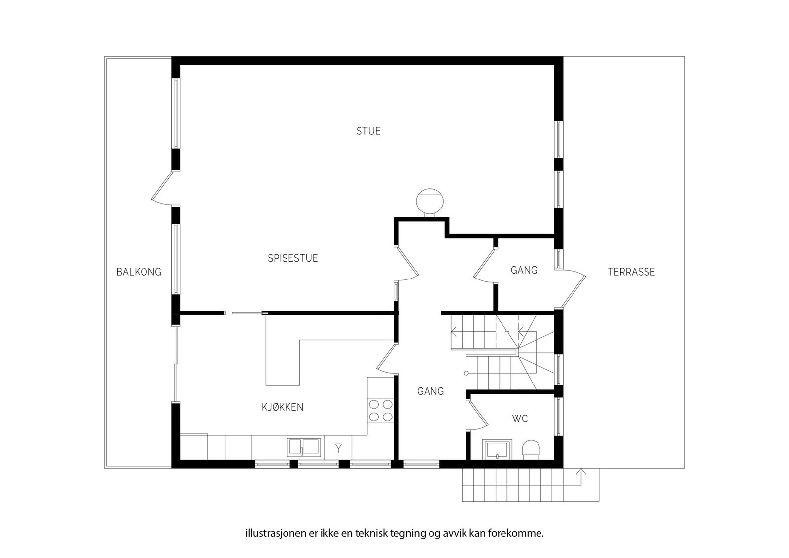
U. etg: Entré, gang, vaskerom, tre soverom, to bad og bod
1. etg: Entré, gang, wc, stue og kjøkken
2. etg: Gang, stue og hobbyrom (2. etg. er ikke tegnet inn og godkjent for varig opphold)
Frister noe av dette?
-Da bør du avlegge Hellevegen 28B et besøk!
Velkommen til en hyggelig visning.
Innholdsrik del av vertikaldelt tomannsbolig. Boligen kan skilte med dobbel garasje, stort uteområde i form av heller og platting og flott utsikt mot sjøen og båthavna.
Boligen ligger i et rolig og veletablert villaområde på Sørnes med kort gangvei til flotte turområder, båthavn og sjø, samt et stort og flott idrettsanlegg. På sommeren kan du ta deg ned til Ormenlange som er en nydelig badeplass med grillområde, tursti, volleyballbane og lekeplass.
Innhold:
U. etg: Entré, gang, vaskerom, tre soverom, to bad og bod
1. etg: Entré, gang, wc, stue og kjøkken
2. etg: Gang, stue og hobbyrom (2. etg. er ikke tegnet inn og godkjent for varig opphold)
Frister noe av dette?
-Da bør du avlegge Hellevegen 28B et besøk!
Velkommen til en hyggelig visning.
NB: Knappen for å vise hele beskrivelsen har kun en visuell effekt.
NB: Knappen for å vise hele beskrivelsen har kun en visuell effekt.
Salgsoppgaven beskriver vesentlig og lovpålagt informasjon om eiendommen
Se komplett salgsoppgaveNyttige lenker
Nærområdet
EIE eiendomsmegling Sandnes
Annonseinformasjon
| FINN-kode | 458301922 |
|---|---|
| Sist endret | 03. apr. 2026 16:45 |
| Referanse | 62260025 |
Annonsene kan være mangelfulle i forhold til lovpålagt opplysningsplikt. Før bindende avtale inngås oppfordres interessenter til å innhente komplett informasjon fra meglerforetaket, selger eller utleier.













































