Bildegalleri

DNB Eiendom V/Atle Berge har gleden av å presentere Kjerrberglia 1 - En innholdsrik enebolig med attraktiv beliggenhet på Skadberg.
Skadberg
Innholdsrik enebolig med høy standard og attraktiv beliggenhet | Leilighet | Stor garasje | Flott uteområde | Utsikt
Prisantydning15 900 000 kr
Nøkkelinfo
- Boligtype
- Enebolig
- Eieform
- Eier (Selveier)
- Soverom
- 6
- Internt bruksareal
- 426 m² (BRA-i)
- Bruksareal
- 436 m²
- Eksternt bruksareal
- 10 m² (BRA-e)
- Balkong/Terrasse
- 64 m² (TBA)
- Etasje
- 3
- Byggeår
- 2008
- Energimerking
- D - Oransje
- Tomteareal
- 596 m² (eiet)
Fasiliteter
Balkong/Terrasse
Barnevennlig
Garasje/P-plass
Hage
Kjæledyr tillatt
Offentlig vann/kloakk
Parkett
Peis/Ildsted
Utsikt
Turterreng
Balansert ventilasjon
Visning
Frist for påmelding fredag 14/11 kl 15.00.
Velkommen til visning! Meld deg på ved å trykke "visningspåmelding" i våre boligannonser.
Ta gjerne kontakt med megler i forkant av visningen om du har spørsmål.
VisningspåmeldingOm boligen
Boligen ligger fint til i et barnevennlig og etablert boligområde på populære Skadberg. Her bor man i fredelige omgivelser, samtidig som man har kort vei til alt man trenger i hverdagen som barnehager, skoler, butikker og flotte turområder.
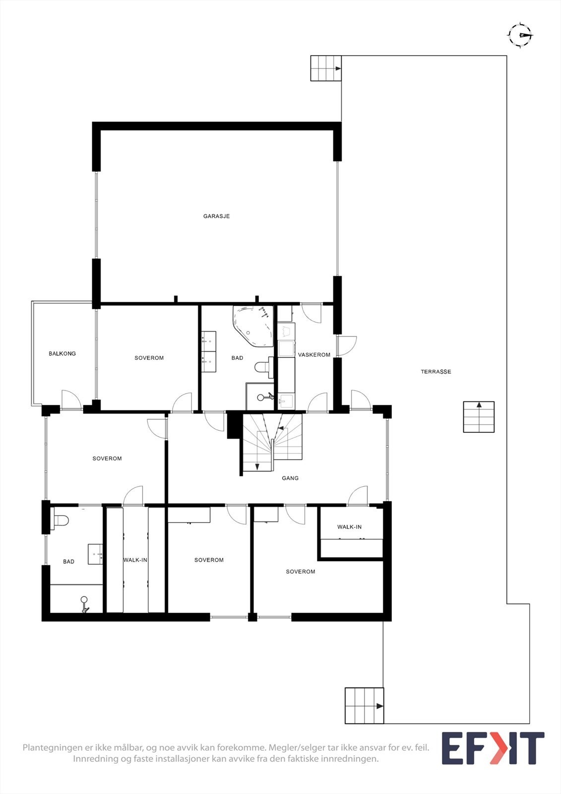
Boligen går over tre etasjer og har godkjent utleiedel med to soverom og leieinntekt på 12 500 kr per måned. Hoveddelen inneholder blant annet to store stuer (se punkt "ferdigattest"), kjøkken, fire soverom, tre baderom, toalettrom, garderoberom og vaskerom. I tillegg har man en stor garasje, lagringsplass, flott hage og en stor takterrasse med flott utsikt! Boligen holder gjennomgående høy standard med tidløse materialvalg som vil falle i smak hos de fleste.
Velkommen til visning!
Boligen går over tre etasjer og har godkjent utleiedel med to soverom og leieinntekt på 12 500 kr per måned. Hoveddelen inneholder blant annet to store stuer (se punkt "ferdigattest"), kjøkken, fire soverom, tre baderom, toalettrom, garderoberom og vaskerom. I tillegg har man en stor garasje, lagringsplass, flott hage og en stor takterrasse med flott utsikt! Boligen holder gjennomgående høy standard med tidløse materialvalg som vil falle i smak hos de fleste.
Velkommen til visning!
NB: Knappen for å vise hele beskrivelsen har kun en visuell effekt.
NB: Knappen for å vise hele beskrivelsen har kun en visuell effekt.
Salgsoppgaven beskriver vesentlig og lovpålagt informasjon om eiendommen
Se komplett salgsoppgaveNyttige lenker
Nærområdet
DNB Eiendom AS
Fra hjem til hjem
Annonseinformasjon
| FINN-kode | 406373175 |
|---|---|
| Sist endret | 09. jan. 2026 11:29 |
| Referanse | 702250203 |
Annonsene kan være mangelfulle i forhold til lovpålagt opplysningsplikt. Før bindende avtale inngås oppfordres interessenter til å innhente komplett informasjon fra meglerforetaket, selger eller utleier.















































