Bildegalleri

Eiendomsmegler1 v/ Hanne K. Solbakken presenterer Øvre Maihaugen 1B!
Solgt
Skien - Gulset
Leilighet i 4.etg m/innglasset balkong mot syd - 3 sov - god planløsning
Prisantydning1 400 000 kr
Nøkkelinfo
- Boligtype
- Leilighet
- Eieform
- Andel
- Soverom
- 3
- Internt bruksareal
- 83 m² (BRA-i)
- Bruksareal
- 98 m²
- Eksternt bruksareal
- 5 m² (BRA-e)
- Innglasset balkong
- 10 m² (BRA-b)
- Balkong/Terrasse
- 10 m² (TBA)
- Etasje
- 4
- Byggeår
- 1973
- Energimerking
- G - Rød
- Rom
- 4
- Tomteareal
- 21 996 m² (eiet)
Fasiliteter
Balkong/Terrasse
Barnevennlig
Garasje/P-plass
Kabel-TV
Rolig
Turterreng
Lademulighet
Om boligen
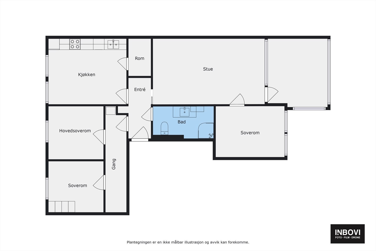
Hyggelig 3-roms leilighet beliggende i 4.etasje. Leiligheten innehar en fin planløsning, med gode rom. Innehold: entré, stue, kjøkken, 3 soverom, bad og bod. Leiligheten har en usjenert og fin beliggenhet i 4.etg, med en stor, innglasset balkong med utsyn mot felles grøntarealer. Kabel tv og internett er inkludert i felleskostnadene.
Borettslaget har pågående prosjekt med renovering av bad, vann og avløp, samt ventilasjonsanlegg. Oppstart i uke 33 med ferdigstillelse i uke 42 i 2025. Økning av fellesgjeld og felleskostnader skjer når arbeidene i denne blokka er ferdigstilt.
Borettslaget ligger fint til på Gulset i Skien, et barnevennlig og attraktivt område med kort vei til de fleste fasiliteter
Borettslaget har pågående prosjekt med renovering av bad, vann og avløp, samt ventilasjonsanlegg. Oppstart i uke 33 med ferdigstillelse i uke 42 i 2025. Økning av fellesgjeld og felleskostnader skjer når arbeidene i denne blokka er ferdigstilt.
Borettslaget ligger fint til på Gulset i Skien, et barnevennlig og attraktivt område med kort vei til de fleste fasiliteter
NB: Knappen for å vise hele beskrivelsen har kun en visuell effekt.
NB: Knappen for å vise hele beskrivelsen har kun en visuell effekt.
Salgsoppgaven beskriver vesentlig og lovpålagt informasjon om eiendommen
Se komplett salgsoppgaveNyttige lenker
Nærområdet
EiendomsMegler 1 Skien
En del av Sparebank 1 Sør-Norge
Prisstatistikk
Øvre Maihaugen 1B
2 558 klikk
på annonsen
16 867 kr
prisantydning per kvadratmeter
Prisfordeling
Pris per m² ligger 17 133 kr under snittet for leiligheter i Skien.
Grafen viser antall leiligheter solgt i Skien siste året fordelt på pris per m² - totalt 550 leiligheter
Antall boliger
Kvadratmeterpris tilsvarer prisantydning pluss fellesgjeld per kvadratmeter (p-rom eller BRA-i). Prisene i grafen er avrundet til nærmeste 1000 kr.
Annonseinformasjon
| FINN-kode | 372265934 |
|---|---|
| Sist endret | 13. jan. 2025 07:00 |
| Referanse | 1410240375 |
Annonsene kan være mangelfulle i forhold til lovpålagt opplysningsplikt. Før bindende avtale inngås oppfordres interessenter til å innhente komplett informasjon fra meglerforetaket, selger eller utleier.





















