Bildegalleri

EiendomsMegler1 v/ Marthe Frantzen har gleden av å presentere Turistveien 49B!
Kroppanmarka
STOR OG INNHOLDSRIK HALVPART PÅ 140m² BRA | Takterrasse med gode solforhold | 3 soverom | Garasje | Rolig område
Prisantydning4 150 000 kr
Nøkkelinfo
- Boligtype
- Tomannsbolig
- Eieform
- Eier (Selveier)
- Soverom
- 3
- Internt bruksareal
- 140 m² (BRA-i)
- Bruksareal
- 140 m²
- Eksternt bruksareal
- 31 m² (BRA-e)
- Balkong/Terrasse
- 37 m² (TBA)
- Etasje
- 3
- Byggeår
- 1919
- Energimerking
- G - Rød
- Rom
- 4
- Tomteareal
- 1 730 m² (eiet)
Visning
tirsdag, 24. mars
16:00 – 17:00
Våre visninger har påmelding. Dette gjør vi for å kunne yte bedre service for våre kunder. Verdifullt for boligkjøper og for oss. Vi anbefaler at salgsoppgaven lastes ned digitalt før visning, og ring oss gjerne på forhånd for spørsmål om boligen. Passer ikke angitt tidspunkt, ta kontakt så finner vi en løsning. Skulle det mot formodning ikke være påmeldte til angitt visningstidspunkt vil ikke visning bli gjennomført.
Om boligen
Velkommen til Turistveien 49B!
EiendomsMegler1 ved Marthe Frantzen har gleden av å presentere en stor og innholdsrik halvpart av tomannsbolig. Boligen er horisontaldelt, og denne halvparten strekker seg over 2. etasje og loft.
Eiendommen ligger svært fint til i boligfeltet, og kan skilte med nydelig utsikt og gode solforhold. Området er rolig og familievennlig, med gangavstand til blant annet skole, barnehage og dagligvarebutikk.
Kvaliteter verdt å nevne:
EiendomsMegler1 ved Marthe Frantzen har gleden av å presentere en stor og innholdsrik halvpart av tomannsbolig. Boligen er horisontaldelt, og denne halvparten strekker seg over 2. etasje og loft.
Eiendommen ligger svært fint til i boligfeltet, og kan skilte med nydelig utsikt og gode solforhold. Området er rolig og familievennlig, med gangavstand til blant annet skole, barnehage og dagligvarebutikk.
Kvaliteter verdt å nevne:
- Fantastisk takterrasse på hele 37kvm. Her kan man nyte gode solforhold og fin utsikt
- Egen praktisk inngang i 1. etasje, med god oppbevaringsplass for sko- og yttertøy
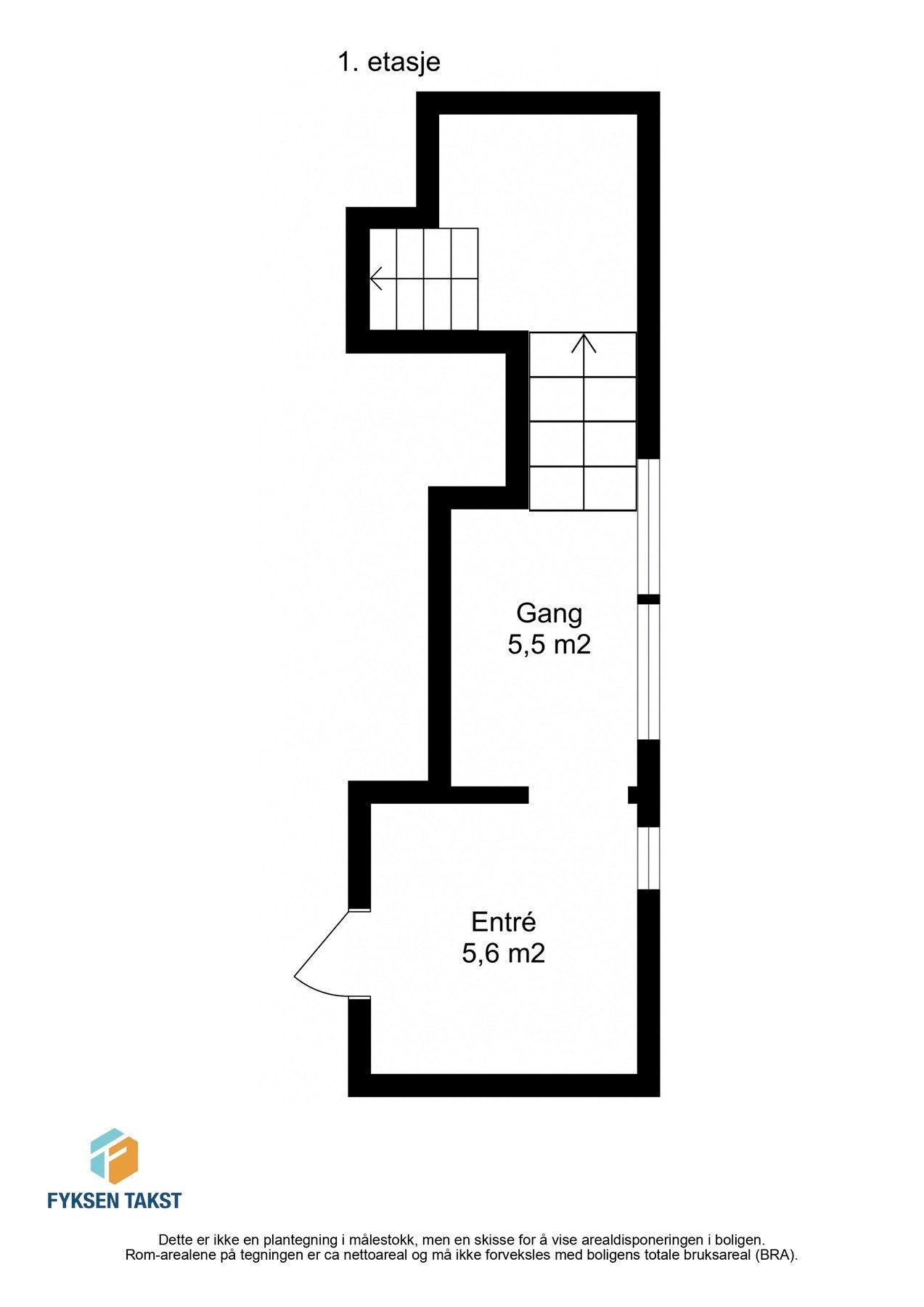
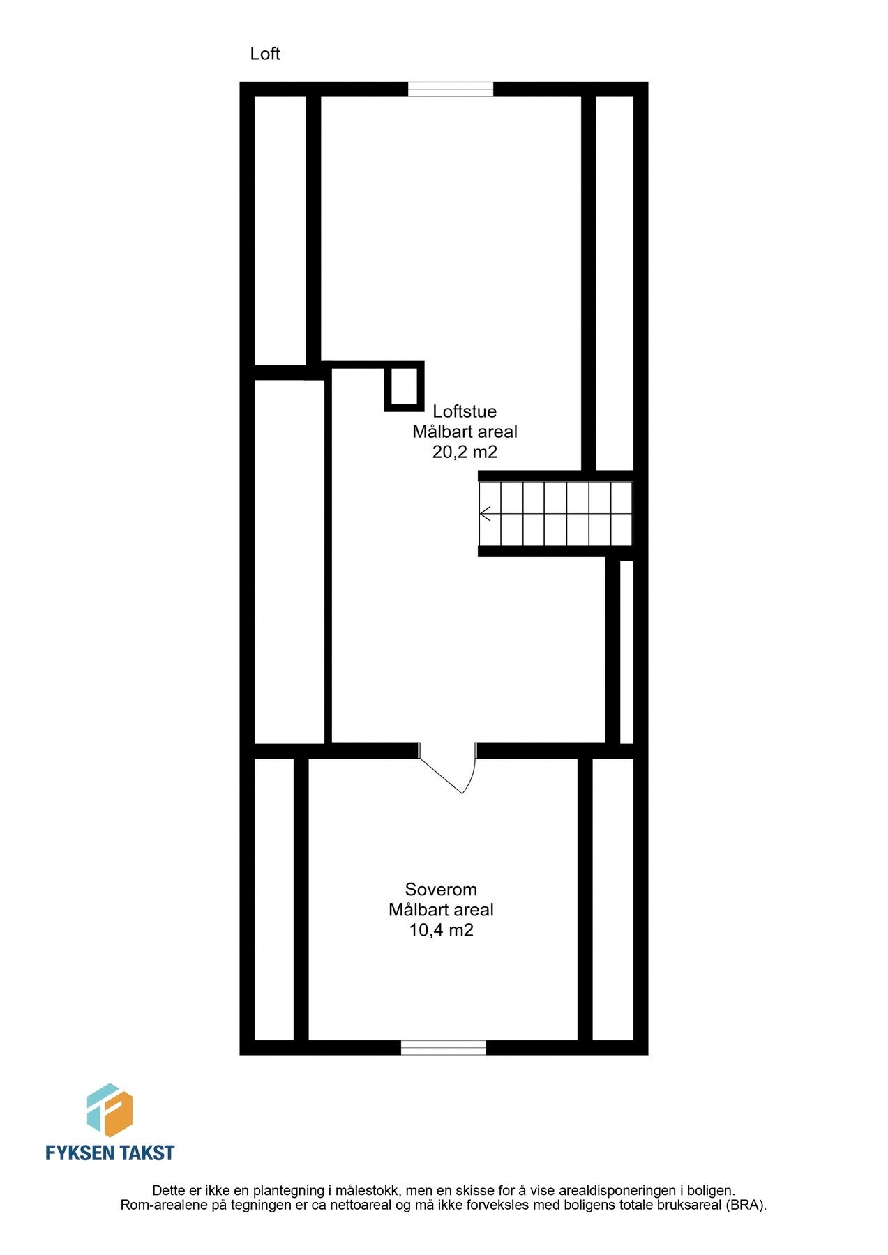
- Praktisk planløsning med stue, kjøkken, bad og 2 soverom på hovedplan i tillegg til soverom og rom brukt som loftstue på loftet
- Romslig og pent bad fra 2009
- Kjøkken oppgradert i 2013. Stort kjøkken med mye skap- og benkeplass
- Garasje fra 2019
- Nye vinduer og balkongdør fra 2015/2016
- Godt med lagringsplass i bod over garasje
- Steinlagt gårdsplass. Her har man oppstillingsplasser for bil
- Skjermet og rolig beliggenhet i blindgate
- Gode bussforbindelser til både sentrum og Tiller med alle servicefunksjoner
- Flotte turområder i nærmiljøet. Blant annet langs Nidelva
Velkommen til hyggelig visning!
NB: Knappen for å vise hele beskrivelsen har kun en visuell effekt.
NB: Knappen for å vise hele beskrivelsen har kun en visuell effekt.
Salgsoppgaven beskriver vesentlig og lovpålagt informasjon om eiendommen
Se komplett salgsoppgaveNærområdet
EiendomsMegler 1 Heimdal
Vi loser deg trygt gjennom hele boligsalget
Annonseinformasjon
| FINN-kode | 454145316 |
|---|---|
| Sist endret | 13. mars 2026 13:27 |
| Referanse | 31250626 |
Annonsene kan være mangelfulle i forhold til lovpålagt opplysningsplikt. Før bindende avtale inngås oppfordres interessenter til å innhente komplett informasjon fra meglerforetaket, selger eller utleier.











































