Bildegalleri

Velkommen til Klettvegen 25A!
Leinstrand/Klett
STOR OG VEDLIKEHOLDT HALVPART | SENTRALT PÅ LEINSTRAND | GODE SOLFORHOLD | STOR GARASJE OG FLERE UTEPLASSER
Prisantydning5 290 000 kr
Nøkkelinfo
- Boligtype
- Tomannsbolig
- Eieform
- Eier (Selveier)
- Soverom
- 4
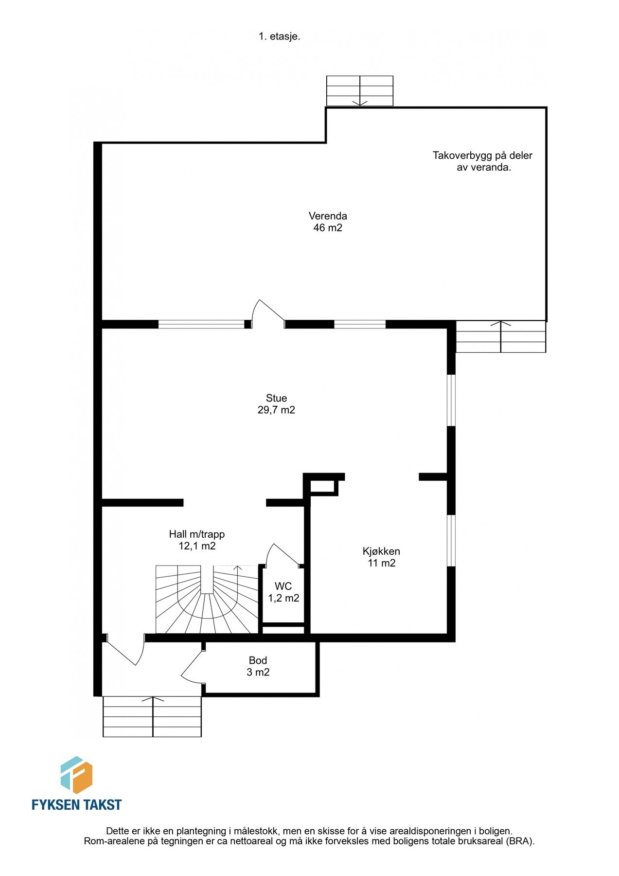
- Internt bruksareal
- 152 m² (BRA-i)
- Bruksareal
- 200 m²
- Eksternt bruksareal
- 45 m² (BRA-e)
- Balkong/Terrasse
- 49 m² (TBA)
- Byggeår
- 1962
- Energimerking
- E - Oransje
- Rom
- 5
- Tomteareal
- 634 m² (eiet)
Fasiliteter
Barnevennlig
Balkong/Terrasse
Garasje/P-plass
Fiskemulighet
Peis/Ildsted
Turterreng
Bredbåndstilknytning
Rolig
Visning
torsdag, 19. mars
17:00 – 18:00
Våre visninger har påmelding. Dette gjør vi for å kunne yte bedre service for våre kunder. Verdifullt for boligkjøper og for oss. Vi anbefaler at salgsoppgaven lastes ned digitalt før visning, og ring oss gjerne på forhånd for spørsmål om boligen. Passer ikke angitt tidspunkt, ta kontakt så finner vi en løsning. Skulle det mot formodning ikke være påmeldte til angitt visningstidspunkt vil ikke visning bli gjennomført.
Om boligen
Eiendomsmegler 1 ved Martin Antonsen har gleden av å presentere denne sjeldne muligheten på Klettvegen 25A!
Halvparten ligger sentralt til på Leinstrand og er kun en kort kjøretur unna "alt" av servicefasiliteter.
Her har du gode solforhold og Bunnpris Klett ligger 50 meter unna. Samtidig har du et barnevennlig område hvor det er gang og sykkelvei til både barneskole og barnehage. Halvparten føles sentral men også landlig og det er gode busstilganger fra Klettkrysset og Leinstrand samfunsshus.
Kvaliteter verdt å trekke frem!
Gode solforhold
4 soverom
Seperat vaskerom og wc
Stor terrasse med "grillbu"
Isolert garasje og stor oppstillingsplass til bil
Servicefunksjoner rett i nærheten på Heimdal og Tiller
Gode idrettstilbud til barn
Fotballbane rett over veien
Velkommen til en hyggelig visning!
Halvparten ligger sentralt til på Leinstrand og er kun en kort kjøretur unna "alt" av servicefasiliteter.
Her har du gode solforhold og Bunnpris Klett ligger 50 meter unna. Samtidig har du et barnevennlig område hvor det er gang og sykkelvei til både barneskole og barnehage. Halvparten føles sentral men også landlig og det er gode busstilganger fra Klettkrysset og Leinstrand samfunsshus.
Kvaliteter verdt å trekke frem!
Gode solforhold
4 soverom
Seperat vaskerom og wc
Stor terrasse med "grillbu"
Isolert garasje og stor oppstillingsplass til bil
Servicefunksjoner rett i nærheten på Heimdal og Tiller
Gode idrettstilbud til barn
Fotballbane rett over veien
Velkommen til en hyggelig visning!
NB: Knappen for å vise hele beskrivelsen har kun en visuell effekt.
NB: Knappen for å vise hele beskrivelsen har kun en visuell effekt.
Salgsoppgaven beskriver vesentlig og lovpålagt informasjon om eiendommen
Se komplett salgsoppgaveNærområdet
EiendomsMegler 1 Heimdal
Vi loser deg trygt gjennom hele boligsalget
Annonseinformasjon
| FINN-kode | 454930568 |
|---|---|
| Sist endret | 12. mars 2026 13:10 |
| Referanse | 31260050 |
Annonsene kan være mangelfulle i forhold til lovpålagt opplysningsplikt. Før bindende avtale inngås oppfordres interessenter til å innhente komplett informasjon fra meglerforetaket, selger eller utleier.




































