Bildegalleri

Velkommen til Schous plass 5, en 3-roms selveier med vestvendt balkong.
Grünerløkka
3-roms selveier med vestvendt balkong og heis| Gjennomgående planløsning og god standard| Sentral beliggenhet| V.v inkl.
Prisantydning6 150 000 kr
Nøkkelinfo
- Boligtype
- Leilighet
- Eieform
- Eier (Selveier)
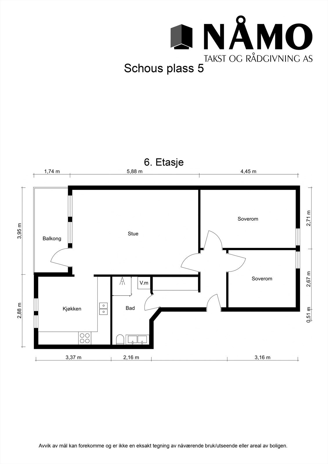
- Soverom
- 2
- Internt bruksareal
- 68 m² (BRA-i)
- Bruksareal
- 78 m²
- Eksternt bruksareal
- 10 m² (BRA-e)
- Balkong/Terrasse
- 7 m² (TBA)
- Etasje
- 6
- Byggeår
- 1985
- Energimerking
- E
- Rom
- 3
- Tomteareal
- 584 m² (eiet)
Fasiliteter
Balkong/Terrasse
Bredbåndstilknytning
Heis
Kjæledyr tillatt
Ingen gjenboere
Kabel-TV
Offentlig vann/kloakk
Parkett
Rolig
Sentralt
Turterreng
Om boligen
Velkommen til en attraktiv 3-roms leilighet på Schous Plass i Oslo. Denne boligen ligger i et populært område med gode solforhold og nærhet til både skoler og barnehager. Området er kjent for sitt livlige miljø med et bredt utvalg av servicetilbud, samt enkel tilgang til offentlig transport og flotte turmuligheter.
-Delikat baderom fra 2024
-Kjøkken fra 2018
-In-ordning
-Felleskostnader utgjør kun 6 079,- ved innfrielse av fellesgjeld.
-Varmtvann og fiber inkl. i fellesutgiftene
-To boder
-Frodig, opparbeidet bakgård
-Ingen gjenboere
-Vestvendt balkong
-Her er det bare å flytte rett inn!
-Delikat baderom fra 2024
-Kjøkken fra 2018
-In-ordning
-Felleskostnader utgjør kun 6 079,- ved innfrielse av fellesgjeld.
-Varmtvann og fiber inkl. i fellesutgiftene
-To boder
-Frodig, opparbeidet bakgård
-Ingen gjenboere
-Vestvendt balkong
-Her er det bare å flytte rett inn!
NB: Knappen for å vise hele beskrivelsen har kun en visuell effekt.
NB: Knappen for å vise hele beskrivelsen har kun en visuell effekt.
Salgsoppgaven beskriver vesentlig og lovpålagt informasjon om eiendommen
Se komplett salgsoppgaveNærområdet
Aktiv Oslo Nord
Annonseinformasjon
| FINN-kode | 454089288 |
|---|---|
| Sist endret | 06. mars 2026 14:30 |
| Referanse | 1104260004 |
Annonsene kan være mangelfulle i forhold til lovpålagt opplysningsplikt. Før bindende avtale inngås oppfordres interessenter til å innhente komplett informasjon fra meglerforetaket, selger eller utleier.































