Bildegalleri

Velkommen til Smiuvegen 195 | Presentert av Mohsin Ali for EiendomsMegler 1 Stovner
Gamle Stovner
Innholdsrikt og påkostet rekkehus over to plan|Kjøkken 2024 og bad 2020|Fine uteplasser og peis|Garasje|Barnevennlig
Prisantydning5 450 000 kr
Nøkkelinfo
- Boligtype
- Rekkehus
- Eieform
- Andel
- Soverom
- 3
- Internt bruksareal
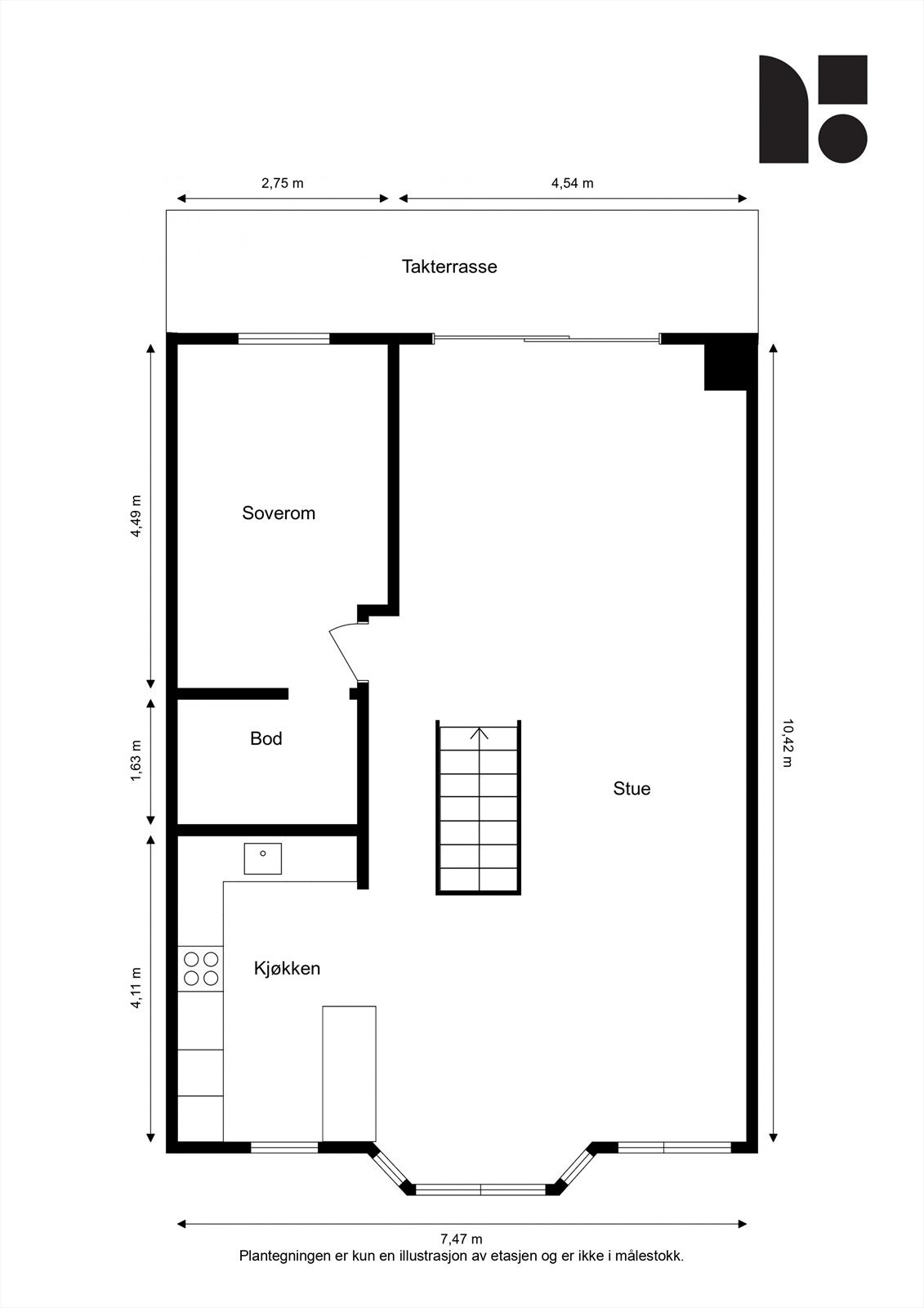
- 128 m² (BRA-i)
- Bruksareal
- 128 m²
- Balkong/Terrasse
- 27 m² (TBA)
- Etasje
- 2
- Byggeår
- 1972
- Rom
- 4
- Tomteareal
- 15 616 m² (eiet)
Fasiliteter
Balkong/Terrasse
Barnevennlig
Bredbåndstilknytning
Garasje/P-plass
Kabel-TV
Offentlig vann/kloakk
Rolig
Om boligen
Innholdsrikt og familievennlig rekkehus over to plan, med tre gode soverom, oppusset kjøkken og bad, herlige uteplasser og medfølgende garasjeplass i rekke. Boligen har en attraktiv og familievennlig beliggenhet på Nedre Stovner, et veletablert boligområde som kombinerer nærhet til både servicetilbud og grønne lunger. Her bor man tilbaketrukket og rolig, samtidig som alt man trenger i hverdagen er innen kort rekkevidde.
Høydepunkter:
- Pent og oppusset rekkehus
- Familievennlig løsning o/2 plan
- Herlige uteplasser og hage
- Lys og trivelig stue med peis
- Flott kjøkken fra 2024
- Delikat bad oppusset i 2020
- Oppgradert EL
- Tre gode og lune soverom
- Gode oppbevaringsmuligheter
- Garasjeplass
- Gangavstand til Stovner og Haugenstua
- 3 min gange til buss
Høydepunkter:
- Pent og oppusset rekkehus
- Familievennlig løsning o/2 plan
- Herlige uteplasser og hage
- Lys og trivelig stue med peis
- Flott kjøkken fra 2024
- Delikat bad oppusset i 2020
- Oppgradert EL
- Tre gode og lune soverom
- Gode oppbevaringsmuligheter
- Garasjeplass
- Gangavstand til Stovner og Haugenstua
- 3 min gange til buss
NB: Knappen for å vise hele beskrivelsen har kun en visuell effekt.
NB: Knappen for å vise hele beskrivelsen har kun en visuell effekt.
Salgsoppgaven beskriver vesentlig og lovpålagt informasjon om eiendommen
Se komplett salgsoppgaveNyttige lenker
Nærområdet
EiendomsMegler 1 Stovner
Vi loser deg trygt gjennom hele boligsalget
Annonseinformasjon
| FINN-kode | 439416525 |
|---|---|
| Sist endret | 28. nov. 2025 15:28 |
| Referanse | 3286250511 |
Annonsene kan være mangelfulle i forhold til lovpålagt opplysningsplikt. Før bindende avtale inngås oppfordres interessenter til å innhente komplett informasjon fra meglerforetaket, selger eller utleier.






















































