Bildegalleri

Velkommen til Stovnerveien 76D | Presentert av Mohsin Ali for EiendomsMegler 1 Stovner
Gamle Stovner
Flott rekkehus o/3plan|Fine, solrike uteplasser|Kjeller med egen inngang|Bad 2022 av fagfolk|Carport(lader)|Barnevennlig
Prisantydning6 750 000 kr
Nøkkelinfo
- Boligtype
- Rekkehus
- Eieform
- Eier (Selveier)
- Soverom
- 3
- Internt bruksareal
- 126 m² (BRA-i)
- Bruksareal
- 126 m²
- Balkong/Terrasse
- 32 m² (TBA)
- Etasje
- 3
- Byggeår
- 1955
- Rom
- 4
- Tomteareal
- 197 m² (eiet)
Fasiliteter
Balkong/Terrasse
Barnevennlig
Garasje/P-plass
Hage
Offentlig vann/kloakk
Peis/Ildsted
Lademulighet
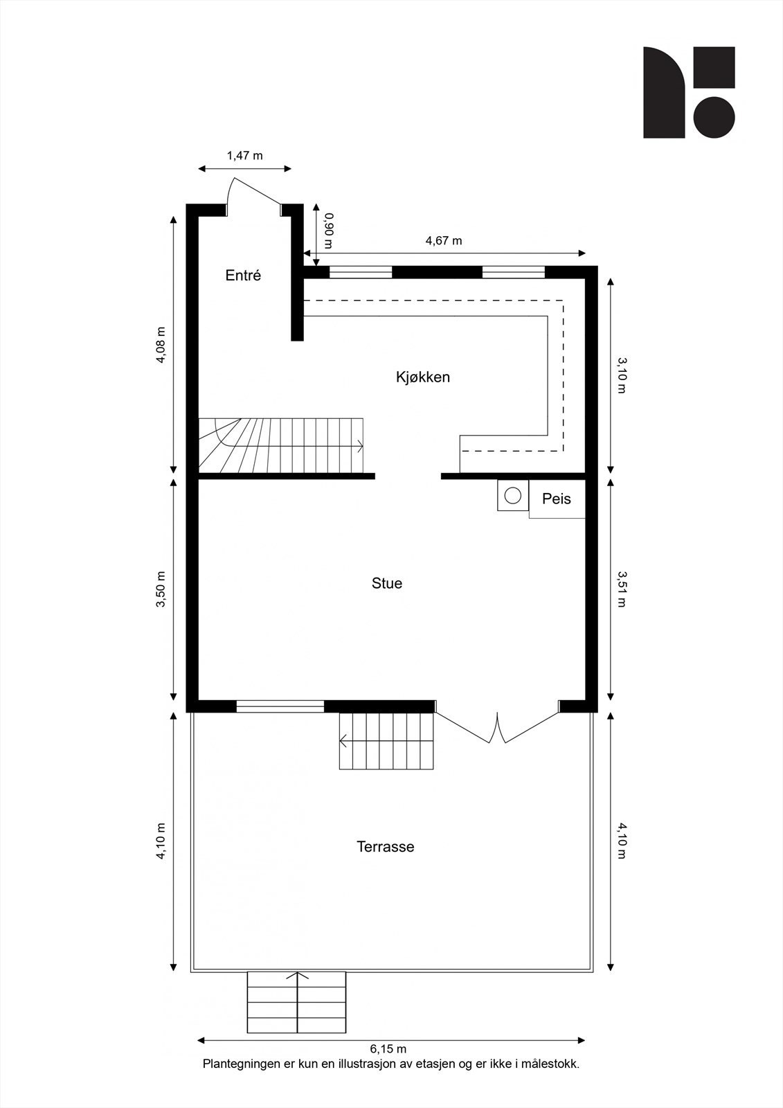
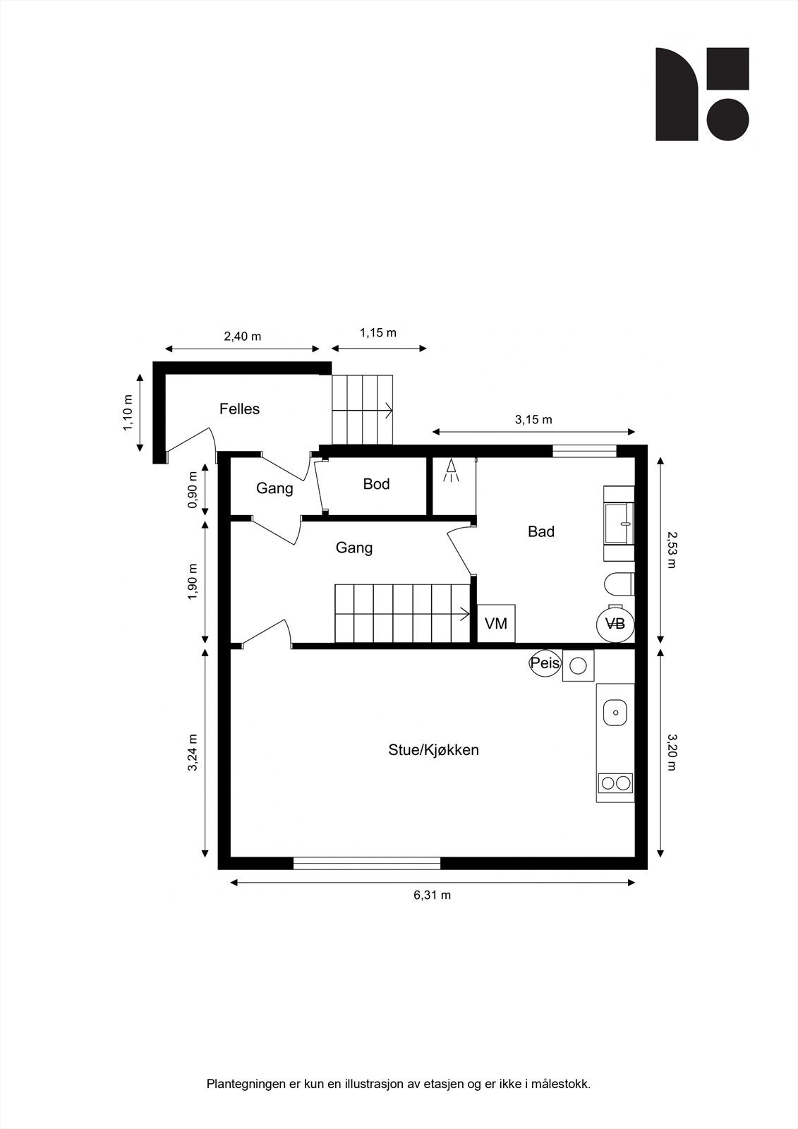
Om boligen
Tiltalende rekkehus over tre etasjer, med fine uteplasser, hage og garasjeplass i rekke. Eiendommen har en svært attraktiv beliggenhet i et nabolag som er kjent for å være trygt og familievennlig. Herfra er det kort vei til alt man trenger i hverdagen, inkludert skoler, barnehager og gode servicetilbud, noe som gjør logistikken enkel og smidig for hele familien. Bussen går i kun 3 min gange fra boligen.
Høydepunkter:
- Selveiet rekkehus
- Lave felleskost
- Tilbaketrukket og rolig beliggenhet
- Egen hage og to terrasser
- Rett ved Stovnerparken
- Lekkert nytt bad oppusset i 2022 m/ dokumentasjon
- Carport m/elbillader
- Kjeller med egen inngang
- Nærhet til marka
- 2 nye peiser fra 2023
- Varmepumpe fra 2020
- Oppgradert el-anlegg i sameiet i 2025
Høydepunkter:
- Selveiet rekkehus
- Lave felleskost
- Tilbaketrukket og rolig beliggenhet
- Egen hage og to terrasser
- Rett ved Stovnerparken
- Lekkert nytt bad oppusset i 2022 m/ dokumentasjon
- Carport m/elbillader
- Kjeller med egen inngang
- Nærhet til marka
- 2 nye peiser fra 2023
- Varmepumpe fra 2020
- Oppgradert el-anlegg i sameiet i 2025
NB: Knappen for å vise hele beskrivelsen har kun en visuell effekt.
NB: Knappen for å vise hele beskrivelsen har kun en visuell effekt.
Salgsoppgaven beskriver vesentlig og lovpålagt informasjon om eiendommen
Se komplett salgsoppgaveNyttige lenker
Nærområdet
EiendomsMegler 1 Stovner
Vi loser deg trygt gjennom hele boligsalget
Annonseinformasjon
| FINN-kode | 435991815 |
|---|---|
| Sist endret | 08. jan. 2026 15:51 |
| Referanse | 6041260089 |
Annonsene kan være mangelfulle i forhold til lovpålagt opplysningsplikt. Før bindende avtale inngås oppfordres interessenter til å innhente komplett informasjon fra meglerforetaket, selger eller utleier.
























































































