
Bildegalleri

Moderne leilighet med befriende utsikt.
Asker/Slemmestad, leilighet i nybygg
- Månedsleie
- 12 000 kr
- Depositum
- 36 000 kr
Nøkkelinfo
- Primærrom
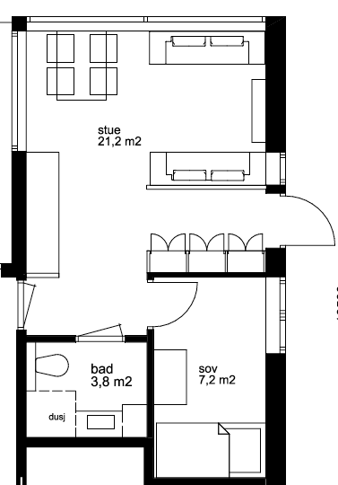
- 32 m²
- Boligtype
- Hybel
- Soverom
- 1
- Etasje
- 1.
- Leieperiode
- 01.01.2026
Fasiliteter
Beskrivelse
Moderne 2 roms hybel i nybygg med utsikt. Kort vei til turterreng, badevann, skiløyper og marka. Gåavstand til Rortunet kjøpesenter. 30 min med båt til Aker Brygge hele året. Buss til Oslo hele døgnet.
Leiligheten er på 32 kvadratmeter med nytt nybygd kjøkken, inkludert oppvaskmaskin, induksjonstopp og stekeovn. Hybelen er moderne og har høy standard med balansert ventilasjon og vannbåren varme. Åpen stue/kjøkkenløsning. Delikat og lekkert flislagt bad med vaskemaskin. Romslig soverom med skap og plass til dobbeltseng.
Strøm kommer i tillegg. Strømforbruk avregnes med separat strømmåler.
Egen inngang på bakkeplan. Biloppstillingsplass er inkludert.
Kan være fleksibel med hensyn til innflytningsdato. Foretrekker langtidsleie.
Visning etter avtale.
Send gjerne en melding med litt informasjon om deg/dere ved interesse.
Visning
Trenger du en kontrakt?
- Utfylt kontrakt med opplysninger fra annonsen
- Digital signering
- Gratis tjeneste
- Godkjent av Forbrukerrådet
Nærområdet
Annonsene kan være mangelfulle i forhold til lovpålagt opplysningsplikt. Før bindende avtale inngås oppfordres interessenter til å innhente komplett informasjon fra meglerforetaket, selger eller utleier.
Lignende annonser













