Bildegalleri

EiendomsMegler 1 ved Anders Keiseraas har gleden av å presentere Søndre Husebytun 7 G.
FLOTT OG INNHOLDSRIKT REKKEHUS OVER TRE PLAN. Attraktiv beliggenhet. Carport. Særdeles barnevennlig. Nærhet til marka.
Nøkkelinfo
- Boligtype
- Rekkehus
- Eieform
- Andel
- Soverom
- 4
- Internt bruksareal
- 153 m² (BRA-i)
- Bruksareal
- 158 m²
- Eksternt bruksareal
- 5 m² (BRA-e)
- Balkong/Terrasse
- 15 m² (TBA)
- Byggeår
- 1974
- Energimerking
- D - Oransje
- Rom
- 5
- Tomt
- Eiet
Fasiliteter
Om boligen
Kvaliteter verdt å nevne:
- Særdeles lekkert kjøkken fra 2023 med integrerte hvitevarer.
- Fire soverom med gode garderobeløsninger.
- Moderne fargevalg gjennom hele boligen.
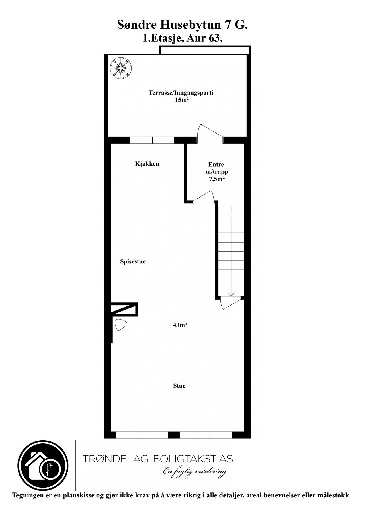
- Åpen stue/kjøkken løsning på 43m².
- Lekkert vaskerom/bad fra 2020 i kjelleretasjen.
- Flott innredet kjellerstue med peis.
- Parkering i egen carport m/sportsbod rett foran boligen.
- Kabel-TV og internett er inkludert i de månedlige felleskostnadene.
- God lagringsplass med bodareal i kjeller og ved inngangspartiet.
- Varmtvannsbereder fra 2019.
- Store vindusflater som sørger for gjennomgående sollys i stue/kjøkken.
- Rett ved Bymarka med utallige turmuligheter sommer som vinter.
- Særdeles barnevennlig beliggenhet med gangavstand til barnehage, barneskole, ungdomsskole og videregående skole.
- Gode bussforbindelser med metrobusstopp som har hyppige avganger mot sentrum.
Salgsoppgaven beskriver vesentlig og lovpålagt informasjon om eiendommen
Se komplett salgsoppgaveNærområdet
EiendomsMegler 1 Heimdal
Prisstatistikk
Søndre Husebytun 7 G
på annonsen
prisantydning per kvadratmeter
Prisfordeling
Pris per m² ligger 6 984 kr under snittet for rekkehus i Trondheim Sør.
Grafen viser antall rekkehus solgt i Trondheim Sør siste året fordelt på pris per m² - totalt 185 rekkehus
Antall boliger
Kvadratmeterpris tilsvarer prisantydning pluss fellesgjeld per kvadratmeter (p-rom eller BRA-i). Prisene i grafen er avrundet til nærmeste 1000 kr.
Annonseinformasjon
| FINN-kode | 365746510 |
|---|---|
| Sist endret | 01. apr. 2025 05:23 |
| Referanse | 31240411 |
Annonsene kan være mangelfulle i forhold til lovpålagt opplysningsplikt. Før bindende avtale inngås oppfordres interessenter til å innhente komplett informasjon fra meglerforetaket, selger eller utleier.































