Bildegalleri

EiendomsMegler 1 ved June Marie Brovold har gleden av å presentere Nedre Flatåsveg 388.
Flatåsen
Innholdsrikt og flott enderekkehus over 3 plan. Attraktiv og tilbaketrukket beliggenhet. 4 sov. Vedfyring og varmepumpe.
Prisantydning4 350 000 kr
Nøkkelinfo
- Boligtype
- Rekkehus
- Eieform
- Andel
- Soverom
- 4
- Internt bruksareal
- 153 m² (BRA-i)
- Bruksareal
- 157 m²
- Eksternt bruksareal
- 4 m² (BRA-e)
- Balkong/Terrasse
- 28 m² (TBA)
- Byggeår
- 1983
- Energimerking
- D - Gul
- Rom
- 5
- Tomteareal
- 34 600 m² (eiet)
Fasiliteter
Barnevennlig
Balkong/Terrasse
Garasje/P-plass
Kabel-TV
Offentlig vann/kloakk
Peis/Ildsted
Turterreng
Vaktmester-/vektertjeneste
Bredbåndstilknytning
Rolig
Lademulighet
Visning
onsdag, 25. mars
16:00 – 17:00
Våre visninger har påmelding. Dette gjør vi for å kunne yte bedre service for våre kunder. Verdifullt for boligkjøper og for oss. Vi anbefaler at salgsoppgaven lastes ned digitalt før visning, og ring oss gjerne på forhånd for spørsmål om boligen. Passer ikke angitt tidspunkt, ta kontakt så finner vi en løsning. Skulle det mot formodning ikke være påmeldte til angitt visningstidspunkt vil ikke visning bli gjennomført.
Om boligen
Velkommen til Nedre Flatåsveg 388.
EiendomsMegler 1 ved June Marie Brovold har gleden av å presentere et innholdsrikt og flott enderekkehus over tre plan. Rekkehuset har en svært attraktiv og tilbaketrukket beliggenhet i borettslaget med stor terrasse og gode solforhold. Fra boligen er det gangavstand til alt man behøver i hverdagen som dagligvare, skole, barnehage, bussforbindelser og gode turmuligheter året rundt.
Kvaliteter verdt å nevne:
EiendomsMegler 1 ved June Marie Brovold har gleden av å presentere et innholdsrikt og flott enderekkehus over tre plan. Rekkehuset har en svært attraktiv og tilbaketrukket beliggenhet i borettslaget med stor terrasse og gode solforhold. Fra boligen er det gangavstand til alt man behøver i hverdagen som dagligvare, skole, barnehage, bussforbindelser og gode turmuligheter året rundt.
Kvaliteter verdt å nevne:
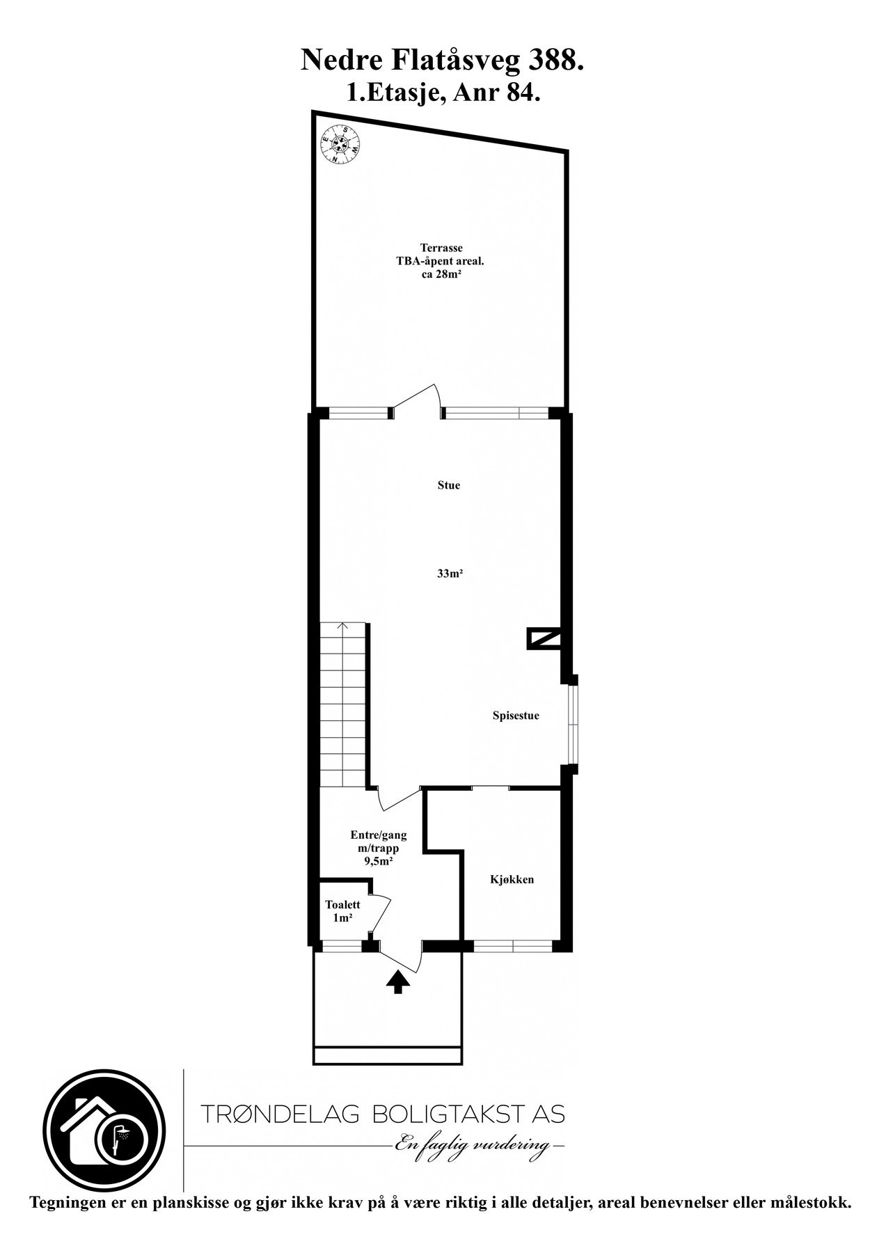
- Enderekkehus med bruksareal på 153 kvm med god planløsning
- Romslig stue på 33 kvm med gode møbleringsmuligheter
- Stor sørvendt terrasse på 28 kvm
- Boligen varmes opp via vedfyring, varmepumpe og elektrisitet
- Lekkert kjøkken vurdert til tilstandsgrad 1 av takstmann
- Fire soverom i 2. etasje
- Pent, flislagt baderom med elektrisk gulvvarme
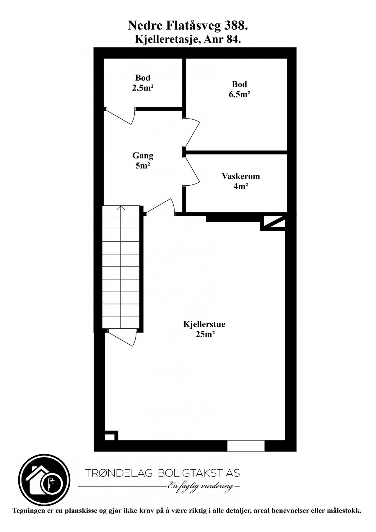
- Disponibelt rom i underetasje på 25 kvm benyttet som kjellerstue
- Praktisk vaskerom i underetasjen og separat toalett ved entré
- Godt med lagringsplass i boligen, samt utvendig bod
- Veldrevet borettslag med vaktmestertjenester
- Internett, kabel-TV og kommunale avgifter inkludert i felleskostnadene
- Parkering på borettslagets eiendom, samt mulighet for tildeling av plass i felles garasje
- Flotte fellesarealer og oppgraderte lekeplasser i borettslaget
- Tak skiftet i perioden 2021-23 i regi av borettslaget
Velkommen til en hyggelig visning!
NB: Knappen for å vise hele beskrivelsen har kun en visuell effekt.
NB: Knappen for å vise hele beskrivelsen har kun en visuell effekt.
Salgsoppgaven beskriver vesentlig og lovpålagt informasjon om eiendommen
Se komplett salgsoppgaveNærområdet
EiendomsMegler 1 Heimdal
Vi loser deg trygt gjennom hele boligsalget
Annonseinformasjon
| FINN-kode | 455241889 |
|---|---|
| Sist endret | 15. mars 2026 14:08 |
| Referanse | 31260118 |
Annonsene kan være mangelfulle i forhold til lovpålagt opplysningsplikt. Før bindende avtale inngås oppfordres interessenter til å innhente komplett informasjon fra meglerforetaket, selger eller utleier.


































