Bildegalleri

EiendomsMegler 1 ved June Marie Brovold har gleden av å presentere Nedre Flatåsveg 98. Foto: Ekaterina Krokstad (Krokstad & Nervik).
Flatåsen
Flott og innholdsrik rekkehusleilighet over to plan med endebeliggenhet. Flere solrike uteområder og hage. Rolig område.
Prisantydning3 150 000 kr
Nøkkelinfo
- Boligtype
- Leilighet
- Eieform
- Andel
- Soverom
- 2
- Internt bruksareal
- 104 m² (BRA-i)
- Bruksareal
- 109 m²
- Eksternt bruksareal
- 5 m² (BRA-e)
- Balkong/Terrasse
- 23 m² (TBA)
- Byggeår
- 1979
- Energimerking
- E - Oransje
- Rom
- 3
- Tomteareal
- 46 300 m² (eiet)
Fasiliteter
Barnevennlig
Balkong/Terrasse
Garasje/P-plass
Kabel-TV
Offentlig vann/kloakk
Peis/Ildsted
Turterreng
Vaktmester-/vektertjeneste
Bredbåndstilknytning
Rolig
Lademulighet
Balansert ventilasjon
Visning
torsdag, 26. februar
17:00 – 18:00
Våre visninger har påmelding. Dette gjør vi for å kunne yte bedre service for våre kunder. Verdifullt for boligkjøper og for oss. Vi anbefaler at salgsoppgaven lastes ned digitalt før visning, og ring oss gjerne på forhånd for spørsmål om boligen. Passer ikke angitt tidspunkt, ta kontakt så finner vi en løsning. Skulle det mot formodning ikke være påmeldte til angitt visningstidspunkt vil ikke visning bli gjennomført.
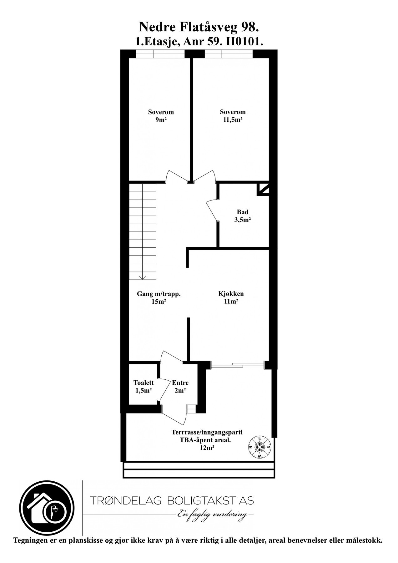
Om boligen
Velkommen til Nedre Flatåsveg 98.
EiendomsMegler 1 ved June Marie Brovold har gleden av å presentere en innbydende og innholdsrik rekkehusleilighet på Flatåsen. Leiligheten går over to plan og har en svært attraktiv endebeliggenhet i et rolig område. Fra leiligheten er det gangavstand til alt man behøver i hverdagen, som blant annet dagligvare, barnehage, skole, gode bussforbindelser og gode turmuligheter.
Kvaliteter verdt å nevne:
EiendomsMegler 1 ved June Marie Brovold har gleden av å presentere en innbydende og innholdsrik rekkehusleilighet på Flatåsen. Leiligheten går over to plan og har en svært attraktiv endebeliggenhet i et rolig område. Fra leiligheten er det gangavstand til alt man behøver i hverdagen, som blant annet dagligvare, barnehage, skole, gode bussforbindelser og gode turmuligheter.
Kvaliteter verdt å nevne:
- Solrike uteområder på begge sidene av leiligheten, samt en hageflekk
- Bruksareal på 109 kvm med store oppholdsrom
- Romslig stue med gode møbleringsmuligheter og store vindusflater
- Leiligheten varmes opp via elektrisitet og vedfyring
- Balansert ventilasjon i boligen, som bidrar til et godt inneklima
- Lekkert kjøkken med god skap- og benkeplass
- To soverom av god størrelse
- Pent, flislagt baderom med elektrisk gulvvarme
- Oppusset vaskerom og toalettrom i underetasje i 2025/26
- Godt med lagringsplass i innvendig og utvendig bod
- Borettslaget ble omfattende rehabilitert i perioden 2007-2009
Velkommen til en hyggelig visning!
NB: Knappen for å vise hele beskrivelsen har kun en visuell effekt.
NB: Knappen for å vise hele beskrivelsen har kun en visuell effekt.
Salgsoppgaven beskriver vesentlig og lovpålagt informasjon om eiendommen
Se komplett salgsoppgaveNærområdet
EiendomsMegler 1 Heimdal
Vi loser deg trygt gjennom hele boligsalget
Annonseinformasjon
| FINN-kode | 451317571 |
|---|---|
| Sist endret | 18. feb. 2026 12:23 |
| Referanse | 31260044 |
Annonsene kan være mangelfulle i forhold til lovpålagt opplysningsplikt. Før bindende avtale inngås oppfordres interessenter til å innhente komplett informasjon fra meglerforetaket, selger eller utleier.
































