Bildegalleri
Bilde av ferdigstilt hytte av hyttetype A
Furukollen, 5 nye fritidsboliger i flotte Fagerlia!
1 hytte solgt! Hytte nr. 2 er ferdig. Nydelig utsikt. Ski in/ski out
Prisantydning fra
4 490 000 kr
Prisantydning til
5 190 000 kr
Prosjektets status
Planlegging
Bygging igangsatt
Salgsstart
Bygging igangsatt
Byggestart
Bygging igangsatt, 1 hytte ferdigstilt
Overtakelse
Byggetid er estimert til 6 mnd
Nøkkelinfo
- Beliggenhet
- På fjellet
- Boligtype
- Hytte
- Soverom
- 3
- Primærrom
- 103 - 117 m²
- Bruksareal
- 109 - 125 m²
- Eieform
- Selveier
Fasiliteter
Utvalgte enheter

1
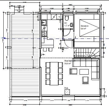
Hyttetype A. 3 soverom. 2 stuer. 1,5 bad. Sørvestvendt veranda. Carport. Badstue. Vaskerom.
Solgt
103 m²
3 soverom

5
Hyttetype B. 3 soverom. 2 stuer. 1,5 bad. Sørvestvendt veranda. Carport. Badstue. Vaskerom.
5 210 872 kr
117 m²
3 soverom
Enheter i prosjektet
Sorter etter
| Enhet | P-rom | Soverom | Totalpris | |
|---|---|---|---|---|
| 2 | 103 m² | 3 | 4 510 872 kr | |
| 3 | 103 m² | 3 | 4 510 872 kr | |
| 4 | 103 m² | 3 | 4 610 872 kr | |
| 5 | 117 m² | 3 | 5 210 872 kr |
Visning
Ta kontakt for å avtale visning.Beskrivelse
Kvaliteter
PrivatMegleren Stjørdal v/ John Espen Jullumstrø presenterer et flott fritidsboligprosjekt i Furukollen i Fagerlia. Prosjektet består av totalt 5 hytter fordelt på 2 hyttetyper. Type A blir det bygget 4 stykker av, mens Type B skal det bygges 2 av der den ene skal selges nå.
Fritidsboligene vil ha en flott beliggenhet i området, og de vil inneha mange etterspurte kvaliteter, blant disse nevnes:
- Pris fra kr. 4 490 000 - 4 750 000,- for hyttetype A
- Pris kr. 5 190 000,- for hyttetype B
- Sørvestvendt veranda som gir flotte sol- og utsiktsforhold
- 3 soverom
- 2 stuer
- 1,5 bad
- Svært god takhøyde på stue som gir luftig og god romfølelse
- Badstue
- Carport
- Ski in/ski out, se https://opplevfagerlia.no/furukollen/ for å se hvor skitraseen går til alpinanlegget
- Fra Fagerlia tar man seg ut i et gedigent løypenett med oppkjørte skiløyper. Se www.skisporet.no for mer info
- Se video her: https://wetransfer.com/previews/be009bdc77a882ff752d2791959a8ca720260327063035/712316?itemId=157a9a34c81aaea7ac89bd4aee3bd0c620260327063050
Fordeler med å kjøpe prosjekt:
- Du betaler ingenting før hytta er ferdig
- 5 års garanti
- Leveres nøkkelferdig og innflyttingsklart
- Muligheter for tilvalg og tilpasninger for å tilpasse hytta til sin stil
- God tid til forberedelse av evt. eget salg
Hyttene ligger i Fagerlia, kun ca. 40 min fra Stjørdal og en drøy time fra Trondheim. Fagerlia har noe for enhver smak og interesse. Naturen som omgir bygda byr på jakt, fiske, fjellvandring, langrenn, alpint, kiting, klatring og mye mer. I skibygda Meråker finner du bla 2 dagligvarebutikker, bensinstasjon, kafé, restaurant, byggvarehandel og bilverksted. I Fagerlia finner du et godt utbygd og preparert løypenett. Langrenn om vinteren, turstier på sommerstid. Lysløype med utgangspunkt fra parkeringsplassen i Fagerlia. Meråker Alpinsenter, og ligger i Fagerlia. Her kan du velge mellom et mangfold av aktiviteter. Varierte nedfarter bestående av både preparerte løyper og off-piste traséer. Alpinsenteret har noe for enhver smak, enten du kjører alpint, snowboard, telemark eller parkkjøring. Ta gjerne med hele familien, like ved kafeteriaen finner du også det populære barnetrekket. Kafeteriaen er åpen i anleggets åpningstid. Se mer og kjøp skipass på www.merakeralpinsenter.no. I Rypetoppen Adventurepark er det noe for nesten alle. De minste barna kan boltre seg i klatrenett- og løyper fra 1 meter over bakken, imens de litt større kan teste motet nærmere 10 meter over bakken.
Nyttige lenker
Nærområdet

Privatmegleren Stjørdal
Annonsene kan være mangelfulle i forhold til lovpålagt opplysningsplikt. Før bindende avtale inngås oppfordres interessenter til å innhente komplett informasjon fra meglerforetaket, selger eller utleier.




