Bildegalleri

Fagerlia
Furukollen, 5 nye fritidsboliger i flotte Fagerlia!
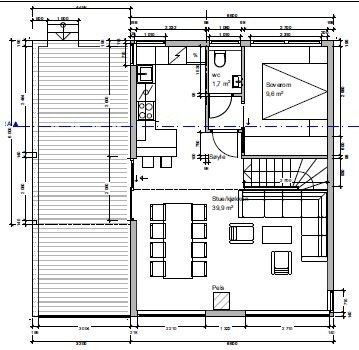
Hyttetype A. 3 soverom. 2 stuer. 1,5 bad. Sørvestvendt veranda. Carport. Badstue. Vaskerom.
Prisantydning4 490 000 kr
Prosjektets status
Planlegging
Bygging igangsatt
Salgsstart
Bygging igangsatt
Byggestart
Bygging igangsatt, 1 hytte ferdigstilt
Overtakelse
Byggetid er estimert til 6 mnd
Nøkkelinfo
- Beliggenhet
- På fjellet
- Boligtype
- Hytte
- Soverom
- 3
- Primærrom
- 103 m²
- Bruksareal
- 109 m²
Fasiliteter
Alpinanlegg
Balkong/terrasse
Bilvei frem
Garasje/P-plass
Peis/ildsted
Utsikt
Innlagt strøm
Innlagt vann
Strandlinje
Turterreng
Visning
Ta kontakt for å avtale visning.Beskrivelse
- Estimert byggetid på ca. 6 måneder
- Sørvestvendt veranda som gir flotte sol- og utsiktsforhold
- 3 soverom
- 2 stuer
- 1,5 bad
- Svært god takhøyde på stue som gir luftig og god romfølelse
- Badstue
- Carport
- Ski in/ski out, se https://opplevfagerlia.no/furukollen/ for å se hvor skitraseen går til alpinanlegget
- Fra Fagerlia tar man seg ut i et gedigent løypenett med oppkjørte skiløyper. Se www.skisporet.no for mer info
NB: Knappen for å vise hele beskrivelsen har kun en visuell effekt.
NB: Knappen for å vise hele beskrivelsen har kun en visuell effekt.
Nyttige lenker
Nærområdet

Privatmegleren Stjørdal
Kun det beste på dine vegne
Annonsene kan være mangelfulle i forhold til lovpålagt opplysningsplikt. Før bindende avtale inngås oppfordres interessenter til å innhente komplett informasjon fra meglerforetaket, selger eller utleier.



