Bildegalleri

Illustrasjonsbilde av fasade front. Boligenes uteareal grenser mot stort friområde mot vest og nord.
Ruudvegen 8 - Ratvika
2 reservert! Moderne tomannsboliger med attraktiv beliggenhet i Ruudvegen - 4 soverom, 2 bad, carport m/ sportsbod.
Prisantydning
6 290 000 kr
Prosjektets status
Planlegging
Byggesøknad til behandling.
Salgsstart
25.oktober 2024
Byggestart
Ved oppnådd salg og godkjent byggesøknad
Overtakelse
Estimert vinter 2025/2026
Nøkkelinfo
- Boligtype
- Tomannsbolig
- Soverom
- 4
- Antall etasjer
- 2
- Internt bruksareal
- 137 m² (BRA-i)
- Bruksareal
- 143 m²
- Eksternt bruksareal
- 6 m² (BRA-e)
- Eieform
- Eier (Selveier)
Fasiliteter
Enheter i prosjektet
Sorter etter
Visning
Ta kontakt for å avtale visning.Beskrivelse
Boligareal AS har gleden av å presentere Ruudvegen 8, et nytt boligprosjekt med sentral plassering i attraktive Ratvika. Her planlegges oppføring av to store og moderne tomannboliger med tilhørende carport og private uteområder. Eksisterende bygg på tomten skal rives, og de nye boligene blir liggende vestvendt med meget gode solforhold. Tomten grenser mot stort friareal mot vest og nord. Ruudvegen er et populært og barnevennlig boligområde, med kort avstand til blant annet barnehage, skole, dagligvarebutikk, kollektivtransport og Ratvika stadion, som benyttes av Aksla idrettslag.
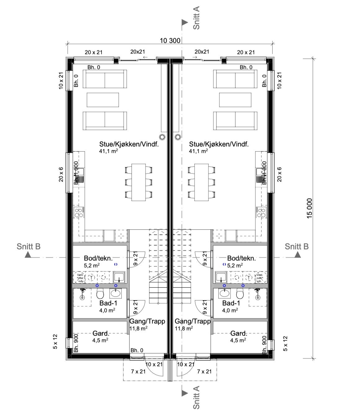
Boligene er utviklet i samarbeid med Vårdal arkitekter/ Flexibo, og med bruksareal på 137 m2 + egen carport og 5,7 m2 sportsbod, er dette en meget arealeffektiv bolig som dekker de fleste behov. Inngangspartiet er plassert på baksiden av boligen, med stor avsatt plass for eventuell garderobeløsning. Videre finner man bad, bod/ teknisk rom og stor åpen stue/ kjøkkenløsning på grunnplan. Opplegg for vaskemaskin/ tørketrommel er plassert på bod/ teknisk rom. Fra stue er det direkte tilgang til privat hage/ uteområde.
I boligens andre etasje finner man 4 soverom, bad, mediekrok og separat bod. Bod kan velges bort for eventuell større tv-stue.
Boligene leveres nøkkelferdig, men det er fullt mulig å utføre egeninnsats. Ta kontakt for mer informasjon og detaljer vedrørende egeninnsats.
Som standard leveres boligene med ferdigbehandlet Alvdal Royal Brun bordkledning, så her er det ikke behov for å finne frem malerkosten med det første. Dette i kombinasjon med vinduer og balkongdør som leveres med utvendig aluminiumkledning i farge mørk grå antrasitt, gir minimalt med utvendig vedlikeholdsbehov. Gårdsplass/ parkering, samt felles tilkomstvei fra Ruudvegen blir levert ferdig asfaltert.
Innvendig leveres boligen med malte gipsplater i tak og på vegg, listefri løsning i overgang mellom tak og vegg, samt rundt vinduer. Bad leveres med 60x60 cm flis fra Modena på gulv og vegg, med fem ulike fargevalg som standard. Bod/ teknisk rom i 1.etasje leveres flislagt på gulv med tilsvarende flis som på bad. I resterende oppholdsrom leveres gulv fra Golvabia med flere ulike fargevarianter som standard. Innvendig trapp leveres med eiketrinn, hvite vanger, rekkverk og håndlist. Eventuelle endringer og tilpasninger kan gjøres i kundemøte med trappeleverandør. Det leveres kvalitetskjøkken fra HTH med integrerte hvitevarer fra Siemens. Endringer og tilpasninger kan gjøres i kundemøte med HTH.
Alle rom på grunnplan, samt bad i 2.etasje leveres med varmekabel nedstøpt i betongplate. Det installeres stålpipe med synlig tilkoblingsflens i innvendig tak på stue. Ildsted/ peis kan leveres mot tillegg.
Rørlegger og Elektriker utfører installasjon og sluttmontering i henhold til egen leveransebeskrivelse. Endringer og tilpasninger kan gjøres i kundemøter med hvert fag.
Dine fordeler ved kjøp av ny bolig
- Du kjøper en bolig til fast pris uten budrunde
- Du kjøper en bolig hvor du betaler 2,5 % dokumentavgift kun på tomteverdi, ikke på total kjøpesum
- Du kjøper en bolig bygd etter teknisk forskrift TEK 17, med energieffektive løsninger og lave kostnader til oppvarming
- Du kjøper en bolig med 5 års reklamasjonrett og tilhørende ettårs-befaring
- Du kjøper en moderne bolig hvor alt er nytt, det finnes ikke behov for oppussing med det første
Ta kontakt for mer informasjon om boligene og prosjektet!
Nyttige lenker
Nærområdet
Boligareal AS
Annonseinformasjon
| FINN-kode | 377301109 |
|---|---|
| Sist endret | 05. feb. 2025 08:00 |
| Referanse | Ruudvegen |
Annonsene kan være mangelfulle i forhold til lovpålagt opplysningsplikt. Før bindende avtale inngås oppfordres interessenter til å innhente komplett informasjon fra meglerforetaket, selger eller utleier.










