Bildegalleri

Illustrasjonsbilde av fasade front med seksjonsnummer.
Ratvika
Ruudvegen 8 - Ratvika
Ruudvegen - Ratvika
Prisantydning6 290 000 kr
Prosjektets status
Planlegging
Byggesøknad til behandling.
Salgsstart
25.oktober 2024
Byggestart
Ved oppnådd salg og godkjent byggesøknad
Overtakelse
Estimert vinter 2025/2026
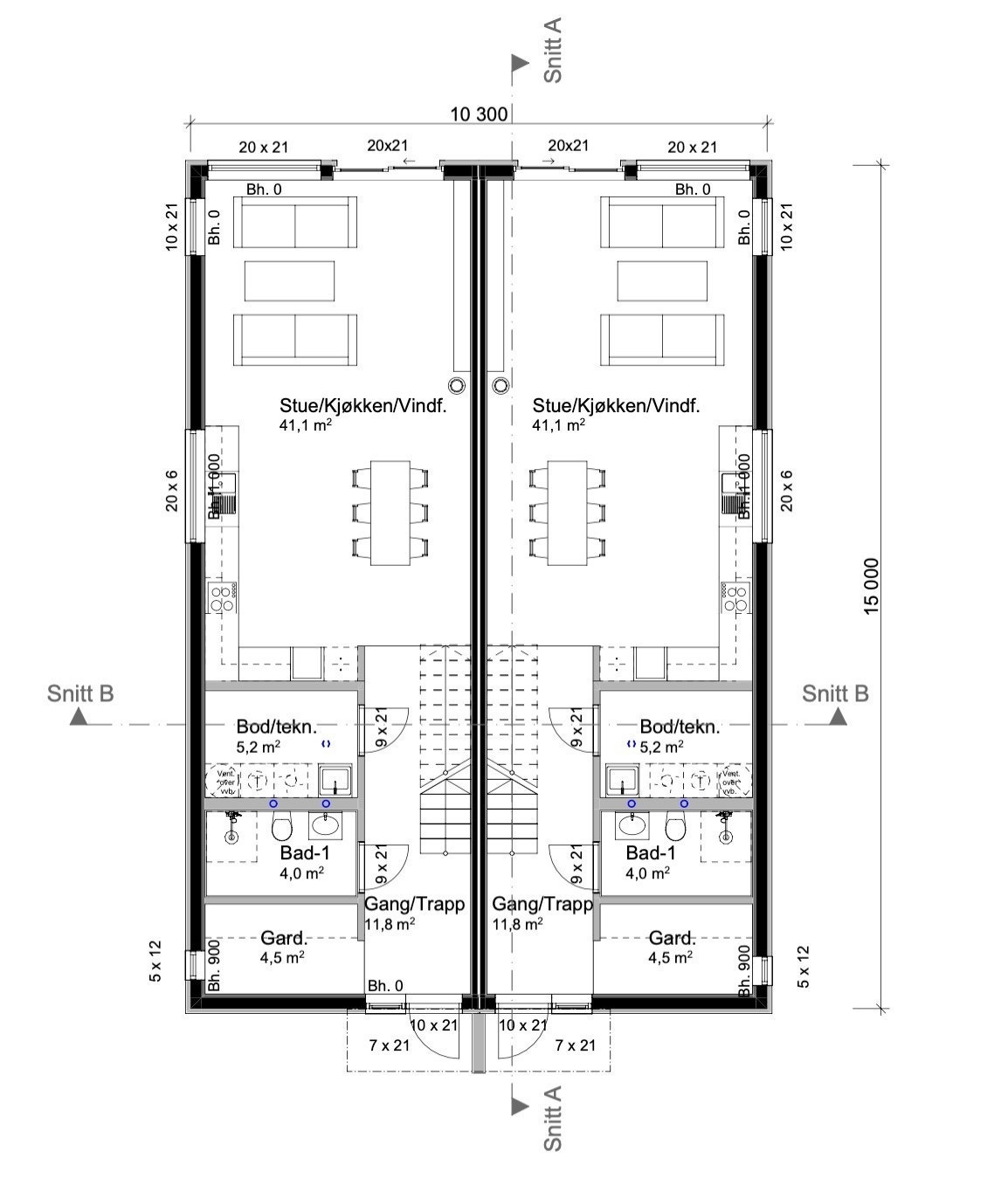
Nøkkelinfo
- Boligtype
- Tomannsbolig
- Soverom
- 4
- Internt bruksareal
- 137 m² (BRA-i)
- Bruksareal
- 143 m²
- Eksternt bruksareal
- 6 m² (BRA-e)
Fasiliteter
Offentlig vann/kloakk
Utsikt
Barnevennlig
Garasje/P-plass
Balansert ventilasjon
Bredbåndstilknytning
Lademulighet
Peis/Ildsted
Turterreng
Visning
Ta kontakt for å avtale visning.Nyttige lenker
Nærområdet
Boligareal AS
Annonsene kan være mangelfulle i forhold til lovpålagt opplysningsplikt. Før bindende avtale inngås oppfordres interessenter til å innhente komplett informasjon fra meglerforetaket, selger eller utleier.




