Bildegalleri

6 Flotte eneboliger med gode planløsninger, carport og store terrasser. Illustrasjonen vil avvike
Gjølmetunet Eneboliger BK1
Gjølmetunet Eneboliger | Flotte eneboliger med store balkonger og dobbel carport | Moderne standard | 4 av 6 SOLGT
Prisantydning
5 200 000 kr
Prosjektets status
Planlegging
Salget er i gang
Salgsstart
Salget er i gang
Byggestart
2025
Overtakelse
2026
Nøkkelinfo
- Boligtype
- Enebolig
- Soverom
- 3
- Internt bruksareal
- 118 m² (BRA-i)
- Bruksareal
- 123 m²
- Eksternt bruksareal
- 5 m² (BRA-e)
- Eieform
- Eier (Selveier)
Fasiliteter
Enhet i prosjektet
Sorter etter
| Enhet | BRA-i | Soverom | Totalpris |
|---|---|---|---|
| 1 | 118 m² | 3 | 5 270 090 kr |
Beskrivelse
Kort om eiendommen
Nye og moderne eneboliger på attraktive Gjølmetunet!
Boligene planlegges med en gjennomgående god standard. Det blir bl.a. flislagte bad, kvalitetskjøkken med integrerte hvitevarer, parkett på gulv i oppholdsrom, malt gips på vegger med mulighet for individuelle fargevalg, balansert ventilasjon m.m. Boligene leveres med ferdig behandlet utvendige fasader, så her trenger du ikke tenke på utvendig vedlikehold på mange år.
Du får 5 års nybygg- garanti, og utbygger gir rom for tilvalg slik at du kan tilpasse din bolig etter dine behov og ønsker
Innhold
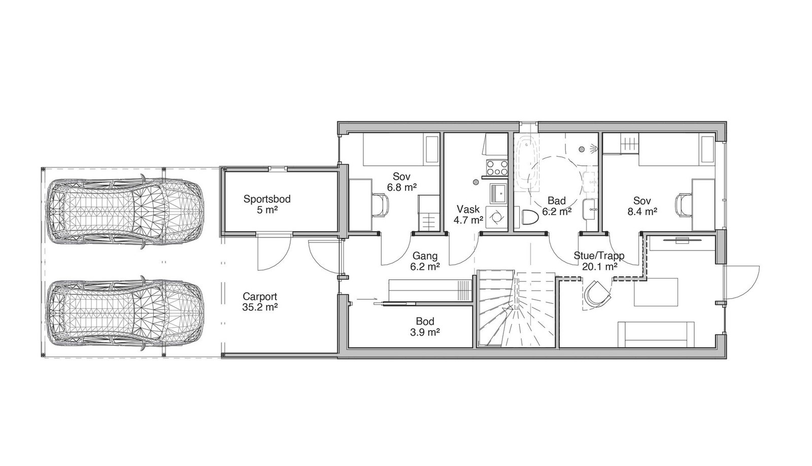
Eneboliger:
1.etg:
Sportsbod, Gang, bod, 2 soverom, stue, vaskerom og bad.
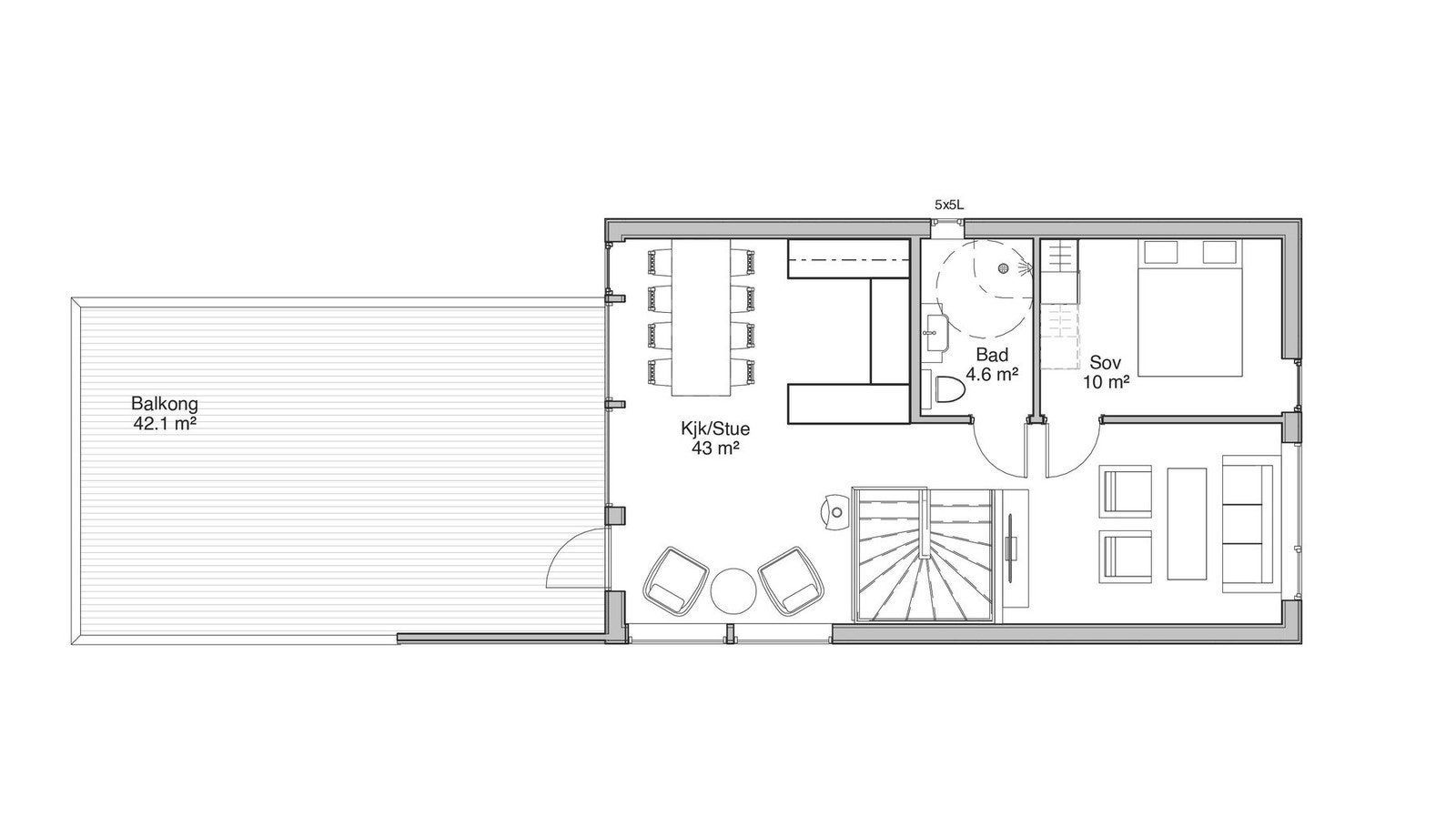
2.etg:
Kjøkken og stue med åpen løsning. Soverom og bad. Stor balkong.
Tomannsboliger:
1.etg:
Sportsbod, vindfang, bod, hall, bad, 3 soverom.
2.etg:
Kjøkken og stue med åpen løsning. Kontor og wc. Stor balkong.
Standard
Gulv:
Kjøkken og stue - Parkett 3-stavs natur matt lakk hvit (Boen)
Soverom - Parkett 3-stavs natur matt lakk hvit (Boen)
Baderom 1 og 2 etg. - Flis 30x60 cm grå (FK Uni Grey), varmekabler, flis i dusjsone 5x5 cm (FK Pro Uni Grey, nedsenket ca. 5 - 10 mm)
Gang - Flis 30x60 cm grå i vindfang med varmekabler, for øvrig parkett 3-stavs natur matt lakk hvit (Boen)
Vaskerom/teknisk rom - Flis 30x60 cm grå (FK Uni Grey), utenpåliggende sokkelflis
Sportsbod - Betong, ellers ubehandlet
Carport - Asfalt (Agb11), dimensjonert for lette kjøretøy (personbiler)
Loft - Ingen
Vegg:
Gang - Gips Klassisk hvit
Kjøkken - Gips Klassisk hvit
Stue - Gips Klassisk hvit
Soverom - Gips Klassisk hvit
Baderom 1 og 2 etg. - Flis 30x60 cm Hvit (FK Uni Hvit matt)
Vaskerom/teknisk rom - Gips Klassisk
Utvendig bod - Synlige stendere Ingen behandling
Himling
Gang - Gips Hvit
Kjøkken - Gips Hvit
Stue - Gips Hvit
Soverom - Gips Hvit
Baderom 1 og 2 etg. - Gips Hvit
Vaskerom/teknisk rom - Gips Hvit
Utvendig bod - Synlige sperr/undergurt
Bygningsinformasjon / byggemåte
Se selgers leveranse-/byggbeskrivelse.
Byggebeskrivelsen/leveransebeskrivelsen skal angi hvilken teknisk standard prosjektet leveres med, samt foreløpig angi hva komplett leveranse etter kjøpekontrakten innebærer. Dersom det ikke er tatt inn spesifiserte bestemmelser i kjøpekontrakten, gjelder følgende krav:
- De tekniske løsninger skal tilfredsstille plan- og bygningslovgivningen, herunder kravene i teknisk forskrift.
- Utført arbeid skal tilfredsstille avtalte toleranseklasser i henhold til kontrakt. Om ikke toleransekrav er avtalt i kontrakt vil krav til avvik være i henhold til normalkrav i standarden, jfr. Norsk Standard NS 3420-1:2008
Det gjøres oppmerksom på at iht. teknisk forskrift, så er det ikke krav om at alle vinduer leveres med åpningsmulighet.
Selger forbeholder seg retten til å foreta endringer i materialvalg og konstruksjonsløsninger, samt foreta tilpasninger som er nødvendig etter hvert som tiltaket detaljprosjekteres uten forhåndsvarsel til kjøperne. Dette gjelder også ev. sammenslåing eller oppdeling av leiligheter. Endringene skal ikke redusere byggets eller leilighetens kvalitet eller vesentlig endre innholdet i prosjektet som sådan. Slike endringer gir ikke rett til prisjustering fra noen av partene. Om det blir nødvendig å gjennomføre vesentlige endringer ut over de forannevnte bestemmelser, plikter selger å varsle kjøper om endringene uten ugrunnet opphold.
Oppvarming
Vedovn i stue.
Elektrisk gulvvarme i vindfang og bad.
Beliggenhet
Prosjektet har en flott beliggenhet i Råbygda ca. tre kilometer vest for Orkanger. Råbygda har egen skole, barnehage og idrettslag.
Bygda har vokst sammen med byen Orkanger. På Orkanger finner man blant annet AMFI kjøpesenter med over 50 butikker, en av Norges beste klatrehaller, stort idrettsanlegg og meget gode turmuligheter sommer som vinter.
Adkomst
Se kartfunksjon i annonsen
Parkeringsforhold
Dobbel carport og på tomt
Vei, vann og kloakk
Offentlig
Nærområdet
EiendomsMegler 1 Nybygg
Annonseinformasjon
| FINN-kode | 303423095 |
|---|---|
| Sist endret | 04. juni 2025 14:08 |
| Referanse | PFS-49230002 |
Annonsene kan være mangelfulle i forhold til lovpålagt opplysningsplikt. Før bindende avtale inngås oppfordres interessenter til å innhente komplett informasjon fra meglerforetaket, selger eller utleier.









