Bildegalleri

Gjølmetunet Eneboliger BK1

1

Prisantydning5 200 000 kr
Totalpris
5 270 090 kr
Omkostninger
70 090 kr
  • Planlegging

    Salget er i gang

  • Salgsstart

    Salget er i gang

  • Byggestart

    2026

  • Overtakelse

    2027

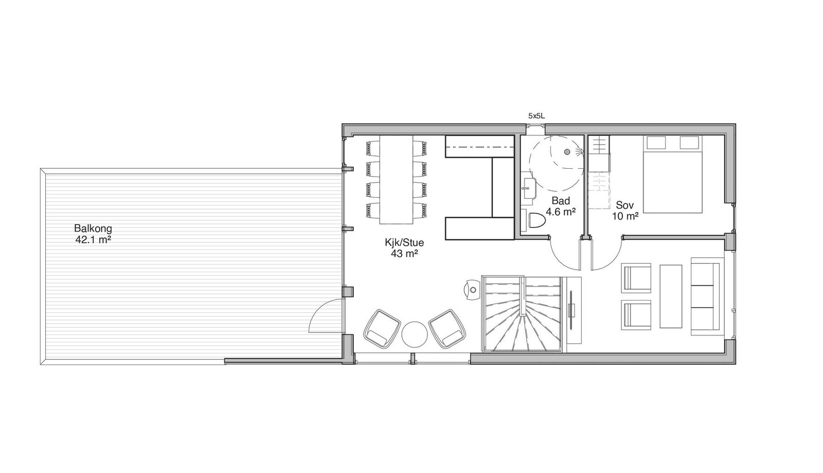
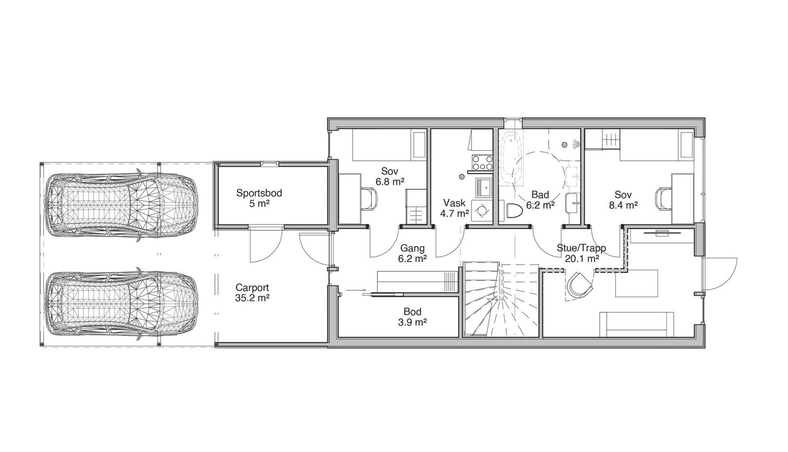
Nøkkelinfo

Boligtype
Enebolig
Soverom
3
Internt bruksareal
118 m² (BRA-i)
Bruksareal
123 m²
Eksternt bruksareal
5 m² (BRA-e)

Les mer om bruksareal her

Visning

Ta kontakt for å avtale visning.Visningspåmelding

Beskrivelse

Oppvarming

Vedovn i stue.
Elektrisk gulvvarme i vindfang og bad.

Beliggenhet

Prosjektet har en flott beliggenhet i Råbygda ca. tre kilometer vest for Orkanger. Råbygda har egen skole, barnehage og idrettslag.
Bygda har vokst sammen med byen Orkanger. På Orkanger finner man blant annet AMFI kjøpesenter med over 50 butikker, en av Norges beste klatrehaller, stort idrettsanlegg og meget gode turmuligheter sommer som vinter.

Adkomst

Se kartfunksjon i annonsen

Ferdigattest

Utbygger plikter å fremskaffe ferdigattest når eiendommen er ferdigstilt.

Hvitevarer / tilbehør

Hvitevarene og brunevarer medfølger ikke i handelen med mindre det tydelig fremgår av salgsoppgaven.

Ligningsverdi (formuesverdi)

Formuesverdi fastsettes av skatteetaten etter ferdigstillelse.

Nærområdet

Annonseinformasjon

FINN-kode303423102
Sist endret09. jan. 2026 17:16
Referanse492310213

Rapporter annonse

Annonsene kan være mangelfulle i forhold til lovpålagt opplysningsplikt. Før bindende avtale inngås oppfordres interessenter til å innhente komplett informasjon fra meglerforetaket, selger eller utleier.