Bildegalleri

Velkommen til Bjørnebærstubben!
Villa Havblikk/ Bjørnebærstubben, trinn 3
Nye eneboliger med nærhet til Oslofjorden - Kun 1 igjen!
Prisantydning
Solgt
Kort om prosjektet
Prosjektet Villa Havblikk på Store Brevik i Son består av totalt 68 eneboliger. Trinn 1 og trinn 2 er allerede utsolgt. Nå har du muligheten til å sikre deg en moderne frittliggende enebolig med dobbelgarasje i trinn 3, Bjørnebærstubben!
Prosjektets status
Planlegging
14 eneboliger - Trinn 3
Salgsstart
Er ute for salg
Byggestart
Bygging ferdigstilles
Overtakelse
Fra 1 kvartal 2024
Nøkkelinfo
- Eieform
- Eier (Selveier)
- Energimerking
- B - Rød
Enheter i prosjektet
Sorter etter
Visning
Beskrivelse
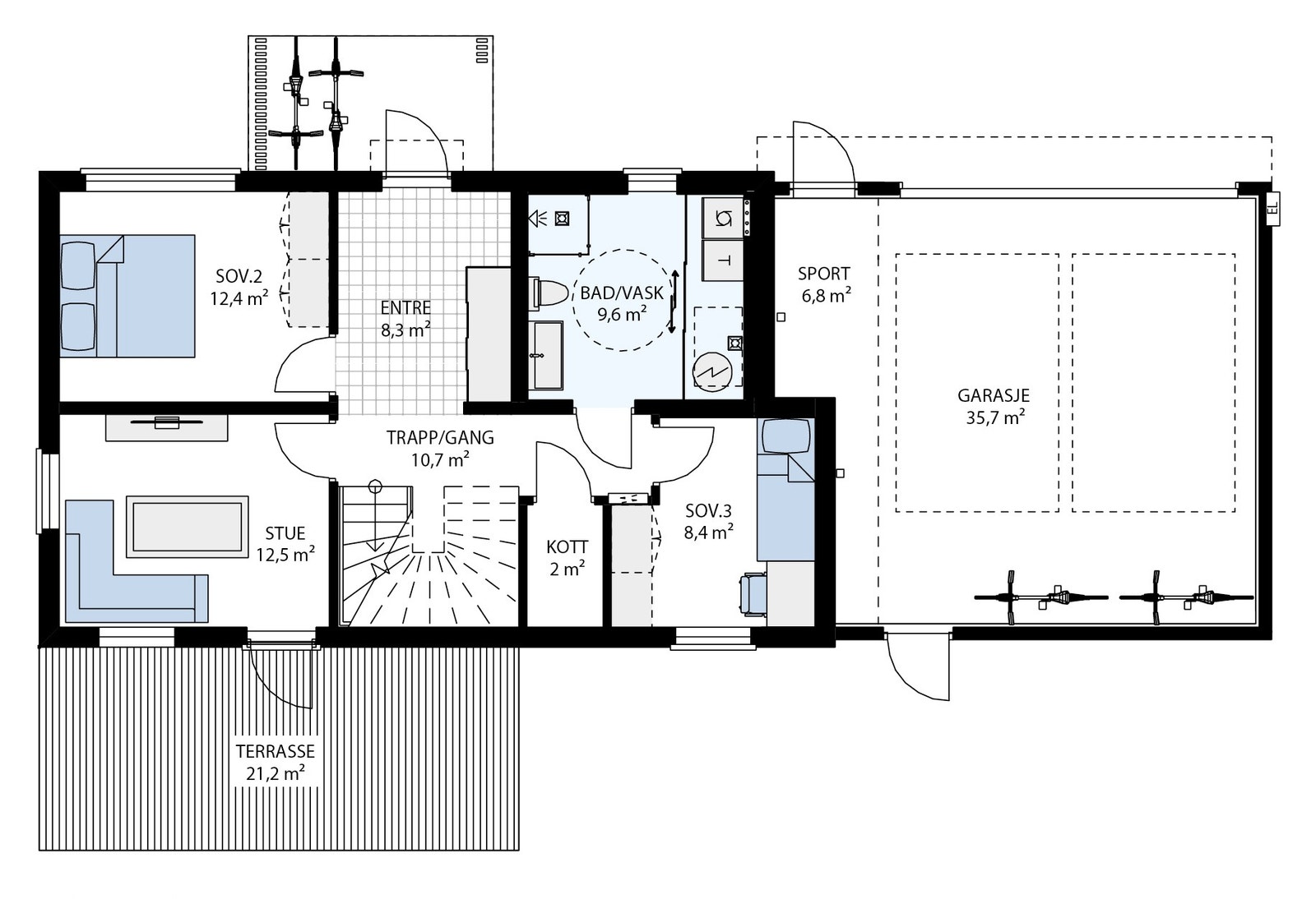
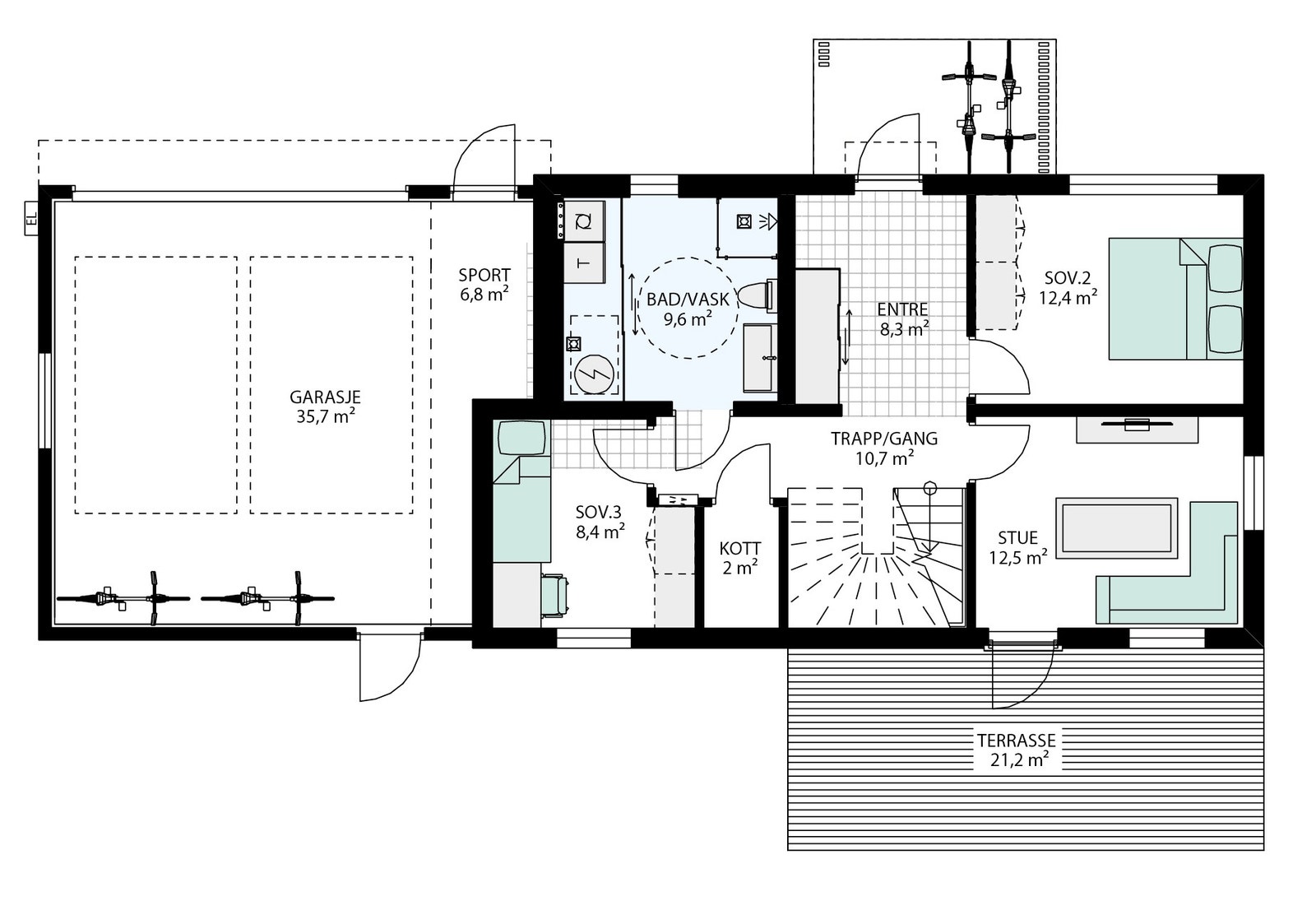
Eneboligene i Bjørnebærstubben vil ha en god standard og et bruksareal på 137 m2 + dobbelgarasje. Kun 1 hustype over to plan. Boligene kommer med et spennende og moderne ytre - Her vil du bo i grønne omgivelser med nærhet til sjarmerende Son sentrum, Oslofjorden og en liten kjøretur unna Moss, Ski og Oslo.
Trinn 3
Villa Havblikk/ Bjørnebærstubben består av totalt 14 nye eneboliger - Alle enhetene er lagt ut for salg. 12 er allerede solgt - Bolig nr. 6 og 17 er ledig.
Eneboliger med tre soverom
Boligene er godt egnet for deg som ønsker en smart planløsning med åpne og luftige rom. Inngang i 1. etasje - Med en romslig entré har du god plass til det du trenger av klær og sko. På samme plan finner du to soverom og en praktisk TV-stue med utgang til en deilig terrasse. Etasjen består også av et flott bad med skyvedører som skjuler vaskeromsdelen. Et praktisk kott gjør det enkelt å samle all oppbevaring.
Går du opp trappen til 2. etasje kommer du til hjertet av boligen. Her finner du en delvis åpent stue- og kjøkkenløsning med et moderne utrykk. Kjøkkenet får tidsriktig innredning fra HTH av typen Fokus. Kjøkkenet henger fint sammen med spisestuedelen som har peis, og utgang til en stor og solfylt balkong på ca. 46 m2. På motsatt side av trappen inne ligger stuen. Denne etasjen består også av en egen soveromsdel med garderoberom og et romslig bad. Stue og kjøkken har åpen himling med god takhøyde som gir en flott opplevelse.
Tomten vil få plen samt innkjøring med asfalt. Her får du en praktisk sportsbod og en romslig dobbel garasje. Med andre ord så har du absolutt alt du trenger i disse eneboligene.
God standard
Boligene leveres nøkkelferdige, med god standard og inneholder blant annet:
- Hvitlasert 3 stavs 15 mm parkett i eik fra Kährs, type: Taranto
- Åpen himling i stue og kjøkken
- Listefritt i overgang vegg/tak og ved vinduer/dører i yttervegg (gjelder ikke ved utgangsdør)
- Vegger og tak leveres ferdig malt
- Det leveres duk på vegg og tak i stue/kjøkken, hall og kjellerstue
- Standard farge vegg: NCS S1002-Y glans 07
- Hvite innerdører type - Jeld Wen Unique 01L
- Hvit åpen trapp med eiketrinn og stålspiler
- Peis fra Peisselskabet
- Varmekabler og flis i gang
- Badene flislegges og har varmekabler i gulv
- Dusjhjørne på begge bad
- Baderomsinnredning fra HTH
- Downlights på bad
- Vegghengte toaletter
- Skyvedører fra Rival i speil som skjuler vaskeromsdelen på badet i 1. etasje
- HTH kjøkken type: Focus ZP
- Integrerte hvitevarer fra Siemens
- Sanitærutstyr fra Grohe
- Skyvedører i speil fra Rival i entré - leveres med innredning
- Hvite skyvedører fra Rival på hovedsoverom
- Automatisk vannstopper Waterguard
- Seriekoblede røykvarslere
- Balansert ventilasjon med varmegjenvinning
- Store balkonger
- Glassrekkverk på balkong
- 2 utvendige hagekraner
- Utvendig belysning ved dører
- Ferdig plen på flate områder
- Asfalt i innkjøring
- Dobbeltgarasje
- Tilrettelagt for fremtidig lading av elbil (1 stk. opplegg med "tom-rør", i garasje)
Nærområdet
I dette nabolaget vil du bli en del av et hyggelig fellesskap, med pent opparbeidet lekeplass/fri-områder og med barnevennlige omgivelser rundt deg. Her bor du midt i den store sommerdrømmen, med både sjøen, båtlivet og andre fritidsaktiviteter like i nærheten. Alt ligger til rette for at hele familien skal få et trygt og godt liv.
Son er et attraktivt område både om sommeren og vinteren. Den sentrale beliggenheten på Villa Havblikk gir gangavstand til badestrender, slalåmbakke og flere fine turområder. I tillegg finnes det en rekke idretts- og aktivitetstilbud i området for deg som ønsker å holde på med organisert idrett.
Det er kort vei til nærmeste barnehage, skole og dagligvarebutikk. Idylliske Son sentrum er kun 3 km unna ditt eget nabolag, med en rekke koselige kaféer, restauranter og butikker langs havnepromenaden.
Fra Villa Havblikk er det kort vei til bussholdeplassen langs Store Brevik vei. Denne bussen korresponderer med togavgangene på Sonsveien stasjon, noe som gjør det enkelt å komme seg videre med toget både sørover mot Moss og nordover mot Oslo. Det er bilparkering for pendlere på togstasjonen. For deg som ønsker å kjøre bil til jobb er reiseveien 40 minutter til hovedstaden og 10 minutter til Moss.
Hvis du ønsker å shoppe i nærområdet kan vi anbefale Vestby Storsenter eller Oslo Fashion Outlet, et eldorado for deg som er på jakt etter merkevarer til en billig penge. Begge sentrene ligger et kvarter unna med bil.
Fordeler med ny bolig
- Bolig til fastpris - Du unngår dermed fordyrende budrunder.
- Gunstig finansiering gjennom OBOS-banken
- Fem års reklamasjonsrett
- Lavere driftsutgifter fra dag én på energi og strøm som følge av strenge krav til isolasjon og varmegjenvinning på nye boliger
- Ingen utgifter til oppussing og rehabilitering
- På nye boliger er det kun dokumentavgift på tomteverdien. Fordi tomteverdien er langt lavere enn verdien av både tomt og hus, sparer du lett flere titalls tusen kroner ved å kjøpe nytt.
- Våre boliger bygges etter strenge standarder og forskriftskrav for våtrom, teknisk anlegg, brannsikring,
- Muligheter til å påvirke standarden - iht. egen tilvalgsliste. Kommer du tidlig inn i prosessen i et nybolig-prosjekt, har du gode muligheter for å gjøre tilpasninger med tanke på for eksempel standard og fargevalg.
Adresse - Veibeskrivelse - Kontakt
Bjørnebærstubben 1 - 17, 1555 Son.
Ta av E6 mot Son. Følg Sonsveien, ta til venstre i rundkjøringen retning Catosenteret ved Sigurd Stenes vei. Ta første avkjøring til venstre inn på Store Brevik vei. Følg veien rett frem til byggeplass-skilt. Villa Havblikk, Bjørnebærstubben - ligger på høyre side av veien.
Kontakt salgskonsulent Jørgen Nilsen på epost eller på tlf.: 95 81 77 39 dersom du ønsker mer informasjon om prosjektet eller om du ønsker en privat visning. Vi oppfordrer til påmelding når visning er annonsert.
OBOS Block Watne AS, avd. Viken Øst, Haugenveien 13 B, 1423 Ski.
Nærområdet
OBOS Block Watne AS
OBOS Block Watne
Utbygger
Annonsene kan være mangelfulle i forhold til lovpålagt opplysningsplikt. Før bindende avtale inngås oppfordres interessenter til å innhente komplett informasjon fra meglerforetaket, selger eller utleier.















































