Bildegalleri

Illustrasjon - Enebolig med dobbelgarasje
Villa Havblikk/ Bjørnebærstubben, trinn 3
Bjørnebærstubben 5 - RESERVERT
Kort om prosjektet
Prosjektet Villa Havblikk på Store Brevik i Son består av totalt 68 eneboliger. Trinn 1 og trinn 2 er allerede utsolgt. Nå har du muligheten til å sikre deg en moderne frittliggende enebolig med dobbelgarasje i trinn 3, Bjørnebærstubben!
Prosjektets status
Planlegging
14 eneboliger - Trinn 3
Salgsstart
Er ute for salg
Byggestart
Bygging ferdigstilles
Overtakelse
Fra 1 kvartal 2024
Nøkkelinfo
- Boligtype
- Enebolig
- Etasje
- 2
- Soverom
- 3
- Rom
- 5
- Primærrom
- 134 m²
- Bruksareal
- 137 m²
- Energimerking
- B - Rød
Fasiliteter
Beskrivelse
Eneboliger med tre soverom
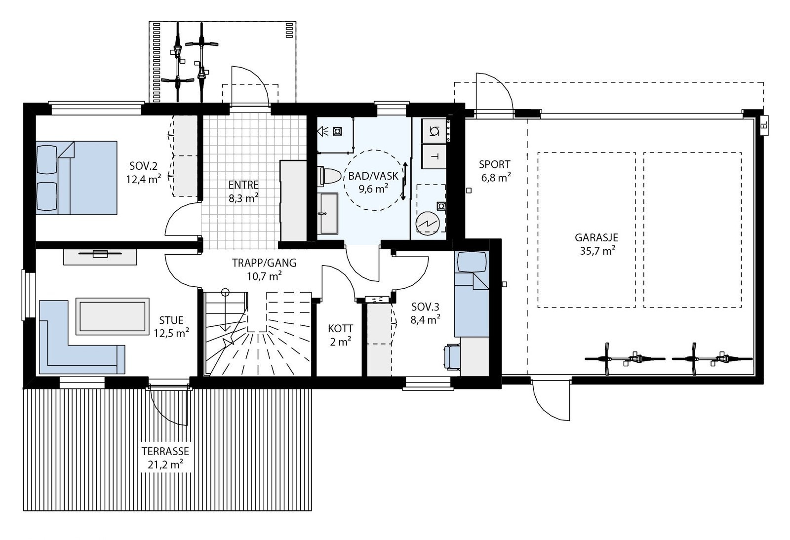
Inngang i 1. etasje -
Med en romslig entré har du god plass til det du trenger av klær og sko. På samme plan finner du to soverom og en praktisk TV stue med utgang til en deilig terrasse. Etasjen består også av et flott bad med skyvedører som skjuler vaskeroms-delen, samt et praktisk kott.
Går du opp trappen til 2. etasje kommer du til hjertet av boligen. Her finner du et delvis åpent stue- og kjøkken løsning med et moderne utrykk. Kjøkkenet henger fint sammen med spisestuedelen som har peis og utgang til en stor og solfylt balkong på ca. 46 m2. På motsatt side av trappen inne ligger stuen. Denne etasjen består også av en egen soveroms-del med garderoberom og et romslig bad. Stue og kjøkken har åpen himling med god takhøyde som gir en flott opplevelse.
Tomten vil få plen samt innkjøring med asfalt. Her får du en praktisk sportsbod og en romslig dobbelgarasje. Med andre ord så har du absolutt alt du trenger i disse eneboligene.
Tomtestørrelse
Bjørnebærstubben nr. 5 - 662 m2
Nyttige lenker
Nærområdet
OBOS Block Watne AS
OBOS Block Watne
Utbygger
Annonsene kan være mangelfulle i forhold til lovpålagt opplysningsplikt. Før bindende avtale inngås oppfordres interessenter til å innhente komplett informasjon fra meglerforetaket, selger eller utleier.









