Bildegalleri
Hyggelig kjøkkenkrok med integrert hvitevarepakke. God belysning i form av downlights på kjøkken. Foto fra rekkehus type A i byggetrinn 2
Ladderudløkka - kort vei til skoler og barnehage - 30min til Oslo med tog
Søk lån til laveste rente! | Se vår visningsbolig! | 3-4 sov | 1-2 stuer | Vaskerom | Gjestetoalett | Terrasse | Garasje
Prisantydning fra
5 870 000 kr
Prisantydning til
6 470 000 kr
Kort om prosjektet
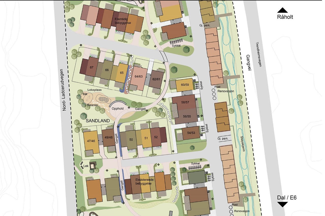
6 nye rekkehus på barnevennlige Ladderudløkka på Råholt i Eidsvoll, 3 av 6 solgt. Sykkelavstand til Råholt sentrum. Antatt innflytting 4. kvartal 2026 for gjenværende tre rekkehus nr.65-67. Informasjon om leiligheter i egen annonse, se link nederst på siden.
Prosjektets status
Planlegging
Prospekt ferdig
Salgsstart
Salget er i gang
Byggestart
Tømrerarbeider 50-52
Overtakelse
Nr. 65-67 antatt: 4. kvartal 2026
Nøkkelinfo
- Boligtype
- Rekkehus
- Soverom
- 3 - 4
- Internt bruksareal
- 109 - 141 m² (BRA-i)
- Bruksareal
- 133 - 165 m²
- Eieform
- Eier (Selveier)
- Energimerking
- B - Rød
Utvalgte enheter

Hus 51
SOLGT! Tilsvarende kommer for salg - Meld interesse - 4soverom/2bad/WC/loftstue/takterrasse
Solgt
126 m²
4 soverom
Hus 65
Hus 65 Enderekkehus med 3(4) soverom/vaskerom/gjestetoalett
5 895 350 kr
109 m²
3 soverom
Hus 67
Hus 67 Enderekkehus med 3(4) soverom/vaskerom/gjestetoalett
5 995 350 kr
109 m²
3 soverom
Hus 66
Hus 66 Rekkehus med unik loftstue! 4 soverom/2bad/gjestetoalett
6 495 350 kr
141 m²
4 soverom
Enheter i prosjektet
Sorter etter
| Enhet | BRA-i | Soverom | Totalpris |
|---|---|---|---|
| Hus 65 | 109 m² | 3 | 5 895 350 kr |
| Hus 66 | 141 m² | 4 | 6 495 350 kr |
| Hus 67 | 109 m² | 3 | 5 995 350 kr |
Beskrivelse
Prosjektet er godkjent i Husbanken!
Rekkehusene 65-67 er forhåndsgodkjent og tilrettelagt for finansiering fra Husbanken. Det betyr at du som kjøper kan få innvilget inntil 90% av totalkostnadene ved lån i Husbanken. Husbanken tilbyr finansiering til meget gunstige rentevilkår! NÅ kun 4,121% i rente! (fram til 28. februar. Ny flytende rente fra 1. mars ). Det er også mulig å få fastrente, 3, 5, 10 eller 20 år fra 4,150% til 4,467% fra Husbanken. (Ved fastrente for februar må avtale være mottatt i Husbanken innen 24. januar). OBS! Det er rente ved utbetalingstidspunkt som blir gjeldende rente, informasjonen her er ment å gi et bilde på hva lånerente hos Husbanken er i dag for å kunne sammenligne med et alminnelig boliglån i dag.
Det er også mulig å få lån med avdragsfrihet i inntil 8 år.
For deg som kjøper, betyr et boliglån i Husbanken lavere boutgifter i måneden.
Ta kontakt for å booke visning i vår visningsbolig
Vår prosjektselger kan vise frem rekkehus under oppføring for å gi et inntrykk av hvordan de neste rekkehusene vil bli. Du får svar på spørsmål du måtte ha om prosjektet, boligene, finansiering, salg av egen bolig, eller annet du lurer på. Klikk på "Meld deg på visning" på vår hjemmeside og legg inn forslag til tid og dato som passer deg, eller ta direkte kontakt med selger.
Ladderudløkka:
Dette er et variert og fargerikt prosjekt bestående av rekkehus og leiligheter i ulike størrelser. Prosjektet ble kåret til "Årets småhusprosjekt 2024" av Boligprodusentene, og har fått priser for høy kundetilfredshet via i-Bolig sitt medlemskap i Systemhus. Dette sier noe om den gode kvaliteten på både boligene og i-Bolig som leverandør. Et trygt valg når du kjøper ny bolig!
Dette er det 3. byggetrinnet i det populære prosjektet - Sandland. I utendørsområdet på Sandland kan barna la kreativiteten blomstre og forme både sandslott og sandkaker, eller kanskje dra på tokt i piratbåten! På Sandland bygges 6 stk rekkehus i 3 ulike størrelser, og 16 stk 2-, 3- og 4-roms leiligheter (leiligheter i egen annonse).
Beliggenhet:
Sentralt på Råholt i Eidsvoll ligger Ladderudløkka. I gangavstand fra feltet finner du blant annet Råholtbråtan barnehage og bussholdeplass, og en 7min sykkeltur unna ligger sentrum med blant annet Råholt ungdomsskole, Råholt bad, Storsenter, dagligvarer, og Eidsvoll Verk togstasjon.
- 7 min på sykkel til Råholt sentrum
- 4 min med buss til Råholt sentrum (Bussholdeplass rett ovenfor feltet)
- 5 min med bil til Eidsvoll Verk stasjon (Pendlerparkering)
- 5 min til OSL Gardermoen med tog fra Eidsvoll Verk
- 19 min til Lillestrøm med tog fra Eidsvoll Verk
- 30 min til Oslo med tog fra Eidsvoll Verk
- 4 min med bil til E6
Kort oppsummert:
- Rekkehus over 2 plan på 133 kvm BRA 3 eller 4 soverom (Mulig å gjøre disponibelt rom til soverom i rekkehus på 133 kvm BRA)
- Rekkehus over 3 plan med 4 soverom og 2 stuer på 165 kvm BRA
- Eget vaskerom og gjestetoalett
- Downlights i utvalgte rom
- Garasje i tilknytning til boligene
- El-bil lader i garasje som tilvalgsmulighet
- Vannbåren gulvvarme
- Flere fine uteplasser
- Ferdig beplantede hager og grøntområder
- Gangavstand til barnehage og barneskole
- Ny bolig til fastpris uten budrunder
- Sett ditt preg på boligen med tilvalg/endringer
- Fritak fra eiendomsskatt i tre år
Foto brukt i denne annonsen er fra et kundetilpasset rekkehus i 2. byggetrinn. Se leveransebeskrivelse, og plantegning for hver enkelt bolig for nærmere beskrivelse av boligene i dette byggetrinnet.
Se vår prosjektoversikt www.i-bolig.no/prosjekter for å se alle boligene vi har for salg på Ladderudløkka og flere steder på Romerike
Rekkehusene på Ladderudløkka
Byggetrinn 3 – Sandland
Rekkehus A - (Hus 50(solgt), 52(solgt), 65 og 67)
2 plan, 3 soverom (mulighet for 4 soverom), 133 kvm BRA
1. etasje: Entré/gang, WC, kjøkken og stue. Kott under trapp for oppbevaring. Utgang til terrasse fra stue. Avsatt plass til sportsbod i garasje.
2. etasje: Gang med kontorplass, 3(4) soverom der hovedsoverom er inkl. disponibelt rom til f.eks walk-in/kontor/babyrom, bad og vaskerom. Utgang til balkong fra nord- og/eller sørside.
BRA Totalt: 133 kvm
BRA-i: 109 kvm (eks. åpen sportsbod)
Terrasse: 13 kvm
Balkong: 4 og/eller 5 kvm
Garasje m. avsatt plass til sportsbod: 24 kvm
Rekkehus B - (Hus 51 - SOLGT! Ta kontakt for tilsvarende i neste byggetrinn)
Rekkehus C - (Hus 66)
3 plan, 4 soverom, 165 kvm BRA
1. etasje: Entré/gang, WC, kjøkken og stue. Kott under trapp for oppbevaring. Utgang til terrasse fra stue. Avsatt plass til sportsbod i garasje.
2. etasje: Gang med kontorplass, 3 soverom, bod/garderobe, bad og bad/vaskerom. Utgang til balkong fra sørside.
3. etasje: Loftstue, soverom og kott/lagringsrom.
BRA Totalt: 165 kvm
BRA-i: 141 kvm (eks. sportsbod)
Terrasse: 13 kvm
Balkong: 5 kvm
Garasje m. avsatt plass til sportsbod: 24 kvm
Boligene leveres med
- Selveiet bolig.
- Moderne kjøkkenleveranse fra anerkjent leverandør. Takhøyt kjøkken med fronter i farge Korn. Håndtak i stål. Laminat benkeplate i imitert stein type Delaware. Kjøkkenet kan tilpasses ut i fra hele sortimentet til kjøkkenleverandør mot tillegg i pris.
- Integrerte hvitevarer; stekeovn i høyskap, platetopp med induksjon, kombi kjøl/frys, og oppvaskmaskin.
- 5-bords veggplater i Hvit (NCS S 0502 Y), med mulighet for å endre til grønn kostnadsfritt (Soft Eucalyptus NCS S 5608 B78G).
- Downlights i himling på kjøkken og bad.
- Tre-stavs parkett i hvitlasert eik.
- Hvit trapp, med trinn i robust hvitlasert eik.
- Store vindusflater i stue gir godt med lys.
- Aluminiumsbekledde vinduer - Vedlikeholdsvennlige.
- Flislagt bad med innfellbare dusjdører, moderne baderomsinnredning og vegghengt toalett.
- Eget vaskerom med utslagsvask og opplegg til vaskemaskin/tørketrommel.
- Gjestetoalett i 1. etasje.
- Vannbåren gulvvarme i 1.etg, samt bad/vaskerom.
- Balansert ventilasjon med varmegjenvinning.
- Stilig loftstue i boligtype C, med full mønehøyde og store takvinduer som skaper et luftig og lyst rom
- Flere fine uteplasser.
- Hage med plen og beplantning!
- Singlet gårdsplass og innkjørsel
- Garasje med avsatt plass til sportsbod - Totalt areal 24 kvm garasje/sportsbod.
Dette får du når du kjøper bolig hos oss
- Kjøp til fastpris uten budrunder
- Mulighet til å sette eget preg på boligen via tilvalgsprogram
- Nøkkelferdige boliger
- God veiledning gjennom kjøpsprossen
- Trygg og lokal boligleverandør med 25 års erfaring
- God boligstandard
- Gjennomtenkte planløsninger
- Lave kjøpsomkostninger
- 0,- i forskudd ved signering av kjøpekontrakt
- 1 års befaring av boligen
- 5 års reklamasjonsrett
Eget tilvalgsprogram
Sett ditt preg på boligen! - Når du kjøper bolig hos oss får du mulighet til å endre produkter via vårt tilvalgsprogram, som eksempelvis vegg, gulv, dører og trapp, og det vil være mulig å gjøre større tilpasninger i møte med leverandører av rør, kjøkken, elektro og flis. Dette under forutsetning av at prosjektet ikke har kommet så langt i prosessen at endringer ikke er mulig å gjennomføre.
Omkostninger og annet
Det skal i tillegg til kjøpesummen betales for følgende omkostninger:
Dokumentavgift (2,5 % av andel tomteverdi kr. 800.000,-) kr. 20.000,-
Tinglysningsgebyr for skjøte/hjemmelsdokument kr. 545,-
Tinglysingsgebyr pr. panterettsdokument kr. 805,-
Etableringsgebyr Fiber kr. 4.000,-
Totale omkostninger: kr. 25.350,-
Felleskostnader huseierforening: Ca kr. 1600,- pr. mnd. Dette inkluderer drift og vedlikehold av fellesområder som veinett, belysning fellesområder, lek/grøntområder/sti, samt drift av huseierforening via forretningsfører USBL og Tv/internett via Viken Fiber.
Illustrasjoner og foto
Alt materiell som 3D-illustrasjoner av felt og boliger, plantegninger, og bilder i prospektet er av illustrativ karakter, og kan inneholde innredninger og detaljer som ikke inngår i avtalen. Plantegninger er ikke i målestokk, og enkelte detaljer kan avvike noe fra endelige tegninger. Vi viser til leveransebeskrivelse i prospektet for flere detaljer om leveranseomfang.
Detaljert informasjon i prospektet
Mer informasjon om området, boligen og feltet, finner du i prospektet. Last ned eller bestill prospekt på våre hjemmesider, eller ta kontakt med vår prosjektselger, Hanne N. Breen på mail eller telefon for å få dette tilsendt.
Nærområdet
Systemhus - i-Bolig AS

i-Bolig Eiendom AS
Utbygger
Annonseinformasjon
| FINN-kode | 277413953 |
|---|---|
| Sist endret | 21. jan. 2026 08:51 |
| Referanse | Sandland, Rekkehus |
Annonsene kan være mangelfulle i forhold til lovpålagt opplysningsplikt. Før bindende avtale inngås oppfordres interessenter til å innhente komplett informasjon fra meglerforetaket, selger eller utleier.










