Bildegalleri

Utgang fra loftstue til romslig takterrasse i 3. etasje. Illustrasjon - Se fargeplan
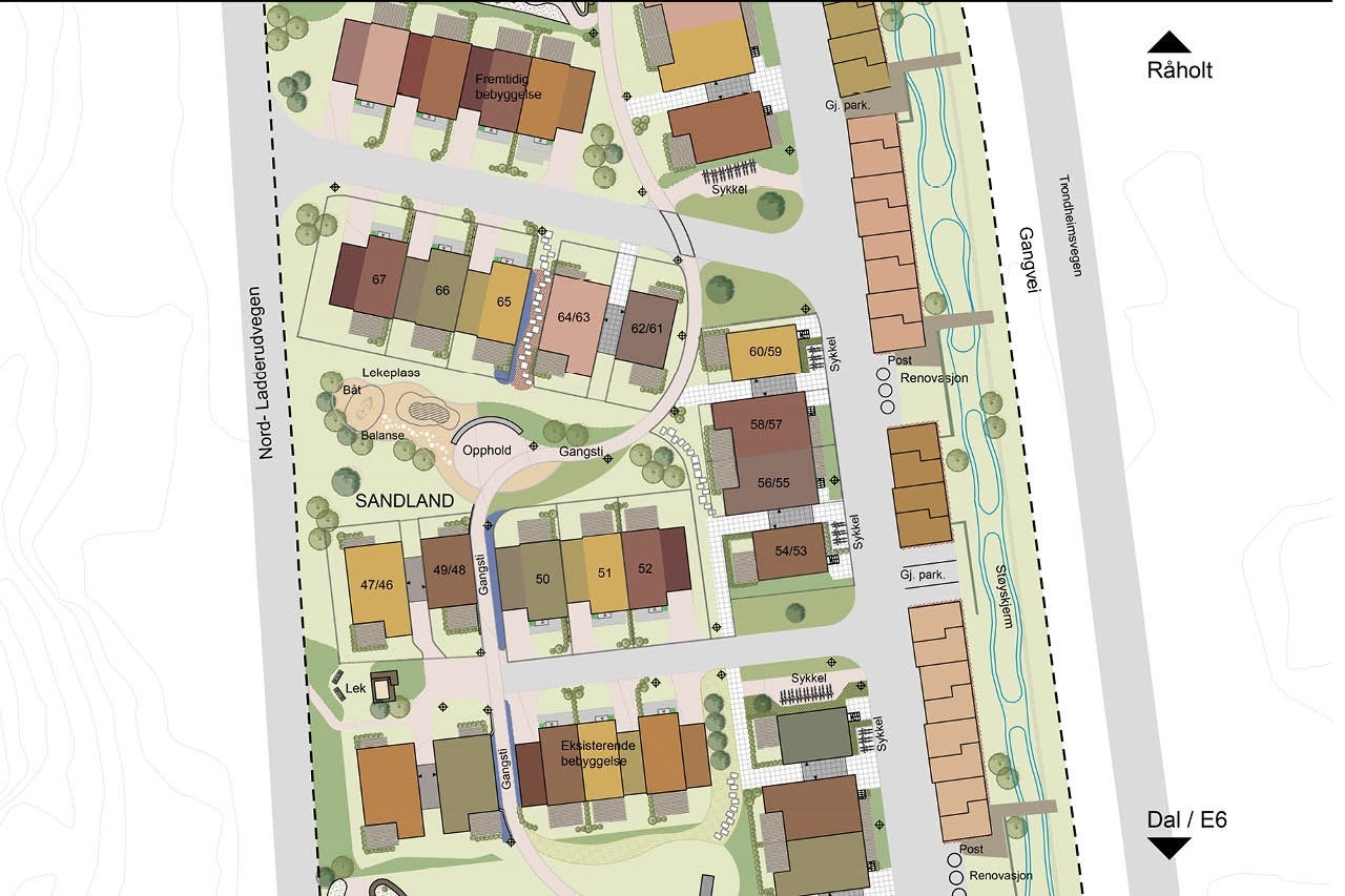
Ladderudløkka - kort vei til skoler og barnehage - 30min til Oslo med tog
SOLGT! Tilsvarende kommer for salg - Meld interesse - 4soverom/2bad/WC/loftstue/takterrasse
Kort om prosjektet
6 nye rekkehus på barnevennlige Ladderudløkka på Råholt i Eidsvoll, 3 av 6 solgt. Sykkelavstand til Råholt sentrum. Antatt innflytting 4. kvartal 2026 for gjenværende tre rekkehus nr.65-67. Informasjon om leiligheter i egen annonse, se link nederst på siden.
Prosjektets status
Planlegging
Prospekt ferdig
Salgsstart
Salget er i gang
Byggestart
Tømrerarbeider 50-52
Overtakelse
Nr. 65-67 antatt: 4. kvartal 2026
Nøkkelinfo
- Boligtype
- Rekkehus
- Soverom
- 4
- Internt bruksareal
- 126 m² (BRA-i)
- Bruksareal
- 149 m²
- Energimerking
- B - Rød
Fasiliteter
Beskrivelse
Foto brukt i denne annonsen er fra et kundetilpasset rekkehus i 2. byggetrinn, for å gi et inntrykk av ferdig resultat. Se leveransebeskrivelse, og plantegning for hver enkelt bolig for nærmere beskrivelse av boligen.
Rekkehus B - (Hus 51)
3 plan, 4 soverom, 149 kvm BRA
1. etasje: Entré/gang, WC, kjøkken og stue. Kott under trapp for oppbevaring. Utgang til terrasse fra stue. Avsatt plass til sportsbod i garasje.
2. etasje: Gang, 3 soverom, bod/garderobe, bad og bad/vaskerom. Utgang til balkong fra nordside.
3. etasje: Loftstue og soverom. Utgang til takterrasse fra loftstue.
BRA Totalt: 149 kvm
BRA-i: 126 kvm (eks. sportsbod)
Terrasse: 13 kvm
Takterrasse: 18 kvm
Balkong: 4 kvm
Garasje m. avsatt plass til sportsbod: 24 kvm
Mulighet for tilvalg
Sett ditt preg på boligen! - Når du kjøper bolig hos oss får du mulighet til å endre produkter via vårt tilvalgsprogram, som eksempelvis vegg, gulv, dører og trapp, og det vil være mulig å gjøre større tilpasninger i møte med leverandører av rør, kjøkken, elektro og flis. Dette under forutsetning av at prosjektet ikke har kommet så langt i prosessen at endringer ikke er mulig å gjennomføre.
Nyttige lenker
Nærområdet
Systemhus - i-Bolig AS

i-Bolig Eiendom AS
Utbygger
Annonseinformasjon
| FINN-kode | 277847313 |
|---|---|
| Sist endret | 26. mai 2025 11:42 |
| Referanse | Ladderudløkka Rekkehus 51 |
Annonsene kan være mangelfulle i forhold til lovpålagt opplysningsplikt. Før bindende avtale inngås oppfordres interessenter til å innhente komplett informasjon fra meglerforetaket, selger eller utleier.




















