Bildegalleri

Nydelig sjøutsikt fra takterrassen
Børgin Sjøside trinn 2
Ta kontakt for vising! - Ønsker du å bo ved vannkanten? Høy standard med blant annet vannbåren gulvvarme - 3 ledige
Prisantydning fra
1 550 000 kr
Prisantydning til
2 600 000 kr
Prosjektets status
Planlegging
Gjennomført
Salgsstart
Startet
Byggestart
2022
Overtakelse
2023/2024
Nøkkelinfo
- Boligtype
- Leilighet
- Soverom
- 1 - 3
- Bruksareal
- 65 - 114 m²
- Eieform
- Andel
Fasiliteter
Enheter i prosjektet
Sorter etter
| Enhet | Etasje | BRA | Soverom | Totalpris |
|---|---|---|---|---|
| B21 | 2 | 109 m² | 2 | 5 921 090 kr |
| D02 | 0 | 65 m² | 1 | 3 621 090 kr |
| VISNING 12 Januar kl 12:0... | 2 | 114 m² | 3 | 6 195 090 kr |
Beskrivelse
Kort om eiendommen
Velkommen til Børgin sjøside TRINN 2 .
Her får du muligheten til å kjøpe deg en leilighet helt i sjøkanten av Borgenfjorden på Straumen, Her er du nabo med sjøen, samtidig som Straumens tilbud av underholdning, shopping, bespisning og kulturtilbud kun er en behagelig gåtur unna.
Dette er de siste leilighetene som blir bygd på Børgin Sjøside! Ikke la denne muligheten gå fra deg!
Kvaliteter vi ønsker å fremheve med prosjektet:
- Gulvvarme på stue, kjøkken, bad og gang.
- Fliser på våtrom (60x60 og 20x50).
- Fantastisk beliggenhet helt nede ved sjøen.
- Carport.
- Royalkledning på bygget.
- God planløsning i leilighetene med fokus på kvalitet.
- Gåavstand til butikker, bakeri, slakteri, badestrand og mange andre kulturtilbud Straumen har å by på.
Innhold
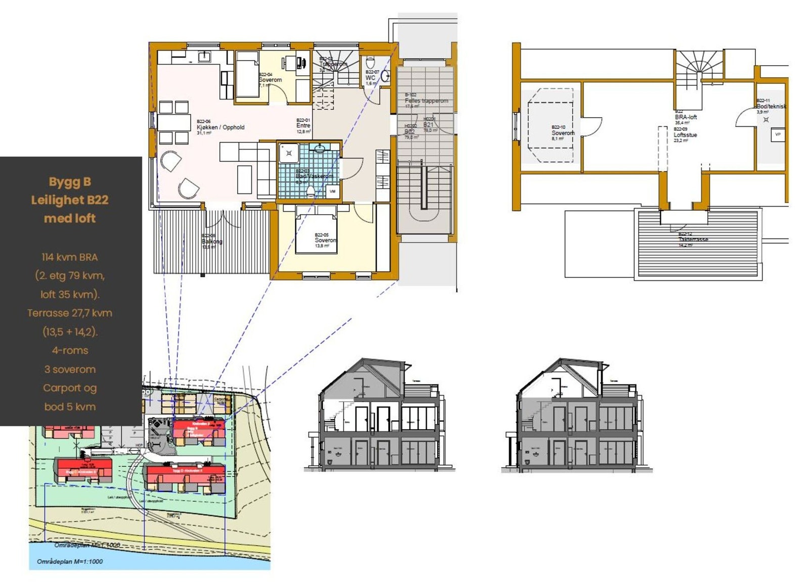
Bygg B
Leilighet B21:
2. etasje
Primærrom - Entré, stue, kjøkken, bad/vaskerom og 2 soverom.
Loft
Primærrom - Loftstue og soverom.
Sekundærrom - Bod.
Leilighet B22:
2. etasje
Primærrom - Entré, stue, kjøkken, bad/vaskerom, 2 soverom og toalettrom.
Loft
Primærrom - Loftstue og soverom.
Sekundærrom - Bod.
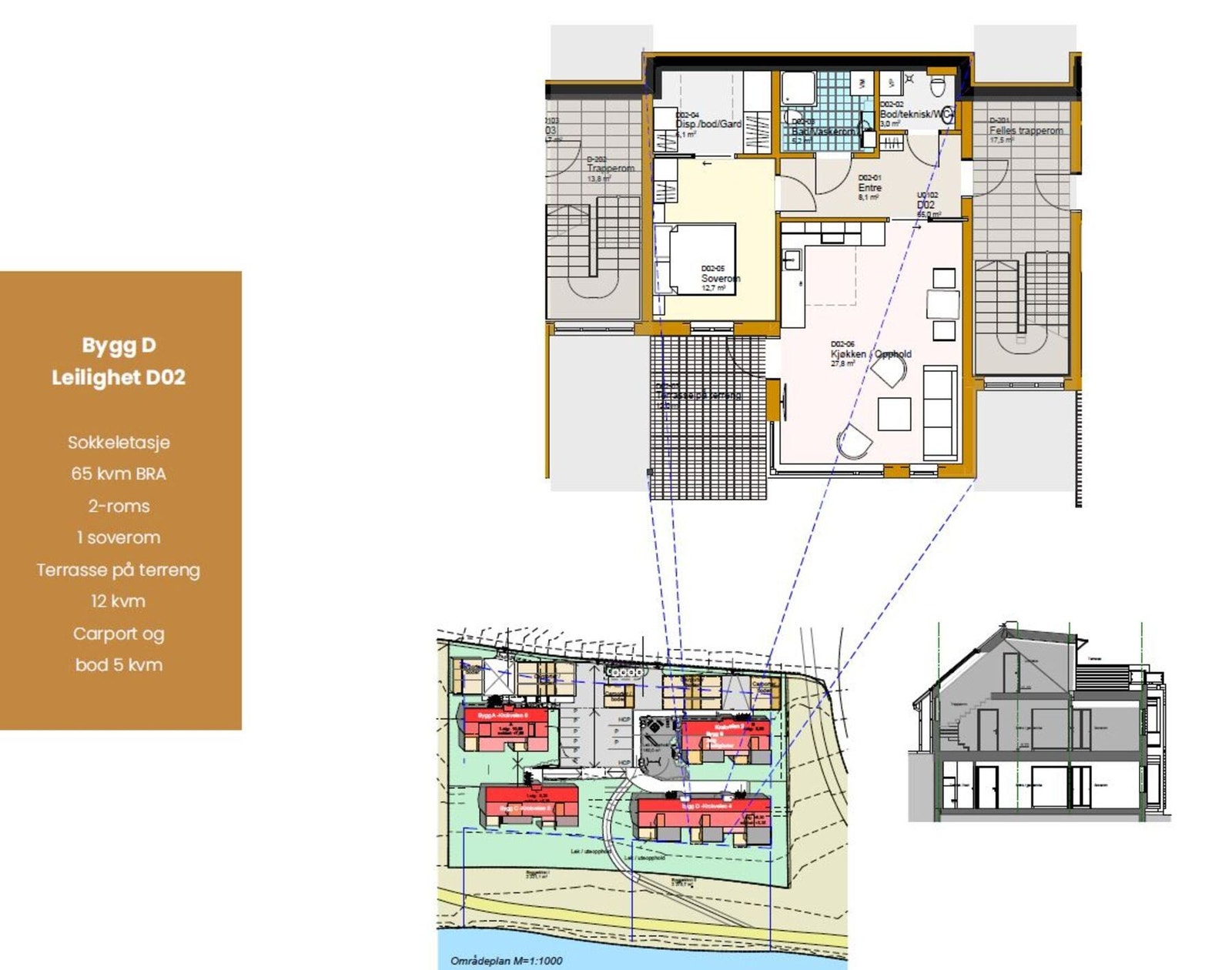
Bygg D
Leilighet D02:
Primærrom - Entré, stue, kjøkken, bad/vaskerom, soverom og toalettrom.
Sekundærrom - Bod
Alle leilighetene har egen balkong/markterrasse. Toppleilighetene har også takterrasse.
Samtlige leiligheter leveres med parkering og sportsbod i egen carport som utbygger fordeler.
Standard
Leilighetene har en god og moderne standard med bl.a. eikeparkett og flis på gulv og flislagte bad. Oppvarming med vannbåren gulvvarme og varmekabler i de fleste rom. Samtlige leiligheter har romslige terrasser /balkonger med vakker utsikt.
Bygningsinformasjon / byggemåte
Se selgers leveranse-/byggbeskrivelse.
Byggebeskrivelsen/leveransebeskrivelsen skal angi hvilken teknisk standard prosjektet leveres med, samt foreløpig angi hva komplett leveranse etter kjøpekontrakten innebærer. Dersom det ikke er tatt inn spesifiserte bestemmelser i kjøpekontrakten, gjelder følgende krav:
- De tekniske løsninger skal tilfredsstille plan- og bygningslovgivningen, herunder kravene i teknisk forskrift.
- Utført arbeid skal tilfredsstille avtalte toleranseklasser i henhold til kontrakt. Om ikke toleransekrav er avtalt i kontrakt vil krav til avvik være i henhold til normalkrav i standarden, jfr. Norsk Standard NS 3420-1:2008
Det gjøres oppmerksom på at iht. teknisk forskrift, så er det ikke krav om at alle vinduer leveres med åpningsmulighet.
Selger forbeholder seg retten til å foreta endringer i materialvalg og konstruksjonsløsninger, samt foreta tilpasninger som er nødvendig etter hvert som tiltaket detaljprosjekteres uten forhåndsvarsel til kjøperne. Dette gjelder også ev. sammenslåing eller oppdeling av leiligheter. Endringene skal ikke redusere byggets eller leilighetens kvalitet eller vesentlig endre innholdet i prosjektet som sådan. Slike endringer gir ikke rett til prisjustering fra noen av partene. Om det blir nødvendig å gjennomføre vesentlige endringer ut over de forannevnte bestemmelser, plikter selger å varsle kjøper om endringene uten ugrunnet opphold.
Oppvarming
Med en luft-til-vann-varmepumpe utnytter du varme fra luft til å varme opp vann til vannbåren gulvvarme og til å forvarme tappevannet.
Oppvarming med en slik varmepumpe gir lavere energibruk enn ved bruk av strøm. I tillegg til å kutte kostnader, vil en luft-til-vann-varmepumpe gi et godt inneklima med jevn varme i hele boligen.
Bad og teknisk rom har varmekabler i gulv.
Balansert ventilasjon med varmegjenvinning.
Beliggenhet
Børgin Sjøside er sentralt plassert i Straumen sentrum, med nærhet
til det meste. Dette er stedet for deg som ikke ønsker å måtte velge - eller velge bort. Her er du nabo med sjøen, samtidig som Straumens tilbud av underholdning, shopping, bespisning og kulturtilbud kun er en behagelig gåtur unna.
På sørsiden av Straumbrua ligger Sundsand, et offentlig friområde med en flott badestrand. Området innbyr til turmulighetermed bl.a. en fint tilrettelagt joggesti.
Inderøy kommune frister med vakkert kulturlandskap, et rikt kulturmiljø og opplevelser for store og små. Her er et yrende næringsliv, spesielt i småskalabransjen, men også blant de større. Kommunen ligger plassert som en halvøy nord i Trondheimsfjorden, med to timers kjøreavstand fra Trondheim. Kulturlivet i Inderøy er preget av allsidighet, samarbeid, kreativitet og nytenkning. Kommunen ble 1996 kåret til årets kulturkommune i Norge. De ulike grendesamfunnene har stor idretts og kulturaktivitet
basert på frivillighet og dugnad. Inderøy kulturhus består av kulturdel og idrettshall. Her er det et yrende kulturliv fra morgen til kveld. Det gir verdifulle boliger å bo i, og siden selge videre.
Adkomst
Ta av til høyre i rundkjøringen ved Nessjordet og følg vegen ned mot sjøen. Leilighetene vil oppføres på høyre side.
Parkeringsforhold
Det følger egen carport med leilighetene.
Nyttige lenker
Nærområdet
EiendomsMegler 1 Verdal
Annonseinformasjon
| FINN-kode | 264760384 |
|---|---|
| Sist endret | 04. feb. 2025 11:43 |
| Referanse | PFS-55210224 |
Annonsene kan være mangelfulle i forhold til lovpålagt opplysningsplikt. Før bindende avtale inngås oppfordres interessenter til å innhente komplett informasjon fra meglerforetaket, selger eller utleier.





































