Bildegalleri

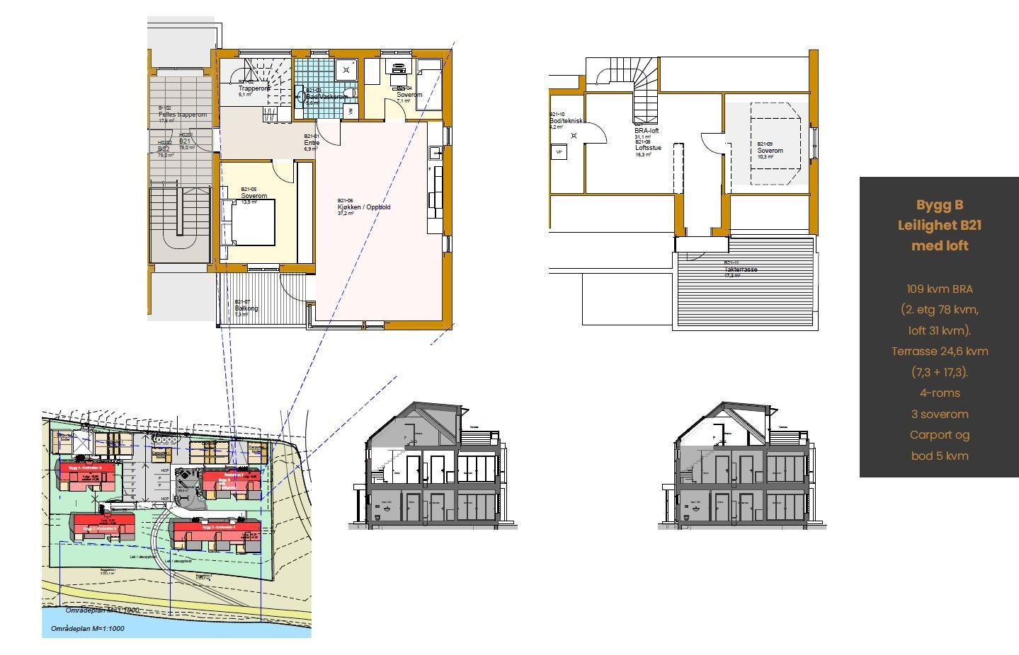
Plantegning leilighet B21.
Børgin Sjøside trinn 2
B21
Prosjektets status
Planlegging
Gjennomført
Salgsstart
Startet
Byggestart
2022
Overtakelse
2023/2024
Nøkkelinfo
- Boligtype
- Leilighet
- Etasje
- 2
- Soverom
- 2
- Primærrom
- 0 m²
- Bruksareal
- 109 m²
Beskrivelse
Oppvarming
Med en luft-til-vann-varmepumpe utnytter du varme fra luft til å varme opp vann til vannbåren gulvvarme og til å forvarme tappevannet.
Oppvarming med en slik varmepumpe gir lavere energibruk enn ved bruk av strøm. I tillegg til å kutte kostnader, vil en luft-til-vann-varmepumpe gi et godt inneklima med jevn varme i hele boligen.
Bad og teknisk rom har varmekabler i gulv.
Balansert ventilasjon med varmegjenvinning.
Beliggenhet
Børgin Sjøside er sentralt plassert i Straumen sentrum, med nærhet
til det meste. Dette er stedet for deg som ikke ønsker å måtte velge - eller velge bort. Her er du nabo med sjøen, samtidig som Straumens tilbud av underholdning, shopping, bespisning og kulturtilbud kun er en behagelig gåtur unna.
På sørsiden av Straumbrua ligger Sundsand, et offentlig friområde med en flott badestrand. Området innbyr til turmulighetermed bl.a. en fint tilrettelagt joggesti.
Inderøy kommune frister med vakkert kulturlandskap, et rikt kulturmiljø og opplevelser for store og små. Her er et yrende næringsliv, spesielt i småskalabransjen, men også blant de større. Kommunen ligger plassert som en halvøy nord i Trondheimsfjorden, med to timers kjøreavstand fra Trondheim. Kulturlivet i Inderøy er preget av allsidighet, samarbeid, kreativitet og nytenkning. Kommunen ble 1996 kåret til årets kulturkommune i Norge. De ulike grendesamfunnene har stor idretts og kulturaktivitet
basert på frivillighet og dugnad. Inderøy kulturhus består av kulturdel og idrettshall. Her er det et yrende kulturliv fra morgen til kveld. Det gir verdifulle boliger å bo i, og siden selge videre.
Adkomst
Ta av til høyre i rundkjøringen ved Nessjordet og følg vegen ned mot sjøen. Leilighetene vil oppføres på høyre side.
Ferdigattest
Utbygger plikter å fremskaffe ferdigattest når eiendommen er ferdigstilt.
Hvitevarer / tilbehør
Hvitevarene og brunevarer medfølger ikke i handelen med mindre det tydelig fremgår av salgsoppgaven.
Fellesgjeld og lånebetingelser
Andel fellesgjeld
Gjeld kr 3 420 000,-
Forkjøpsrett
Andelseier(e) kan kun eie en andel. Andelseier må selv bebo leiligheten. Kun fysiske personer kan eie andel. Stat, kommune, fylkeskommune m.fl. kan likevel eie andel
eller andeler opp til 10% av andelene i borettslaget, der det er fem eller flere andeler. Det kan være fastsatt i vedtektene at stat, kommune, fylkeskommune, boligbyggelag, institusjon eller sammenslutning med samfunnsnyttig formål og
dessuten arbeidsgiver som skal leie ut boligen til sine ansatte, kan eie opp til 20% av andelene i tillegg. Kjøper av andelen må godkjennes av borettslagets styre for at ervervet skal bli gyldig. Kjøper bærer selv risikoen for at godkjenning blir gitt og må videreselge boligen for egen regning og risiko dersom styret ikke godkjenner kjøper som ny andelseier.
Dersom borettslaget er tilknyttet et boligbyggelag, så er det ofte et krav fra boligbyggelagets side at kjøper må melde seg inn i boligbyggelaget før kjøper kan bli godkjent som ny andelseier i det aktuelle borettslaget. Det gjøres i den forbindelse oppmerksom på at det vil kunne påløpe et innmeldingsgebyr til boligbyggelaget, og de fleste boligbyggelagene krever at innmeldingsavgiften skal være innbetalt før godkjenningen blir gitt. Innmeldingsgebyret faktureres kjøper direkte.
Ligningsverdi (formuesverdi)
Formuesverdi fastsettes av skatteetaten etter ferdigstillelse.
Nyttige lenker
Nærområdet
EiendomsMegler 1 Verdal
Annonseinformasjon
| FINN-kode | 264760386 |
|---|---|
| Sist endret | 04. feb. 2025 11:43 |
| Referanse | 552210035 |
Annonsene kan være mangelfulle i forhold til lovpålagt opplysningsplikt. Før bindende avtale inngås oppfordres interessenter til å innhente komplett informasjon fra meglerforetaket, selger eller utleier.


















