Bildegalleri

Oversiktsbilde av huset
Leilighet i nærheten av NTNU Gløshaugen, SINTEF, NTNU Dragvoll, St. Olavs
- Månedsleie
- 14 000 kr
- Depositum
- 30 000 kr
Nøkkelinfo
- Primærrom
- 48 m²
- Boligtype
- Leilighet
- Soverom
- 1
- Leieperiode
- 01.05.2026 - 30.06.2027
- Energimerking
- B
Fasiliteter
Umøblert
Balkong/Terrasse
Bredbåndstilknytning
Kabel-TV
Moderne
Rolig
Sentralt
Beskrivelse
Leiligheten ligger i en enebolig som ble ferdigstilt juli 2015. Leiligheten har egen inngang og ligger godt skjermet i forhold til hovedhuset (se tegninger av planløsning bilder av hus for detaljer). Leiligheten går over to plan: 1.etg og kjeller. Oppholdsrom og kjøkken er i 1. etg. Soverom, bad, garderobe og oppbevaringsareal i kjeller. Leiligheten har i tillegg en utendørsbod med følgende mål: (B:1,24 L:2,03, H1,59-2,09). Boligen er bygd med lavenergistandard. Strømforbruk i januar 2024 var på 600 Kwh. Leietaker sørger selv for å organisere strømavtale.
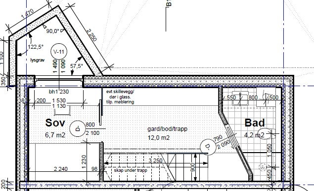
Leiligheten har gode lysforhold og lyse vegger og tak. Kjøkkenkroken er malt i fargen minty breeze. Linoleum på gulv, og hvit kjøkkeninnredning fra Kvik. Leies ut med hvitevarer: komfyr, oppvaskmaskin, kombinert kjøl/frys, samt kombinert vaskemaskin og tørketrommel. Leiligheten er ellers utstyrt med baderomsmøbler og en garderobe. Leiligheten har vært utleid kontinuerlig siden ferdigstillelse, så vi har dessverre ikke bilder fra innsiden av leiligheten. Se bilder av plantegningen for detaljer.
Leiligheten har fine uteområder som er skjermet med hekk. Det er en liten vestvendt terrasse foran inngangspartiet. Denne har gode solforhold ettermiddag og kveld. På baksiden av leiligheten er det en liten østvendt terrasse som har sol på morgenen. På uteområdene ellers er det plantet gress. Leiligheten er best egnet for et par eller en enslig person.
Boligen har en sentral og solrik beliggenhet i Blomsterbyen på Nardo, med gang- og sykkelavstand til i NTNU Gløshaugen, SINTEF, Dragvoll, St.Olavs og sentrum. Kort vei til offentlig kommunikasjon (Buss/flybuss).
Send skriftlig melding via FINN for visning. Det er ønskelig med referanser. Visning avtales individuelt. Vi vil ikke organisere fellesvisninger.
Adkomst:
Smørblomstveien ligger i Blomsterbyen på Nardo. Huset ligger i krysset mellom Blåklokkeveien og Smørblomstveien. Om man kommer med bil fra sentrum kjører man inn i Fiolsvingen fra Torbjørn Bratts veg (ved Statoil (Nardo). Deretter ta første venstre og følger veien til endes. Huset er det siste huset i Smørblomstveien på venstre side.
Leiligheten har gode lysforhold og lyse vegger og tak. Kjøkkenkroken er malt i fargen minty breeze. Linoleum på gulv, og hvit kjøkkeninnredning fra Kvik. Leies ut med hvitevarer: komfyr, oppvaskmaskin, kombinert kjøl/frys, samt kombinert vaskemaskin og tørketrommel. Leiligheten er ellers utstyrt med baderomsmøbler og en garderobe. Leiligheten har vært utleid kontinuerlig siden ferdigstillelse, så vi har dessverre ikke bilder fra innsiden av leiligheten. Se bilder av plantegningen for detaljer.
Leiligheten har fine uteområder som er skjermet med hekk. Det er en liten vestvendt terrasse foran inngangspartiet. Denne har gode solforhold ettermiddag og kveld. På baksiden av leiligheten er det en liten østvendt terrasse som har sol på morgenen. På uteområdene ellers er det plantet gress. Leiligheten er best egnet for et par eller en enslig person.
Boligen har en sentral og solrik beliggenhet i Blomsterbyen på Nardo, med gang- og sykkelavstand til i NTNU Gløshaugen, SINTEF, Dragvoll, St.Olavs og sentrum. Kort vei til offentlig kommunikasjon (Buss/flybuss).
Send skriftlig melding via FINN for visning. Det er ønskelig med referanser. Visning avtales individuelt. Vi vil ikke organisere fellesvisninger.
Adkomst:
Smørblomstveien ligger i Blomsterbyen på Nardo. Huset ligger i krysset mellom Blåklokkeveien og Smørblomstveien. Om man kommer med bil fra sentrum kjører man inn i Fiolsvingen fra Torbjørn Bratts veg (ved Statoil (Nardo). Deretter ta første venstre og følger veien til endes. Huset er det siste huset i Smørblomstveien på venstre side.
NB: Knappen for å vise hele beskrivelsen har kun en visuell effekt.
NB: Knappen for å vise hele beskrivelsen har kun en visuell effekt.
Visning
Visning etter avtale
Trenger du en kontrakt?
- Utfylt kontrakt med opplysninger fra annonsen
- Digital signering
- Gratis tjeneste
- Godkjent av Forbrukerrådet
Nærområdet
Annonsene kan være mangelfulle i forhold til lovpålagt opplysningsplikt. Før bindende avtale inngås oppfordres interessenter til å innhente komplett informasjon fra meglerforetaket, selger eller utleier.










