Bildegalleri

Leiligheten ligger i 4 et, midt i bygget
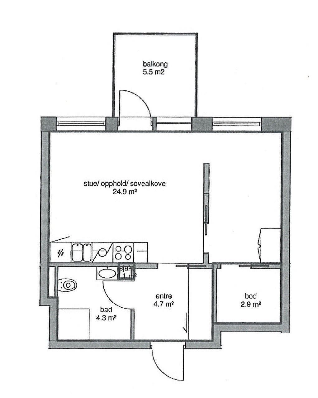
1-roms leilighet 40 m2 Dockside hus A, Kaldnes brygge
- Månedsleie
- 13 500 kr
- Depositum
- 40 500 kr
Nøkkelinfo
- Primærrom
- 40 m²
- Boligtype
- Leilighet
- Soverom
- 1
- Etasje
- 4.
- Leieperiode
- 01.04.2026
Fasiliteter
Umøblert
Balkong/Terrasse
Bredbåndstilknytning
Heis
Kabel-TV
Moderne
Parkett
Sentralt
Beskrivelse
Fin 1-roms leilighet på 40 m2 - Dockside bygg A (Dockside 1) - Kaldnes (Tønsberg). Leiligheten er ledig fra 15. november 2024. Egner seg både til enslige og par. Ligger vestvendt i 4.etasje og inneholder: Entré med skyvedørsgarderobe, sovealkove, innvendig bod, bad med dusj, stue med kjøkken og utgang til vestvendt balkong. Varmekabler i gulv på bad.
Parkett på gulv og lysmalte veggflater. Garderobeskap i sovealkove og bod. Kjøkken med integrerte hvitevarer (kjøl, frys, steketopp/ovn, oppvaskmaskin). Flislagt bad. Enkel og lettstelt leilighet i umiddelbar nærhet til sentrum.
Leien inkluderer fjernvarme (oppvarming og varmt vann), Altibox-abonnement.
Strøm kommer i tillegg - ca. 175 kwh pr mnd.
Ikke røyk. 3 mnd depositum.
Parkett på gulv og lysmalte veggflater. Garderobeskap i sovealkove og bod. Kjøkken med integrerte hvitevarer (kjøl, frys, steketopp/ovn, oppvaskmaskin). Flislagt bad. Enkel og lettstelt leilighet i umiddelbar nærhet til sentrum.
Leien inkluderer fjernvarme (oppvarming og varmt vann), Altibox-abonnement.
Strøm kommer i tillegg - ca. 175 kwh pr mnd.
Ikke røyk. 3 mnd depositum.
NB: Knappen for å vise hele beskrivelsen har kun en visuell effekt.
NB: Knappen for å vise hele beskrivelsen har kun en visuell effekt.
Visning
Visning etter avtale
Trenger du en kontrakt?
- Utfylt kontrakt med opplysninger fra annonsen
- Digital signering
- Gratis tjeneste
- Godkjent av Forbrukerrådet
Nærområdet
Annonsene kan være mangelfulle i forhold til lovpålagt opplysningsplikt. Før bindende avtale inngås oppfordres interessenter til å innhente komplett informasjon fra meglerforetaket, selger eller utleier.















