Bildegalleri

Åpen planløsning mellom stue og kjøkken.
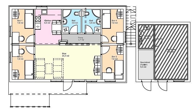
1 av 4 hybler til leie sentralt på Strindheim.
- Månedsleie
- 5 000 kr
- Depositum
- 10 000 kr
Nøkkelinfo
- Internt bruksareal
- 79 m² (BRA-i)
- Bruksareal
- 84 m²
- Eksternt bruksareal
- 5 m² (BRA-e)
- Innglasset balkong
- 0 m² (BRA-b)
- Balkong/Terrasse
- 0 m² (TBA)
- Boligtype
- Rom i bofellesskap
- Soverom
- 4
- Etasje
- 0.
- Leieperiode
- 01.04.2026 - 31.07.2026
- Bruttoareal
- 84 m²
Fasiliteter
Beskrivelse
1 av 4 hybler ledig! Det er et bofellesskap for kvinnelige studenter med felles stue, kjøkken, gang, 2 bad og sportsbod, samt ett av fire soverom som nå er ledig og leies ut fram til 31.juli 2026. Deretter er det mulig å forlenge leiekontrakten med 1 år av gangen. Strøm/oppvarming, internett og TV-abonnement er inkludert i leieavtalen. Ligger sentralt på Strindheim med kort vei til Solsiden/midtbyen og det meste av skoler i nærheten (HIST, NTNU Dragvoll, Tunga og Gløshaugen, TØH, Handelshøyskolen BI, Rotvoll, Dronning Maude, Tyholt marinteknisk m.m.) Ca. 10 min. med buss eller sykkel inn til sentrum. Flere busstopp i nærheten med direkte forbindelse til midtbyen og Dragvoll. Gangavstand til Sirkus Shopping og Ikea. Nettverkssuttak på alle rom, samt tilgang til trådløst internett. Hyblene er møblert med garderobeskap, kontorpult, stol og rullegardiner. Kjøkken er innredet med alt av hvitevarer og tilbehør, samt spisegruppe. Flislagte bad med dusjhjørne, servantskap, speil med overlys, vegghengte toalett og vaskemaskiner. Stue med sofa, bord, vitrineskap og felles TV. Garderobeskap, oppheng og skostativ i gang. Vannbåren gulvvarme i alle rom med separate termostater. Balansert ventilasjonsanlegg. Eget betjeningspanel for brannalarmsentral. Sentralstøvsuger i leiligheten. Korridor med eget sikringskap og rørskap. Egen inngang inn til sokkeletasje på enebolig. Tilgang til utvendig sportsbod i sokkel på garasje. Sykkelparkering på tomta. Visning etter avtale.
Visning
Trenger du en kontrakt?
- Utfylt kontrakt med opplysninger fra annonsen
- Digital signering
- Gratis tjeneste
- Godkjent av Forbrukerrådet
Nærområdet
Annonsene kan være mangelfulle i forhold til lovpålagt opplysningsplikt. Før bindende avtale inngås oppfordres interessenter til å innhente komplett informasjon fra meglerforetaket, selger eller utleier.











