Bildegalleri

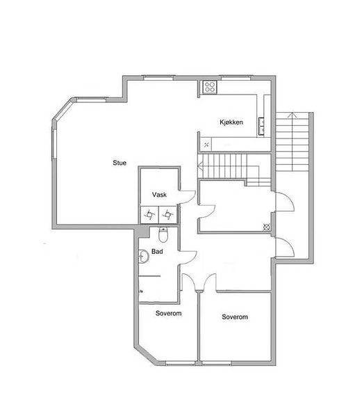
Plantegning

Hjerterom

Leilighet til leie, Klepp

Månedsleie
15 000 kr
Depositum
30 000 kr

Nøkkelinfo

Primærrom
70 m²
Boligtype
Hybel
Soverom
2
Leieperiode
01.04.2026

Les mer om bruksareal her

Fasiliteter

Umøblert
Bredbåndstilknytning
Garasje/P-plass
Moderne
Sentralt

Beskrivelse

Kjellerleilighet sentralt på Klepp ledig for leie 1.april.

Nyrenovert for 2 år siden, (bilder er ca. 2 år gamle.)
Integrert hvitevarer på kjøkken. Varme i gulv. Internett inkludert. Parkeringsplass. Egen strømmåler.

Entre, 2 soverom, bad, vaskerom, stue og kjøkken.

Ønsker langtidsleie.

Ta kontakt ved interesse, og evnt, meir info. Fortell litt om deg/dere.

Visning

Ta kontakt for å avtale visning.

Profilinfo

Trenger du en kontrakt?

  • Sjekkmerke
    Utfylt kontrakt med opplysninger fra annonsen
  • Sjekkmerke
    Digital signering
  • Sjekkmerke
    Gratis tjeneste
  • Sjekkmerke
    Godkjent av Forbrukerrådet

Nærområdet

Annonseinformasjon

FINN-kode451417422
Sist endret16. feb. 2026 19:37

Rapporter annonse

Annonsene kan være mangelfulle i forhold til lovpålagt opplysningsplikt. Før bindende avtale inngås oppfordres interessenter til å innhente komplett informasjon fra meglerforetaket, selger eller utleier.