Bildegalleri

Hjerterom

Leilighet på Majorstuen med balkong mot bakgård

Månedsleie
20 000 kr
Depositum
40 000 kr

Nøkkelinfo

Primærrom
47 m²
Bruksareal
47 m²
Boligtype
Leilighet
Soverom
1
Etasje
4.
Leieperiode
01.03.2026

Les mer om bruksareal her

Fasiliteter

Umøblert
Balkong/Terrasse
Heis
Sentralt

Beskrivelse

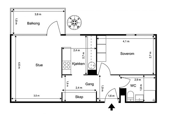
Leilighet til leie i Kirkeveien 45 fra 01.03.26. Leiligheten er på 47 m², og har en romslig balkong. Vinduene og balkongen er vendt mot bakgård, så man slipper støy fra Kirkeveien, men den det er fortsatt kort gåavstand til både T-bane og trikk/buss stopp. Leiligheten består av et romslig soverom med skap, stue med utgang til balkong, bad i nær forbindelse med soverom, og kjøkken i nær relasjon til stue. Leiligheten skal males før overtagelse, og det fins dermed ikke nye bilder av leiligheten. I annonses ses bilder av planløsning. Dersom det er ønskelig med bilder fra en leilighet som ser tilsvarende ut, men er speilvendt kan det sendes på etterspørsel.

Visning

Ta kontakt for å avtale visning.

Profilinfo

Trenger du en kontrakt?

  • Sjekkmerke
    Utfylt kontrakt med opplysninger fra annonsen
  • Sjekkmerke
    Digital signering
  • Sjekkmerke
    Gratis tjeneste
  • Sjekkmerke
    Godkjent av Forbrukerrådet

Nærområdet

Annonseinformasjon

FINN-kode448656326
Sist endret30. jan. 2026 10:54

Rapporter annonse

Annonsene kan være mangelfulle i forhold til lovpålagt opplysningsplikt. Før bindende avtale inngås oppfordres interessenter til å innhente komplett informasjon fra meglerforetaket, selger eller utleier.