Bildegalleri
Lys og fin 2 roms leilighet, parkeringsplass med lademulighet
- Månedsleie
- 13 000 kr
- Depositum
- 39 000 kr
Nøkkelinfo
- Primærrom
- 37 m²
- Boligtype
- Leilighet
- Soverom
- 1
- Etasje
- 2.
- Leieperiode
- 08.12.2025
- Dyrehold tillatt
- Ja
- Bruttoareal
- 42 m²
Fasiliteter
Beskrivelse
Leilighet til leie i Vårliveien 15L
Leiligheten er nymalt i lune beige farger.
Leiepris:
Kr. 13 000 pr. måned
Inkludert i leieprisen:
Standardpakke fra altibox. Dette gjelder både internett og tv.
Egne abonnementer:
Leietaker tegner eget abonnement for strøm.
Leietaker tegner eget abonnement for lading av bil.
Tillegg til leieprisen:
Vannforbruk
Beliggenhet
På Vårlitunet vil du bo tilbaketrukket blant både veletablert og ny boligbebyggelse midt på Halmstad i Rygge. De fleste fasiliteter og tilbud på Halmstad er lett tilgjengelig innenfor en radius på få hundre meter.
I området finner du både to dagligvareforretninger, konditori, apotek og en håndfull små forretninger,
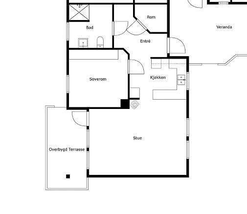
Eiendommens rom
Indre rom:
Entre, stue, kjøkken, bad, og soverom.
Ytre rom:
Balkong på 7kvm med utvendig bod og sportsbod.
Standard
Leiligheten er fra 2019, og har moderne farger. Fliser på bad, og lyse fronter.
Inventar
Boligen leies ut umøblert.
Frittstående hvitevarer: kombiskap, komfyr, oppvaskmaskin.
Visning etter avtale.
Visning
Ta kontakt for å avtale visning.Trenger du en kontrakt?
- Utfylt kontrakt med opplysninger fra annonsen
- Digital signering
- Gratis tjeneste
- Godkjent av Forbrukerrådet
Nærområdet
Annonsene kan være mangelfulle i forhold til lovpålagt opplysningsplikt. Før bindende avtale inngås oppfordres interessenter til å innhente komplett informasjon fra meglerforetaket, selger eller utleier.
Lignende annonser
