Bildegalleri
Kjellerhybelen holder høy standard. Inngangsparti og kjøkken levert av Drømmekjøkkenet. Varmekabler i alle gulv.
38 kvm 2-roms hybel på Eiksmarka I 2024 I Høy standard I Kort vei til T-bane og buss
- Månedsleie
- 14 000 kr
- Depositum
- 40 000 kr
Nøkkelinfo
- Primærrom
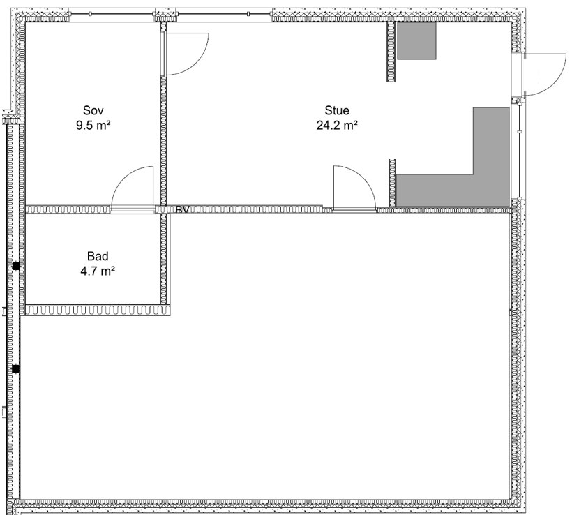
- 38 m²
- Boligtype
- Hybel
- Soverom
- 1
- Leieperiode
- 27.03.2026
- Energimerking
- B
Fasiliteter
Beskrivelse
Hybelleilighet i ny tomannsbolig (2024) på Eiksmarka/Bærum med høy standard, kommer til leie fra april/mai. Kort vei til Oslo sentrum med T-banen. Flere bussruter i nærheten. Gangavstand til Røa torg. Tidspunkt for innflytting aktuelt mellom mars og mai.
Hybelen passer godt for enslige og par som studerer. Røyking er ikke tillatt i leiligheten eller på eiendommen. Dyrehold er kun tillatt etter avtale.
Vi ønsker fortrinnsvis et langsiktig leieforhold, minimum 1 år. Hybelen leies ut delvis møblert etter avtale.
Øvrige fasiliteter som er inkludert i leien:
Varmtvann og internett(fiber) er inkludert i leien.
Hybelen er bygningsmessig godkjent for varig opphold, og tilfredsstiller alle krav til utleie. Hybelen er lokalisert i kjelleren, og er utstyrt med store vinduer som, sammen med god takhøyde, gir en lys og romslig hybel.
Balansert ventilasjon med varmegjenvinning og elektrisk gulvvarme i alle rom sørger for et godt inneklima og jevn temperatur i hybelen. Strøm faktureres etter forbruk, det er installert seriemåler for strømforbruk i hybelen.
Hybelen har egen, usjenert inngang via utvendig trapp med innlagt varmekabler. Stuen har en delvis åpen kjøkkenløsning levert av Drømmekjøkkenet. Kjøkkenet inkluderer platetopp med 60 cm bredde, ventilator, stekeovn, oppvaskmaskin og kombiskap med kjøl og frys. Det er separat soverom. Badet er moderne og flislagt med 60x60cm-fliser, og det følger med egen vaskemaskin.
Ekstra oppbevaring i garasje kan gjøres etter avtale.
Parkering:
Gateparkering.
Området:
Umiddelbar nærhet til marka med fantastiske turområder sommer som vinter. Lysakerelven kan by på idylliske turstier og flere badekulper langs elven. For golfentusiasten ligger Grini og Haga golfbaner samt Oslo Golfklubb i nærområdet. Fra eiendommen er det også kort vei til Bærumsmarka, som byr på milevis med flotte turstier, sykkelveier og preparerte skiløyper, samt badevann og gode rekreasjonsmuligheter. Her kan det nevnes Fossum idrettsanlegg med lysløype, samt en rekke aktive klubbmiljøer innenfor langrenn, skiskyting, hopp, allidrett, fotball med mer. Bogstadvannet kan også nevnes som et populært badevann, fiskevann eller som en hyggelig turdestinasjon.
Det er kun få minutters gange til Eiksmarka senter. Det er heller ikke langt til Røa, Østerås kjøpesenter, Bekkestua, og CC-Vest. Både Bekkestua, Røa og CC-Vest byr på et svært godt utvalg av butikker, ulike service/helsetilbud, kafeer og spisesteder samt treningssenter.
Kollektivt:
Fra boligen er det kun ca. 100 meter til nærmeste bussholdeplass "Grini" med rute 230 (Sandvika Ila, via Bekkestua). Du har også tilgang på både buss og T-bane fra Eiksmarka T (ca. 500 meter unna) med rute 140 (mellom Bekkestua - Lysaker - Skøyen) og 140 N (nattbuss mellom Oslo bussterminal - Bekkestua). T-banens linje 2 tar deg til Nationaltheatret på 16 minutter. Med buss eller T-bane har du også enkel tilgang på tog og Flytoget enten fra Skøyen eller Nationaltheatret. Eiksmarka (m/ Eiksmarka buss/T-bane og Grini holdeplass) ligger innenfor Ruter Sone 1, den sonen som dekker Oslo for øvrig. Nattbuss 2N Østerås - Ellingsrudåsen i tillegg til nevnte buss- og T-baneforbindelser.
Er du interessert eller ønsker mer informasjon om hybelen? Skriv gjerne noen linjer om deg selv, din situasjon (student/arbeidssted), hvorfor du ønsker å bo hos oss, samt hva du ser for deg rundt leieforholdet. Vi vil ta kontakt med deg for å eventuelt avtale møte/visning. Referanser fra tidligere leieforhold, arbeidssted og/eller studiested kreves.
Visning
Trenger du en kontrakt?
- Utfylt kontrakt med opplysninger fra annonsen
- Digital signering
- Gratis tjeneste
- Godkjent av Forbrukerrådet
Nærområdet
Annonsene kan være mangelfulle i forhold til lovpålagt opplysningsplikt. Før bindende avtale inngås oppfordres interessenter til å innhente komplett informasjon fra meglerforetaket, selger eller utleier.

