Bildegalleri

Utleid
Ny oppusset bolig meget sentralt,innflyttingsklar,
- Månedsleie
- 15 000 kr
- Depositum
- 30 000 kr
Nøkkelinfo
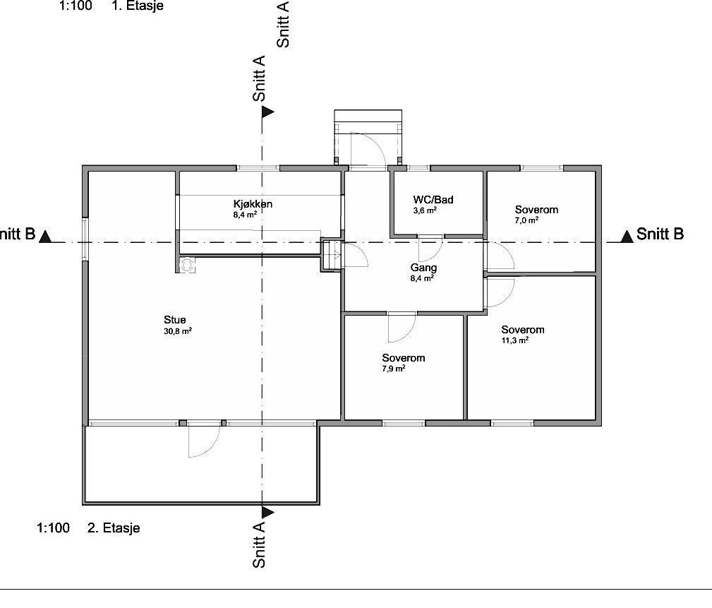
- Primærrom
- 75 m²
- Boligtype
- Leilighet
- Soverom
- 3
- Etasje
- 2.
- Leieperiode
- 15.01.2026
- Dyrehold tillatt
- Ja
- Bruttoareal
- 85 m²
- Energimerking
- A
Fasiliteter
Umøblert
Aircondition
Alarm
Balkong/Terrasse
Barnevennlig
Bredbåndstilknytning
Garasje/P-plass
Moderne
Parkett
Peis/Ildsted
Rolig
Sentralt
Utsikt
Beskrivelse
Sentral bolig med kort vei til Kongsvinger sentrum, svømmehall/trening senter, kongsvinger hallen, barne/ungdom/videregående-skole, kjøpesenter og stort sett alt annet Kongsvinger har å tilby.
NB: Knappen for å vise hele beskrivelsen har kun en visuell effekt.
NB: Knappen for å vise hele beskrivelsen har kun en visuell effekt.
Trenger du en kontrakt?
- Utfylt kontrakt med opplysninger fra annonsen
- Digital signering
- Gratis tjeneste
- Godkjent av Forbrukerrådet
Nærområdet
Annonsene kan være mangelfulle i forhold til lovpålagt opplysningsplikt. Før bindende avtale inngås oppfordres interessenter til å innhente komplett informasjon fra meglerforetaket, selger eller utleier.




















