Bildegalleri

Inngangsparti
Hyggelig sokkelleilighet med store vindu og uteplass
- Månedsleie
- 11 000 kr
- Depositum
- 22 000 kr
Nøkkelinfo
- Primærrom
- 50 m²
- Boligtype
- Leilighet
- Soverom
- 1
- Etasje
- 0.
- Leieperiode
- 01.03.2026
- Energimerking
- C - Gul
Fasiliteter
Beskrivelse
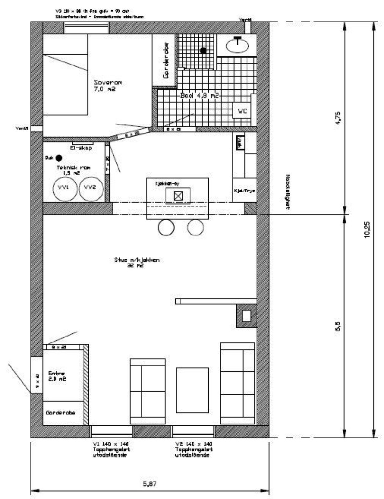
Leilighet i sokkel av enderekkehus. Store vindu ut mot terrasse og uteområde. Egen inngang med trapp. Totalrehabilitert i 2013 og pusset opp våren 2023, ute og inne.
Leiligheten er på 50m2 og inneholder stue, kjøkken, bad, soverom og teknisk rom/vaskerom. Åpen kjøkken- og stueløsning med kjøkkenøy. Store vinduer som slipper inn mye lys. Utvendig bod og egen uteplass med terrasse. Meget skjermet beliggenhet, ingen innsyn.
Følger med integrert oppvaskmaskin og vaskemaskin for klær. Ellers umøblert.
Pris inkluderer strøm og internett.
Passer for en person eller par, ikke-røyk og ikke husdyr. Vi ønsker en rolig person som ikke fester.
Ønsker helst leietaker uten bil, men det er mulig å parkere på felles parkeringsplass. Ikke mulighet for el-bil lading.
Merk! Leietaker kan flytte inn i tidsrommet 1.februar-1.mars.
Vi vil gjerne høre fra deg, så send noen ord om deg selv og ta kontakt dersom du ønsker visning.
Visning
Ta kontakt for å avtale visning.Trenger du en kontrakt?
- Utfylt kontrakt med opplysninger fra annonsen
- Digital signering
- Gratis tjeneste
- Godkjent av Forbrukerrådet
Nærområdet
Annonsene kan være mangelfulle i forhold til lovpålagt opplysningsplikt. Før bindende avtale inngås oppfordres interessenter til å innhente komplett informasjon fra meglerforetaket, selger eller utleier.






