Bildegalleri

Hjerterom
Totalt renovert og topp moderne leilighet på Eiganes
- Månedsleie
- 23 000 kr
- Depositum
- 40 000 kr
Nøkkelinfo
- Primærrom
- 93 m²
- Boligtype
- Leilighet
- Soverom
- 3
- Etasje
- 1.
- Leieperiode
- 01.04.2026
- Energimerking
- B - Mørkegrønn
Fasiliteter
Delvis møblert
Aircondition
Balkong/Terrasse
Barnevennlig
Bredbåndstilknytning
Garasje/P-plass
Moderne
Rolig
Sentralt
Turterreng
Beskrivelse
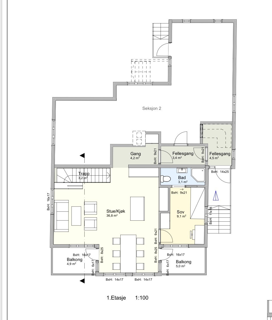
Heilt ny og moderne leilighet på Eiganes leies til lengre tid. Leiligheten er nettopp pusset opp med alt nytt fra strøm , vann rør , nye veger , vinduer og alt annet. Den framstå som topp moderne med ny tidsriktig kjøkken fra Norema med keramisk benkeplate.
Leiligheten har 3 soverom, 2 bad , stue og kjøkken ned opptent løsning samt bod under trappene.
Det er gulvvarme i gangene samt i de 2 badene men ny og moderne varmepumpe i stuen.
Leiligheten leies ut delvis møblert som vist på bildene og i tillegg skal alle rommene utstyres med skaper.
Det er parkering på egen tomt.
Leiligheten har 3 soverom, 2 bad , stue og kjøkken ned opptent løsning samt bod under trappene.
Det er gulvvarme i gangene samt i de 2 badene men ny og moderne varmepumpe i stuen.
Leiligheten leies ut delvis møblert som vist på bildene og i tillegg skal alle rommene utstyres med skaper.
Det er parkering på egen tomt.
NB: Knappen for å vise hele beskrivelsen har kun en visuell effekt.
NB: Knappen for å vise hele beskrivelsen har kun en visuell effekt.
Visning
visning etter avtale
Trenger du en kontrakt?
- Utfylt kontrakt med opplysninger fra annonsen
- Digital signering
- Gratis tjeneste
- Godkjent av Forbrukerrådet
Nærområdet
Annonsene kan være mangelfulle i forhold til lovpålagt opplysningsplikt. Før bindende avtale inngås oppfordres interessenter til å innhente komplett informasjon fra meglerforetaket, selger eller utleier.


















