Bildegalleri

Inngangsparti, Parkering.
Hjerterom
Sentrum: Flott 3-roms, totalrenovert 2020.
- Månedsleie
- 12 000 kr
- Depositum
- 20 000 kr
Nøkkelinfo
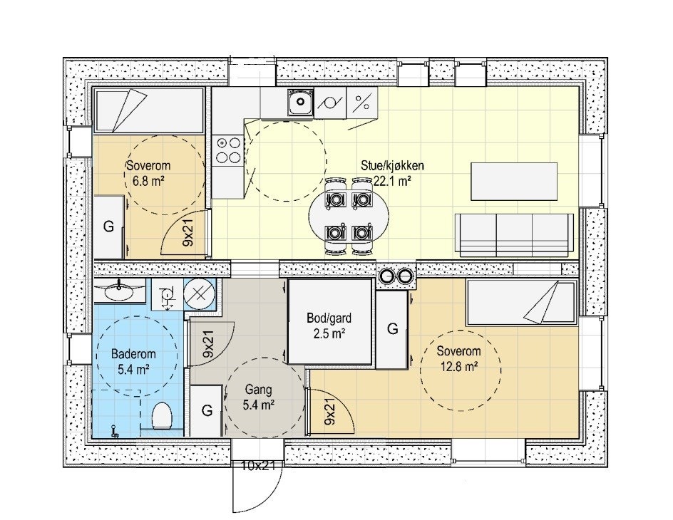
- Primærrom
- 55 m²
- Boligtype
- Leilighet
- Soverom
- 2
- Etasje
- 1.
- Leieperiode
- 09.04.2026
Fasiliteter
Delvis møblert
Alarm
Barnevennlig
Bredbåndstilknytning
Garasje/P-plass
Ingen gjenboere
Moderne
Rolig
Sentralt
Turterreng
Beskrivelse
Morderne leilighet i sentrum av Kristiansund.
Ledig fra 9.04.26
NB: Knappen for å vise hele beskrivelsen har kun en visuell effekt.
NB: Knappen for å vise hele beskrivelsen har kun en visuell effekt.
Visning
Ta kontakt for visning.
Trenger du en kontrakt?
- Utfylt kontrakt med opplysninger fra annonsen
- Digital signering
- Gratis tjeneste
- Godkjent av Forbrukerrådet
Nærområdet
Annonsene kan være mangelfulle i forhold til lovpålagt opplysningsplikt. Før bindende avtale inngås oppfordres interessenter til å innhente komplett informasjon fra meglerforetaket, selger eller utleier.










