Bildegalleri

Stue med åpen kjøkkenløsning
Kjeller leilighet, med høy standard i enebolig på Bjerke
- Månedsleie
- 16 500 kr
- Depositum
- 49 500 kr
Nøkkelinfo
- Primærrom
- 35 m²
- Boligtype
- Leilighet
- Soverom
- 1
- Etasje
- 1.
- Leieperiode
- 01.05.2026
Fasiliteter
Beskrivelse
Vi søker leietaker til leiligheten i boligen vår. Leiligheten er lys og romslig. Ledig fra 1.5.2026, det kan evt avtale tidligere overtakelse.
Beskrivelse:
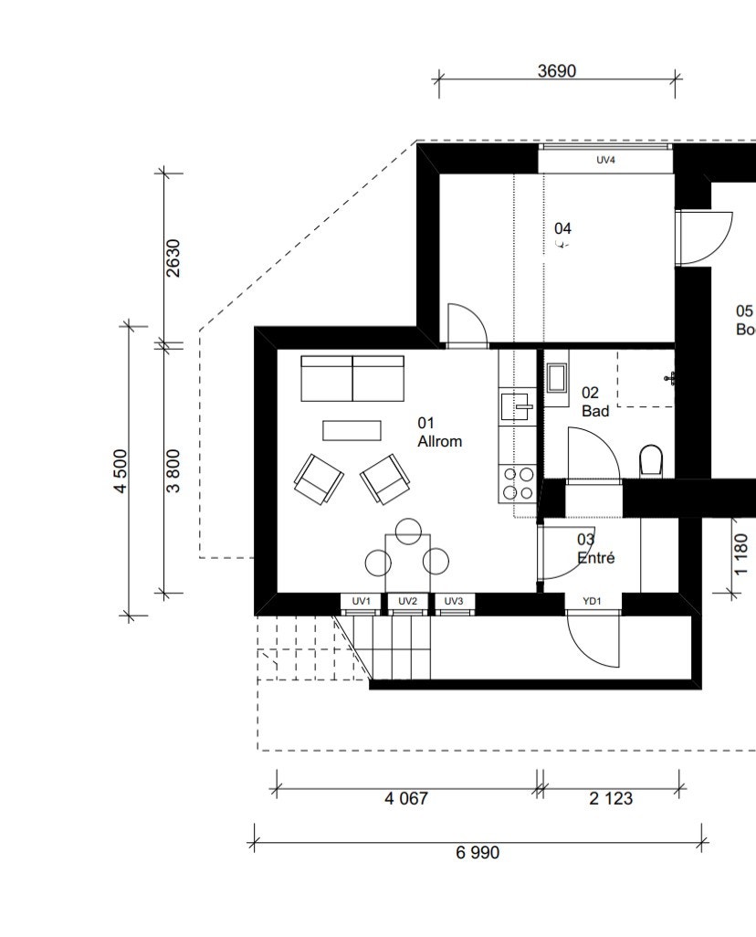
Leiligheten ligger i underetasje og leies ut umøblert. Leiligheten har en praktisk planløsning og gode lysforhold, og oppleves som lys og romslig.
•Gang
Skyvedørsgarderobe med trådkurv og heng.
•Stue
Romslig løsning med opplegg for TV og internett. Balansert ventilasjon.
•Kjøkken
Åpen kjøkkenløsning med hvitevarer (kjøleskap med fryseboks, stekeovn, induksjonstopp, ventilator og oppvaskmaskin).
•Soverom
Romslig med god plass til dobbeltseng. Garderobeskap med god plass. Balansert ventilasjon.
•Bad
Flislagt bad med dusjhjørne og vaskemaskin. Fuktstyrt avtrekksvifte.
Høy standard, alle rom har gulvvarme og downlights med dimming.
•Inventar:
Garderobeskap på soverom. Skyvedørs garderobe i gang med trådkurv system.
Hvitevarer: vaskemaskin, oppvaskmaskin, stekeovn, ventilator, koketopp, kjøl/frys skap.
•Fasiliteter
Balansert ventilasjon.
Internett er inkludert i husleien.
•Oppvarming
Boligen oppvarmes med varmekabler.
•Parkering
Gateparkering etter gjeldende regler, beboerparkering koster for tiden 1 kr i året.
• Strøm, akonto
Det betales i tillegg til husleien 1 000,- kr akonto hver måned.
Forbruk avregnes årlig 1. januar eller ved leiekontraktens opphør. Dagens leietaker har hatt et årlig forbruk på ca 10 000 - 12 000 pr år.
•Husleie + strøm
Kr 17 500 pr. måned.
(16 500,- husleie + 1 000,- akonto strøm)
Utleiers krav til sikkerhet.
Som sikkerhet i dette leieforholdet betaler leietaker depositum i Storebrand bank.
Fremleie ikke tillatt.
Husdyr og røyking ikke tillatt.
Leiligheten ligger i et rolig og attraktivt boområde på Bjerke med kort vei til offentlig kommunikasjon. Det er kun få minutter til Brobekk busstopp med flere busslinjer som tar deg ned til byen på 15 min og flybussen som tar deg til Gardermoen.
6 min gang til Bjerke busstopp med flere bussforbindelser, bla. 31-bussen som går hele døgnet.
8 min gang til T-banestasjon på Vollebekk.
Det er flotte turmuligheter i nærmiljøet med Lillomarka og Bjerkedalen.
Flere dagligvarebutikker og servicetilbud i nærheten og både Årvoll Senter og Linderud Senter ligger i gangavstand fra leiligheten.
Kontraktsinngåelse
Ved kontraktsinngåelse forfaller inntil 1 måneds husleie til betaling. Videre betales husleie forskuddsvis 1. i hver måned.
Visning
Visning etter avtale.
Er du interessert send oss en melding og skriv litt kort om deg/dere.
Visning
Trenger du en kontrakt?
- Utfylt kontrakt med opplysninger fra annonsen
- Digital signering
- Gratis tjeneste
- Godkjent av Forbrukerrådet
Nærområdet
Annonsene kan være mangelfulle i forhold til lovpålagt opplysningsplikt. Før bindende avtale inngås oppfordres interessenter til å innhente komplett informasjon fra meglerforetaket, selger eller utleier.


























