Bildegalleri

Leilighet på Løren
- Månedsleie
- 17 000 kr
- Depositum
- 50 000 kr
Nøkkelinfo
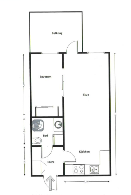
- Primærrom
- 42 m²
- Bruksareal
- 42 m²
- Boligtype
- Leilighet
- Soverom
- 1
- Etasje
- 2.
- Leieperiode
- 10.05.2026
- Bruttoareal
- 42 m²
Fasiliteter
Beskrivelse
Enkel, grei og stilren leilighet med fin utsikt utover gårdsplassen med grunntvannsbasseng.
på gårdsplassen finnes blant annet utendørs bordtennis-bord og Basket-kurv.
Åpent kjøkken gjør leiligheten perfekt for uformelle besøk av kjente og kjære.
Hvitevarer følger med leiligheten, men utover dette er den umøblert. Kjøp av møbler kan diskuteres med nåværende leietakere (seng på 160, sofa, spisebord og tilhørende stoler).
Det er en bod på ca 8kvm i kjelleren. Bom kan åpnes slik at man kommer helt inntil inngangsdøren med bil.
Leiligheten ligger under 5 min gange til Løren T-bane og torg.
Visning tas etter avtale men leiligheten ønskes utleid ideelt sett fra 10 Mai, men ikke før.
Visning
Ta kontakt for å avtale visning.Trenger du en kontrakt?
- Utfylt kontrakt med opplysninger fra annonsen
- Digital signering
- Gratis tjeneste
- Godkjent av Forbrukerrådet
Nærområdet
Annonsene kan være mangelfulle i forhold til lovpålagt opplysningsplikt. Før bindende avtale inngås oppfordres interessenter til å innhente komplett informasjon fra meglerforetaket, selger eller utleier.






