Bildegalleri
Stue
Flott 2-roms leilighet ved Råstølen bybanestopp (bredbånd/Tv er inkludert)
- Månedsleie
- 15 500 kr
- Depositum
- 31 000 kr
Nøkkelinfo
- Primærrom
- 42 m²
- Boligtype
- Leilighet
- Soverom
- 1
- Etasje
- 1.
- Leieperiode
- 10.01.2026
- Energimerking
- B
Fasiliteter
Beskrivelse
Velkommen til Steinsvikvegen 272, en moderne og innbydende leilighet med svært attraktiv beliggenhet i populære Råstølen Park, oppført i 2018. Her bor du sentralt, men samtidig rolig, med bybanestopp, servicetilbud og arbeidsplasser rett i nærheten.
Leiligheten ligger i byggets 1. etasje og holder gjennomgående meget god standard. Det medfølger bod med enkel adkomst via trapper eller heis.
Beliggenhet – sentralt og svært praktisk
Råstølen Park har en svært attraktiv beliggenhet:
Kun ett bybanestopp til Lagunen Storsenter
Ett stopp i motsatt retning til Sandsli/Equinor, og videre til store arbeidsplasser på Kokstad
Enkel tilgang til Flesland flyplass
Dagligvarebutikk ligger bare noen meter unna, med generøse åpningstider:
Man–fre: 07.00–23.00
Lør: 08.00–21.00
I nærområdet finner du også Venezia Pizzeria og Isushi.
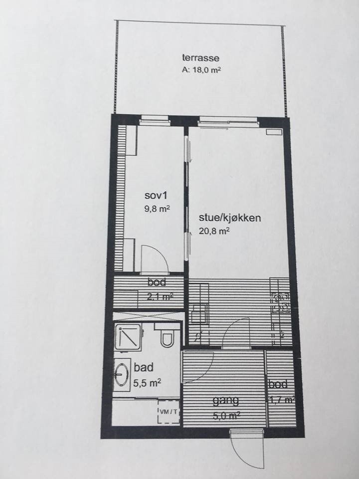
Leiligheten har en praktisk og arealeffektiv planløsning:
Romslig entré med stor skyvedørsgarderobe som gir rikelig oppbevaringsplass
Soverom med fleksibel løsning – to skyvedører gir tilkomst fra begge sider av rommet, samt to garderobeskap
Delikat og moderne bad med fliser, spotter i tak, vegghengt toalett og smarte speilskyvedører som skjuler vaskemaskin og oppbevaring
Åpen stue- og kjøkkenløsning som gir en luftig og sosial atmosfære
Det moderne, hvite kjøkkenet er levert av Sigdal og har integrerte hvitevarer. Stuen har store vindusflater som slipper inn rikelig med dagslys, og utgang til privat terrasse – perfekt for rolige morgenstunder eller hyggelige sommerkvelder.
I tillegg har bygget en flott felles takterrasse som kan benyttes året rundt.
Øvrig informasjon:
Eiendommens rom
Indre rom: Gang, bod, soverom, bad og stue/kjøkken
Ytre rom: Bod
Inventar
Leiligheten kan leies ut møblert eller umøblert.
Følgende hvitevarer medfølger:
Kjøl/frys
Komfyr og platetopp
Oppvaskmaskin
Vaskemaskin
Fasiliteter
Heis
Dørtelefon
Terrasse
Felles takterrasse
Bredbånd og kabel-TV (Ekstra ønsker kan tegnes av leietaker)
Parkering
Gateparkering etter gjeldende bestemmelser
Gjestparkering tilgjengelig i byggets parkeringshus
Oppvarming
Sentralfyring og elektrisk oppvarming
Elektrisitet
Leietaker tegner eget strømabonnement
Energimerking
Energikarakter B
Leievilkår
Depositum: 2 måneders husleie, settes på depositumskonto i Fana Sparebank
Inntil 1 måneds husleie betales ved kontraktsinngåelse
Dyr er ikke tillatt
Visning
Trenger du en kontrakt?
- Utfylt kontrakt med opplysninger fra annonsen
- Digital signering
- Gratis tjeneste
- Godkjent av Forbrukerrådet
Nærområdet
Annonsene kan være mangelfulle i forhold til lovpålagt opplysningsplikt. Før bindende avtale inngås oppfordres interessenter til å innhente komplett informasjon fra meglerforetaket, selger eller utleier.

