Bildegalleri

Moderne 3-roms leilighet til leie sentralt på Straume!
- Månedsleie
- 19 800 kr
- Depositum
- 39 700 kr
Nøkkelinfo
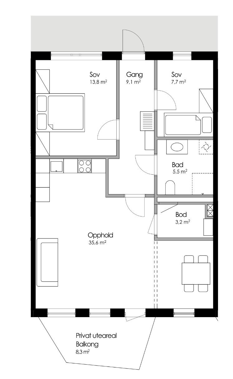
- Primærrom
- 79 m²
- Boligtype
- Leilighet
- Soverom
- 2
- Etasje
- 3.
- Leieperiode
- 01.05.2026
- Energimerking
- A - Gul
Fasiliteter
Beskrivelse
3 roms leilighet til leie, 79km2.
For langtidsleie.
Romslig og moderne leilighet, bod i kjelleretasje.
Sentralt på Straume, gangavstand til alle servicetilbud. Sartor senter med bussholdeplass, kino, restaurant, butikker, samt til treningsentre og sotra arena.
Leiligheten er nyoppført i 2017,
inkl hvitevarer som kjøleskap/frys, vaskemaskin/tørketrommel og komfyr.
Det er heis i bygget.
Tv og internett inkludert i leien
Leietager betaler for varmtvannsforbruk + strøm
Garasjeplass i underetage med heis til leilighet
Det er bod i kjeller/garasje
Ta gjerne kontakt for visning.
Visning
Trenger du en kontrakt?
- Utfylt kontrakt med opplysninger fra annonsen
- Digital signering
- Gratis tjeneste
- Godkjent av Forbrukerrådet
Nærområdet
Annonsene kan være mangelfulle i forhold til lovpålagt opplysningsplikt. Før bindende avtale inngås oppfordres interessenter til å innhente komplett informasjon fra meglerforetaket, selger eller utleier.







