Bildegalleri

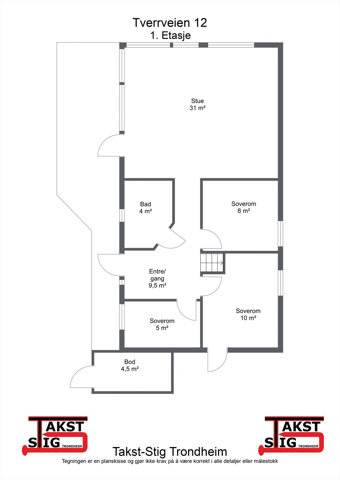
Hytten strekker seg over 76 kvm med 3 store soverom, åpen stue/kjøkken løsning med god takhøyde og store vindusflater som bidrar til en luftig romfølelse.
Nerskogen
NY HYTTE TIL PÅSKE? Sikre deg denne nye, flotte fritidsboligen med meget høy standard | TG0/1 | Utsikt mot Trollheimen
Prisantydning3 790 000 kr
- Omkostninger
- 19 840 kr
- Totalpris
- 3 809 840 kr
- Kommunale avg.
- 2 413 kr per år
Nøkkelinfo
- Beliggenhet
- På fjellet
- Boligtype
- Hytte
- Eieform
- Eier (Selveier)
- Internt bruksareal
- 71 m² (BRA-i)
- Bruksareal
- 76 m²
- Eksternt bruksareal
- 5 m² (BRA-e)
- Balkong/Terrasse
- 22 m² (TBA)
- Tomteareal
- 500 m² (eiet)
- Byggeår
- 2024
- Soverom
- 3
- Rom
- 4
- Energimerking
- C
Fasiliteter
Innlagt vann
Alpinanlegg
Balkong/Terrasse
Barnevennlig
Bilvei frem
Garasje/P-plass
Peis/Ildsted
Rolig
Utsikt
Bademulighet
Fiskemulighet
Innlagt strøm
Turterreng
Visning
lørdag, 14. mars
14:00 – 15:00
Alle våre visninger har påmelding. Meld deg opp til ønsket visningstidspunkt via linken visningspåmelding , eller kontakt megler på telefon, SMS eller mail. Vi anbefaler at salgsoppgaven lastes ned digitalt, og oppfordrer alle til å lese komplett salgsoppgave før visning. Skulle det mot formodning ikke være påmeldte til angitt visningstidspunkt vil ikke visning bli gjennomført.
Husk å lese komplett salgsoppgave før visning. Bestill komplett, utskriftsvennlig salgsoppgave.
VisningspåmeldingOm boligen
Velkommen til Tverrveien 12
En nyoppført hytte med gjennomgående strøken standard i naturskjønne omgivelser.
På toppen av Sørøyåsen får du gunstige solforhold og et område som byr på varierte muligheter for friluftsliv sommer som vinter, omkranset av noe av det vakreste Norge har å by på av naturlandskap.
Her ligger alt til rette for at hele familien kan storkose seg på hytta, året rundt!
Kvaliteter:
En nyoppført hytte med gjennomgående strøken standard i naturskjønne omgivelser.
På toppen av Sørøyåsen får du gunstige solforhold og et område som byr på varierte muligheter for friluftsliv sommer som vinter, omkranset av noe av det vakreste Norge har å by på av naturlandskap.
Her ligger alt til rette for at hele familien kan storkose seg på hytta, året rundt!
Kvaliteter:
- Flislag gulv i entré og bad med gulvvarme
- Lekkert kvalitetskjøkken fra Designa, med soft-close og integrerte hvitevarer
- Åpen moderne stue- og kjøkkenløsning med god takhøyde og store vindusflater
- Praktisk, utvendig sportsbod
- Helårs bilvei med parkering på egen tomt
- Kort vei til nærbutikk, skitrekk og oppkjørte skispor
- Nydelige utsiktsforhold
NB: Knappen for å vise hele beskrivelsen har kun en visuell effekt.
NB: Knappen for å vise hele beskrivelsen har kun en visuell effekt.
Salgsoppgaven beskriver vesentlig og lovpålagt informasjon om eiendommen
Se komplett salgsoppgaveNyttige lenker
Nærområdet
Heimdal Eiendomsmegling avd. Rosten
Annonseinformasjon
| FINN-kode | 390927902 |
|---|---|
| Sist endret | 02. mars 2026 12:39 |
| Referanse | 1-25-0034 |
Annonsene kan være mangelfulle i forhold til lovpålagt opplysningsplikt. Før bindende avtale inngås oppfordres interessenter til å innhente komplett informasjon fra meglerforetaket, selger eller utleier.
































