Bildegalleri

Eiendomsmegler 1 v/Albin Leo Bakkemo har gleden av å presentere Åsen hyttegrend 22! Foto: Interiørfoto, Bente Eidsmo)
GISNÅSEN - Rennebu
Flott fritidsbolig med usjenert og solrik beliggenhet nord for Oppdal sentrum. 3 soverom. Innredet hems. Stor terrasse.
Prisantydning3 900 000 kr
- Omkostninger
- 98 590 kr
- Totalpris
- 3 998 590 kr
- Kommunale avg.
- 5 335 kr per år
- Formuesverdi
- 637 500 kr
Nøkkelinfo
- Boligtype
- Hytte
- Eieform
- Selveier
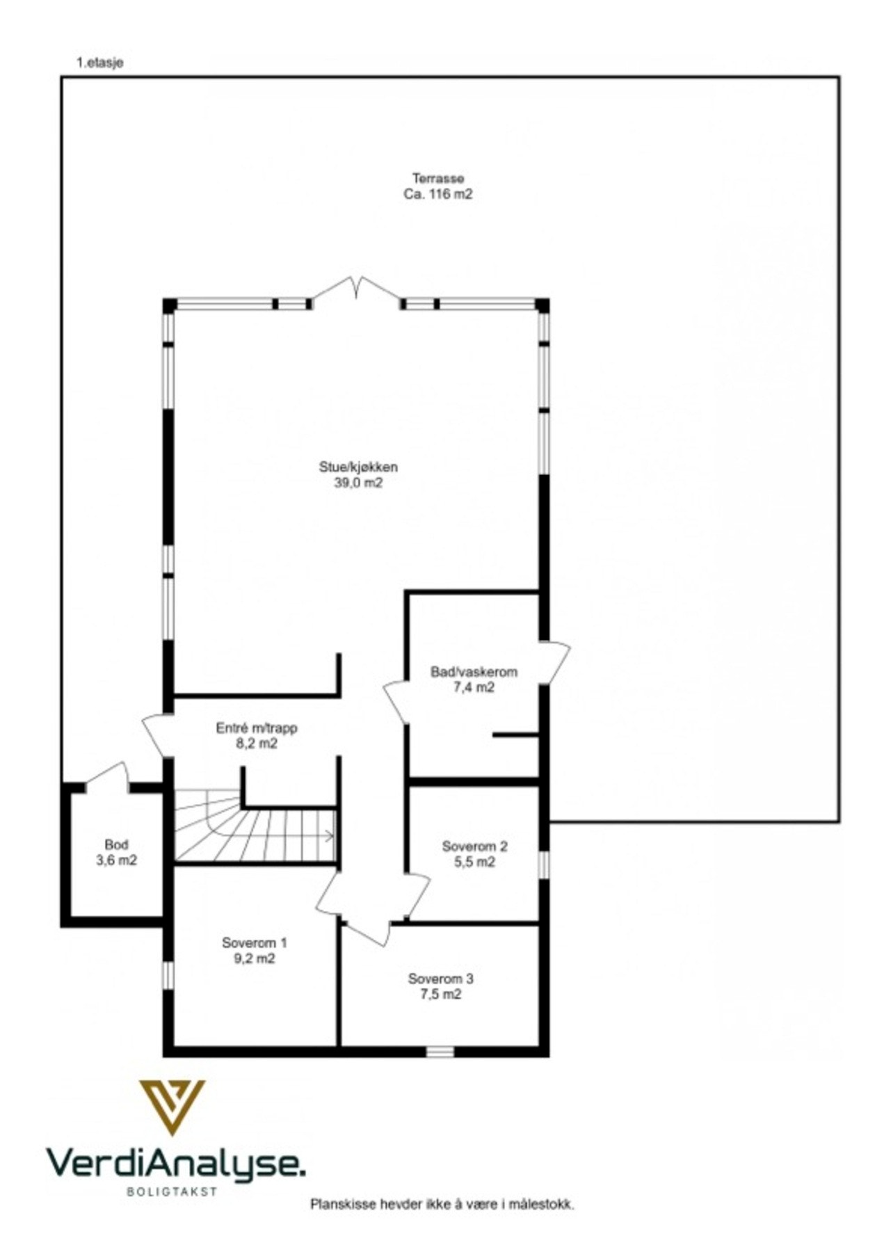
- Internt bruksareal
- 85 m² (BRA-i)
- Bruksareal
- 94 m²
- Eksternt bruksareal
- 9 m² (BRA-e)
- Balkong/Terrasse
- 116 m² (TBA)
- Tomteareal
- 893 m² (eiet)
- Byggeår
- 2019
- Soverom
- 3
- Rom
- 5
- Energimerking
Fasiliteter
Balkong/Terrasse
Garasje/P-plass
Peis/Ildsted
Turterreng
Utsikt
Alpinanlegg
Bilvei frem
Golfbane
Innlagt strøm
Innlagt vann
Visning
søndag, 12. april
13:00 – 13:45
Våre visninger har påmelding. Dette gjør vi for å kunne yte bedre service for våre kunder. Verdifullt for boligkjøper og for oss. Vi anbefaler at salgsoppgaven lastes ned digitalt før visning, og ring oss gjerne på forhånd for spørsmål om boligen. Passer ikke angitt tidspunkt, ta kontakt så finner vi en løsning. Skulle det mot formodning ikke være påmeldte til angitt visningstidspunkt vil ikke visning bli gjennomført.
Husk å lese komplett salgsoppgave før visning. Bestill komplett, utskriftsvennlig salgsoppgave.
VisningspåmeldingOm boligen
Velkommen til Åsen hyttegrend 22!
EiendomsMegler 1 ved Albin Leo Bakkemo har gleden av å presentere en flott fritidsbolig fra 2019 med solrik beliggenhet i et rolig og etablert hyttefelt. Eiendommen ligger i umiddelbar nærhet til flott og variert turterreng, samt preparerte langrennsspor. Om behovet for et mer urbant miljø skulle oppstå, ligger sentrum av Oppdal ca. 20 minutters kjøretur unna. Her finner man også Oppdal skisenter, et av landets største alpinanlegg.
Kvaliteter verdt å nevne:
- Romslig stue/kjøkken i åpen løsning
- 3 soverom
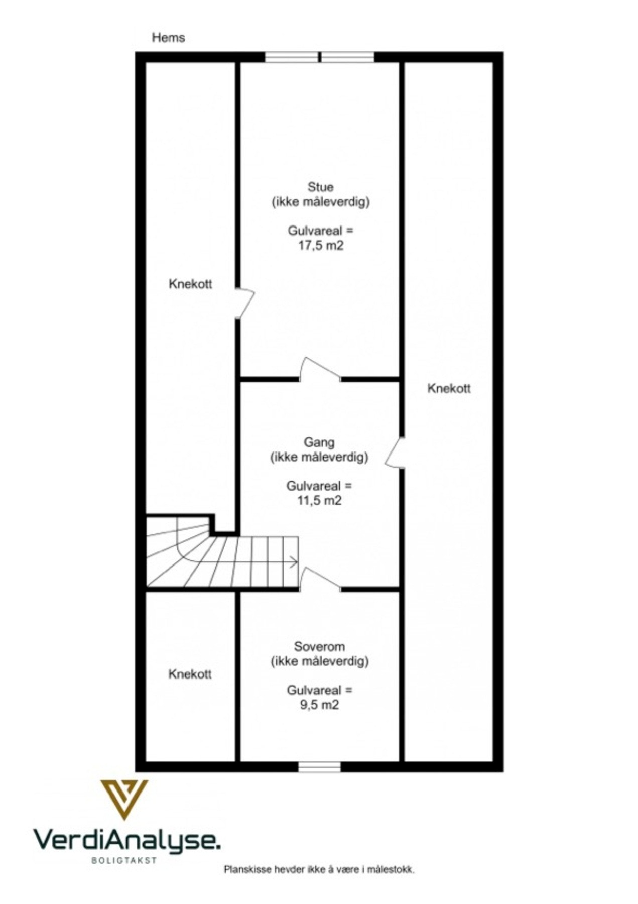
- Innredet hems
- Gode materialvalg
- Romslig og usjenert terrasse på hele 116 kvm med jacuzzi
- Gode solforhold
- Elbil-lader
Om nærområdet:
- Barnas Naturverden
- Heverfallsetra med seterdrift, (utsalg av lokale produkter, samt noen søndager med matservering og barnas dag)
- Slettestjønna naturreservat med fuglekikkings-tårn
- Mange fiskevann i nærheten
Velkommen til hyggelig visning!
EiendomsMegler 1 ved Albin Leo Bakkemo har gleden av å presentere en flott fritidsbolig fra 2019 med solrik beliggenhet i et rolig og etablert hyttefelt. Eiendommen ligger i umiddelbar nærhet til flott og variert turterreng, samt preparerte langrennsspor. Om behovet for et mer urbant miljø skulle oppstå, ligger sentrum av Oppdal ca. 20 minutters kjøretur unna. Her finner man også Oppdal skisenter, et av landets største alpinanlegg.
Kvaliteter verdt å nevne:
- Romslig stue/kjøkken i åpen løsning
- 3 soverom
- Innredet hems
- Gode materialvalg
- Romslig og usjenert terrasse på hele 116 kvm med jacuzzi
- Gode solforhold
- Elbil-lader
Om nærområdet:
- Barnas Naturverden
- Heverfallsetra med seterdrift, (utsalg av lokale produkter, samt noen søndager med matservering og barnas dag)
- Slettestjønna naturreservat med fuglekikkings-tårn
- Mange fiskevann i nærheten
Velkommen til hyggelig visning!
NB: Knappen for å vise hele beskrivelsen har kun en visuell effekt.
NB: Knappen for å vise hele beskrivelsen har kun en visuell effekt.
Salgsoppgaven beskriver vesentlig og lovpålagt informasjon om eiendommen
Se komplett salgsoppgaveNyttige lenker
Nærområdet
EiendomsMegler 1 Oppdal
Vi loser deg trygt gjennom hele boligsalget
Annonseinformasjon
| FINN-kode | 457158124 |
|---|---|
| Sist endret | 30. mars 2026 10:48 |
| Referanse | 42260014 |
Annonsene kan være mangelfulle i forhold til lovpålagt opplysningsplikt. Før bindende avtale inngås oppfordres interessenter til å innhente komplett informasjon fra meglerforetaket, selger eller utleier.








































