

STENSÅS - Halvpart av vertikaldelt tomannsbolig med mye potensiale - Nær skole, turområder og Harebakken - Sommerstue - Sentralt!
Bjørnsplass 8, Arendal
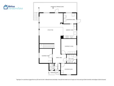
87 m²1 690 000 kr
Totalpris: 1 733 340 kr ∙ Fellesutg.: 399 kr ∙ Eier (Selveier) ∙ Leilighet ∙ 3 soverom
Visning - 24. feb. kl. 16:30

























































