Bildegalleri

Velkommen til Skjetleinvegen 123! En innholdsrik enebolig med attraktiv beliggenhet.
Fin, velholdt og praktisk enebolig i barnevennlig område til salgs!
Nøkkelinfo
- Boligtype
- Enebolig
- Eieform
- Eier (Selveier)
- Soverom
- 3
- Internt bruksareal
- 203 m² (BRA-i)
- Bruksareal
- 208 m²
- Eksternt bruksareal
- 5 m² (BRA-e)
- Byggeår
- 1991
- Tomteareal
- 696 m² (eiet)
Fasiliteter
Om boligen
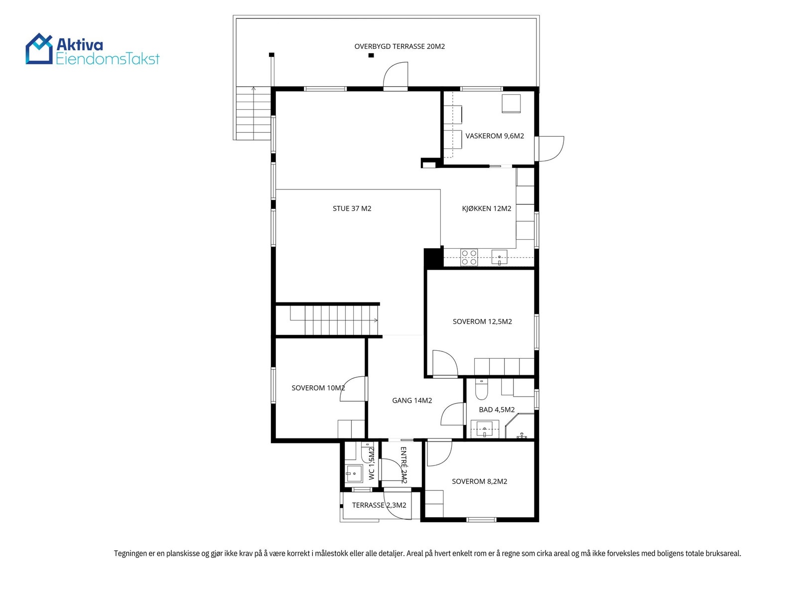
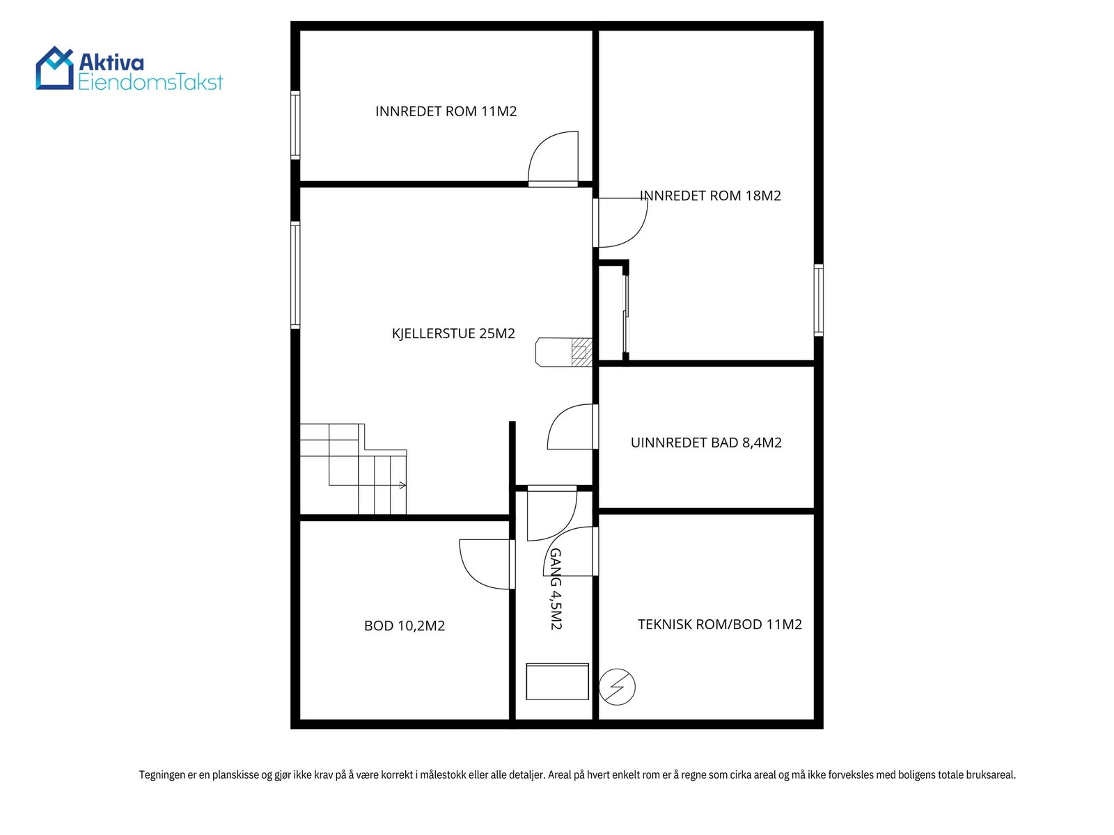
Skjetleinvegen 123 er en innholdsrik og sjarmerende enebolig fra 1991 med god planløsning og gjennomgående god standard. Boligen har lyse og romslige oppholdsrom, tre soverom på hovedplan, kjellerstue og flere innredede rom i underetasjen. Uteområdene er pent opparbeidet med hagedam, flere sitteplasser og terrasse. Her bor du fredelig og landlig, med flott turterreng rett utenfor døren. Samtidig kort vei til skole, barnehage, badestrand og Trondheim sentrum.
Beliggenhet
Boligen ligger i et rolig og landlig område med lite gjennomgangstrafikk og gode solforhold. Her bor du tett på naturen med flotte turmuligheter rett utenfor døren – både skog, mark og åpne jorder gir et variert og idyllisk nærmiljø. Området oppleves trygt og familievennlig, samtidig som det er kort kjøreavstand til dagligvarebutikk, skole og øvrige servicetilbud. En perfekt kombinasjon av landlig ro og praktisk tilgjengelighet.
Annet
Om du ikke har mulighet til å komme på visning, holder jeg gjerne privatvisning. Ta kontakt, så finner vi en tid.
Omkostninger
15 900 kr (HELP boligkjøperforsikring (valgfritt))
132 000 kr (Dokumentavgift)
545 kr (Tinglysing av pantedokument)
545 kr (Tinglysing av skjøte)
---
148 990 kr (Omkostninger totalt)
---
5 428 990 kr (Totalpris inkl. omkostninger)
NB: Regnestykket forutsetter at det kun tinglyses én låneobligasjon og at eiendommen selges til prisantydning.
Det tas forbehold om endringer i offentlige og private gebyrer.
Selger er selv ansvarlig for følgende gebyr:
545 kr (Panterett med urådighet)
Salgsoppgaven beskriver vesentlig og lovpålagt informasjon om eiendommen
Se komplett salgsoppgaveNyttige lenker
Nærområdet
Annonsene kan være mangelfulle i forhold til lovpålagt opplysningsplikt. Før bindende avtale inngås oppfordres interessenter til å innhente komplett informasjon fra meglerforetaket, selger eller utleier.




































