Bildegalleri

Velkommen til Bekkesvevegen 98!
BEKKESVEA
Stor og innholdsrik enebolig med meget rolig og barnevennlig beliggenhet i blindvei - Dobbelgarasje - Bergvarme!
Prisantydning8 500 000 kr
Nøkkelinfo
- Boligtype
- Enebolig
- Eieform
- Eier (Selveier)
- Soverom
- 3
- Internt bruksareal
- 276 m² (BRA-i)
- Bruksareal
- 333 m²
- Eksternt bruksareal
- 57 m² (BRA-e)
- Balkong/Terrasse
- 49 m² (TBA)
- Byggeår
- 1979
- Energimerking
- D
- Tomteareal
- 1 292 m² (eiet)
Fasiliteter
Balkong/Terrasse
Barnevennlig
Garasje/P-plass
Hage
Offentlig vann/kloakk
Parkett
Peis/Ildsted
Rolig
Visning
tirsdag, 10. mars
17:00 – 18:00
Ved annonsert visning er det viktig at du melder deg på visningen ved å bruke visningspåmeldingsknappen eller kontakter megler. Annonserte visninger hvor det ikke er noen påmeldte innen kl. 16.00 dagen før visningsdagen, vil ikke bli avholdt. For visninger utover dette, ta direkte kontakt med megler.
VisningspåmeldingOm boligen
Velkommen til Bekkesvevegen 98!
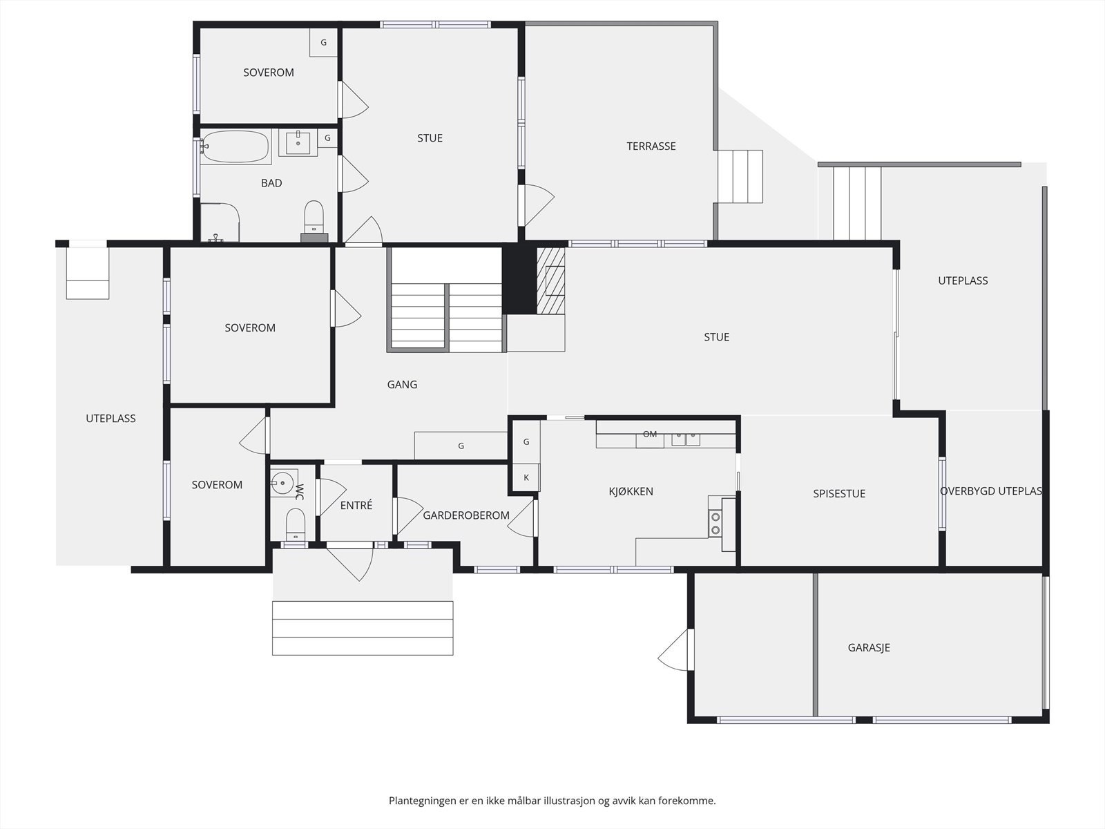
Dette er en familievennlig og innholdsrik enebolig på et plan med kjeller. I boligens 1. etasje finner du en lys og romslig stue med utgang til en herlig vestvendt uteplass, separat kjøkken, tre soverom, TV-stue og et pent og moderne bad. En romslig gang og et meget praktisk garderoberom gjør dette til en flott og praktisk familiebolig. I kjelleren er det kjellerstue, bad og en rekke bodrom for god oppbevaring. Det er egen utvendig adkomst til kjelleren. Eiendommen har en stor tomt med både dobbelgarasje og garasje inntilbygd boligen. Her bor du i et rolig og etablert boligområde med kort vei til lekeplasser, turområder, barnehager og skoler.
Vi ønsker velkommen til en hyggelig visning!
Dette er en familievennlig og innholdsrik enebolig på et plan med kjeller. I boligens 1. etasje finner du en lys og romslig stue med utgang til en herlig vestvendt uteplass, separat kjøkken, tre soverom, TV-stue og et pent og moderne bad. En romslig gang og et meget praktisk garderoberom gjør dette til en flott og praktisk familiebolig. I kjelleren er det kjellerstue, bad og en rekke bodrom for god oppbevaring. Det er egen utvendig adkomst til kjelleren. Eiendommen har en stor tomt med både dobbelgarasje og garasje inntilbygd boligen. Her bor du i et rolig og etablert boligområde med kort vei til lekeplasser, turområder, barnehager og skoler.
Vi ønsker velkommen til en hyggelig visning!
NB: Knappen for å vise hele beskrivelsen har kun en visuell effekt.
NB: Knappen for å vise hele beskrivelsen har kun en visuell effekt.
Salgsoppgaven beskriver vesentlig og lovpålagt informasjon om eiendommen
Se komplett salgsoppgaveNærområdet
Aktiv Innlandet
Annonseinformasjon
| FINN-kode | 452698967 |
|---|---|
| Sist endret | 27. feb. 2026 13:06 |
| Referanse | 1213260018 |
Annonsene kan være mangelfulle i forhold til lovpålagt opplysningsplikt. Før bindende avtale inngås oppfordres interessenter til å innhente komplett informasjon fra meglerforetaket, selger eller utleier.























































